免佣!5隔间30工位丨双面采光·云层视野·享受日出日落之美!
-
59元/平米·月
租金
-
精装修
装修
-
320㎡
建筑面积
租房不踩坑
3000+人正在热聊
-
楼盘名称
莱普敦中心
-
区域
高新
-
物业费
20元/平米·月
-
类型
纯写字楼
-
等级
暂无
-
挂牌时间
2026-01-22
-
支付方式
押一付三
-
入驻时间
2025-10-09
费用明细
-
押一付三
付款方式
-
59
租金(元/平米·月)
-
***
押金
-
***
服务费
- 房租含取暖费吗?
- 房租含物业费吗?
房源描述
-
房源亮点问经纪人
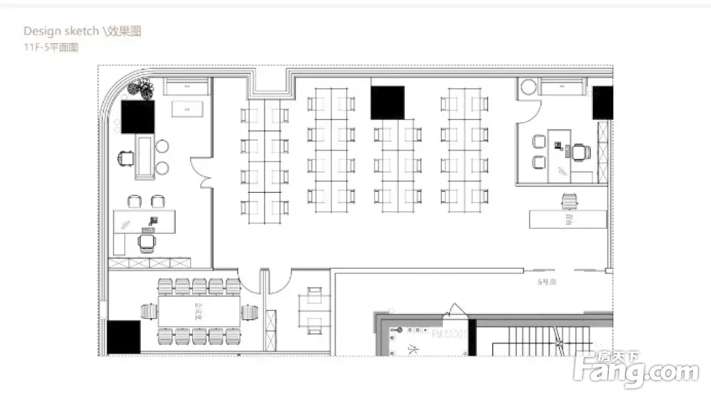
专业选址顾问为您服务! 益办地产——成都专业租赁拥有全成都90%以上在租房源欢迎来电! 这套不合适可开始微聊极速为您找到心仪又合适的房源! 告诉我您的需求针对您的实际需求为您提供专业的建议快速高效的为你甄选决策! 24房源实地免费带您看房节约您的时间与精力! 【郑重承诺】:新鲜现房现场实拍所有照片均在租不套路节约您的时间! 【楼盘名称】:莱普敦中心 【房屋面积】:320平 【房屋格局】:全套定制家具5隔间30工位可调整 【房屋优势】:双开玻璃门大气前厅现代装修风格采光通透视野开阔含全部家具带全套家具性加比超高让你每天沉迷于工作中 【交通状况】:地铁1天府三街站地铁口公交路线周边均分布员工上下班便利 ============================ 只要您告诉我您的选址要求我会为您提供专业的服务的房源无水份的价格如有不清楚请来电咨询
-
服务介绍问经纪人
告诉我们您的需求 针对您的实际需求 为您提供专业的建议 快速高效的为你甄选决策 ! 免费带您看房 节约您的时间与精力! 一切为客户着想 急客户所需 向客户所思 期待您的来电——24不下线!
-
周边配套问经纪人
电梯:低区电梯分流 下上班不怕拥挤 空调:空调可自控 冬暖夏凉 舒适 停车场:地下车位充足 停车方便 配套服务:楼下附近有银行 餐饮 娱乐 购物 享受舒适环境
-
交通出行问经纪人
1、优惠政策:入住即享租房政府补贴 2、周边配套:核心商圈 周边银行 便利店 大型购物商场 美食 酒店等 3、交通情况:地铁1号线天府三街站地铁口 公交路线周边均分布 员工上下班便利
高新天府软件园
建成2021年
周边配套
- 免费咨询
- 专业服务
- 区域解读
- 户型分析

