金融城丨人性化配套设施种类多丨追求高品质和雅致工作环境
-
23000元/月
租金
-
精装修
装修
-
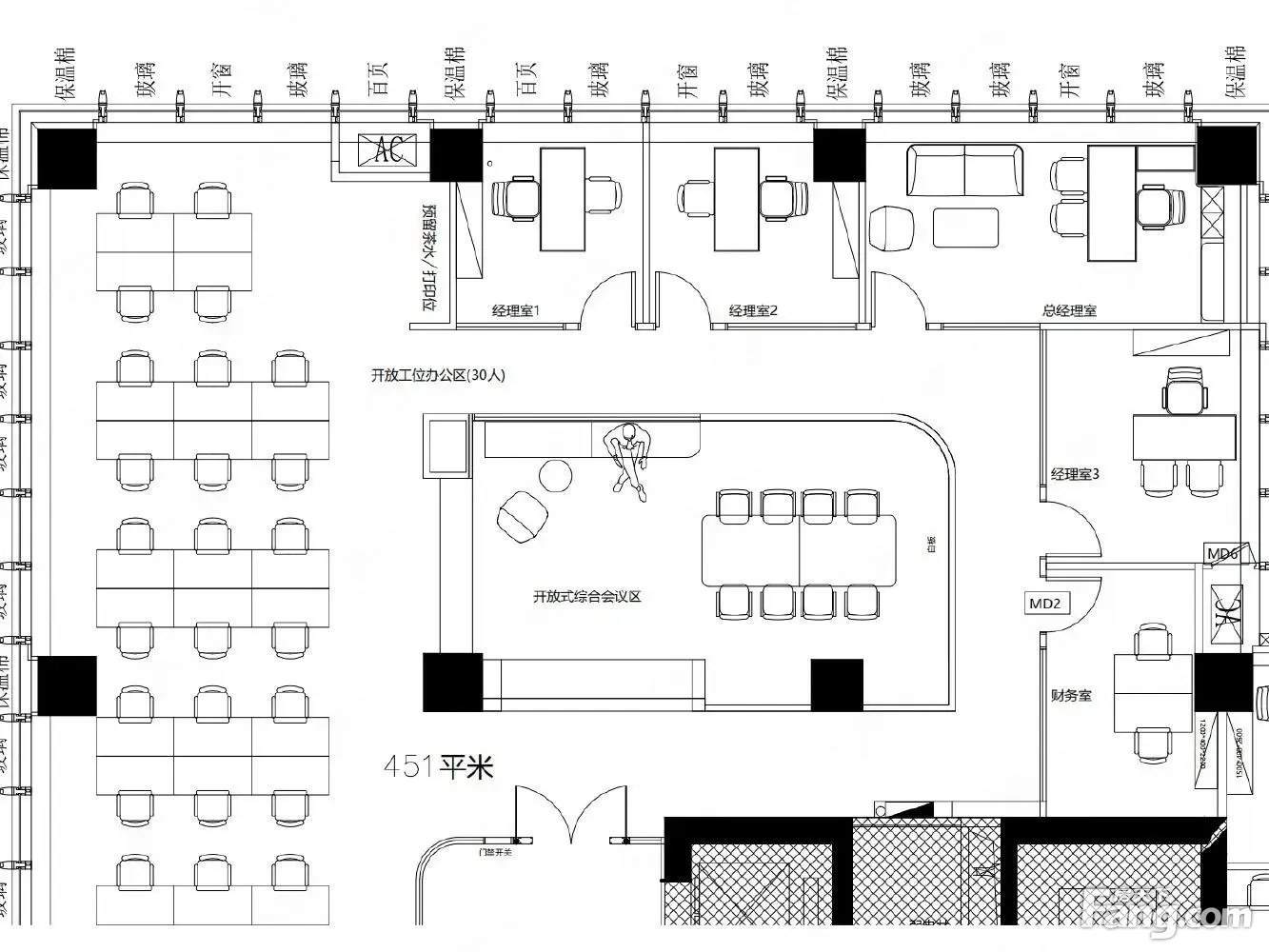
451㎡
建筑面积
租房不踩坑
3000+人正在热聊
加入群聊
-
楼盘名称
三狼沐光森林
-
区域
高新
-
物业费
暂无
-
类型
纯写字楼
-
等级
暂无
-
挂牌时间
2024-11-25
-
支付方式
押二付三
-
入驻时间
2024-05-27
费用明细
-
押二付三
付款方式
-
23000
租金(元/月)
-
***
押金
-
***
服务费
- 房租含取暖费吗?
- 房租含物业费吗?
房源描述
-
房源亮点问经纪人
保证高品质高效率,为您节约更多的时间! 因为只做,所以更专业! —————————————————— 本次房源详细介绍: 楼盘:三狼·沐光森林 面积:451㎡ 租金:面议,价格好谈 格局:轻奢商务风,带全新家具,电子双开玻璃门,进门大气前台形象墙,5个独立 室,1个会议室,目前大厅工位30个(可根据需求调整),空调,地毯铺地,高区采光,户型方正 地址:天府大道旁,地铁1金融城站,府城大道口公交站,地铁30金融城北站,周边公交路线四通八达,交通便利 ———————————————————————————————————— 先别划走,我这里还有很多的房源,选到您满意为止。 欢迎来电咨询 联系我时,请说是在上看到的,谢谢!
-
服务介绍问经纪人
我从事房产行业多年,积累了大量的专业知识,也得到了业主、客户的信赖和认可,为您买到合适的房子是我的服务宗旨。
-
周边配套问经纪人
小区居民素质高,配套设施齐全,地理位置好,交通便利。
-
交通出行问经纪人
产权干净,税费清晰,欢迎来电咨询该房屋详情,静候您的来电!
高新天府长城
建成2023年
周边配套
地址:府城大道39号
- 免费咨询
- 专业服务
- 区域解读
- 户型分析
免责声明:房源信息由网站用户提供,其真实性、合法性由信息提供者负责,最终以政府部门登记备案为准。本网站内容凡涉及面积单位均为建筑面积,本网站不声明或保证内容之正确性和可靠性,租赁该房屋时,请谨慎核查。


