东四环广渠路百子湾化工地铁口695平精装独栋有厨房特价出租
-
5元/平米·天
租金
-
精装修
装修
-
695㎡
建筑面积
租房不踩坑
3000+人正在热聊
加入群聊
-
楼盘名称
813文化创意园
-
区域
朝阳
-
物业费
暂无
-
类型
纯写字楼
-
等级
暂无
-
挂牌时间
2025-12-02
-
支付方式
押二付三
-
入驻时间
2025-12-2
费用明细
-
押二付三
付款方式
-
5
租金(元/平米·天)
-
***
押金
-
***
服务费
- 房租含取暖费吗?
- 房租含物业费吗?
房源描述
-
房源亮点问经纪人
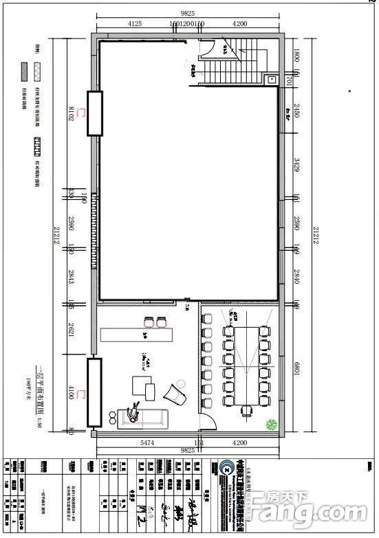
<div style="font-size:14px;">813创意园 694平米 精品独栋,落地窗,高品质装修,带家具,园区C位<br/><br/>户型:独栋 复式三层<br/>朝向:?? 南北西<br/>格局:10个间,有厨房,餐厅,? 茶室,ktv会客厅<br/>报价:5元(含票 )<br/><br/>物业:9元/月/平米<br/>24空调 供暖46元<br/>24空调 制冷56元<br/><br/>交通:东四环与东五环之间,广化大街,7号线化工地铁站C口20米<br/>配套:超市,员工餐厅,咖啡厅,美发工作室,拍摄休闲活动区<br/>#东四环独栋#百子湾独栋#广渠路独栋#百子湾带厨房独栋#百子湾会所独栋</div>
-
服务介绍问经纪人
1.全程免费服务 2.合理匹配房源、安排看房时间路线 3.专业商务洽谈、签订租赁合同 4.全程物业交接 5.设计装修、家具采购 6.完善的售后服务等六项内容
-
周边配套问经纪人
周边生活设施齐全,具备车库/车位等基础设施,商店距离近,乘坐公交方便
-
交通出行问经纪人
交通便利:地铁站,楼下就是各路公交线路。出行占尽先机。
朝阳百子湾
建成2017年
周边配套
地址:化二路
- 免费咨询
- 专业服务
- 区域解读
- 户型分析
免责声明:房源信息由网站用户提供,其真实性、合法性由信息提供者负责,最终以政府部门登记备案为准。本网站内容凡涉及面积单位均为建筑面积,本网站不声明或保证内容之正确性和可靠性,租赁该房屋时,请谨慎核查。

