东四环化工地铁口 813文化创意产业园625平联排独栋出租
-
2.5元/平米·天
租金
-
精装修
装修
-
625㎡
建筑面积
租房不踩坑
3000+人正在热聊
加入群聊
-
楼盘名称
813文化创意园
-
区域
朝阳
-
物业费
30元/平米·月
-
类型
纯写字楼
-
等级
暂无
-
挂牌时间
2025-11-15
-
支付方式
押一付三
-
入驻时间
2025-11-15
费用明细
-
押一付三
付款方式
-
2.5
租金(元/平米·天)
-
***
押金
-
***
服务费
- 房租含取暖费吗?
- 房租含物业费吗?
房源描述
-
房源亮点问经纪人
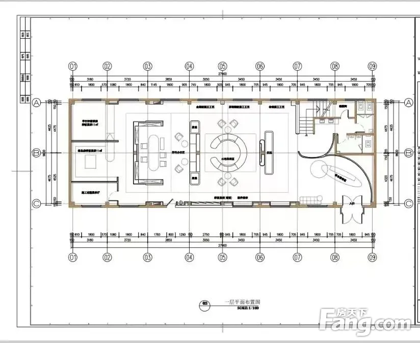
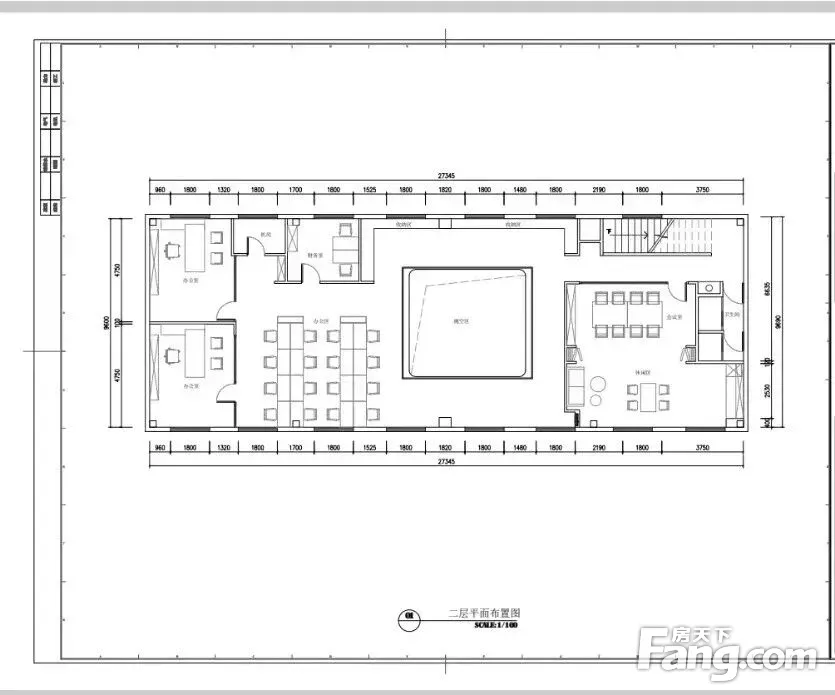
一、房源介绍 1.项目名称:813文化创意产业园 2.建筑面积: 625平米 3.租金单价: 2.5元/㎡/天 4.装修情况:精品推荐,精装遗留带家具出租
-
服务介绍问经纪人
1、全程免费看房! 2、专业团队为您匹配房源,让您省心、放心! 3、带看、签约、验房、交接、售后全程参与,用无微不至的服务让您满意!
-
周边配套问经纪人
边配套齐全 车位充足:地上车位:100个 、地下车位:550个 网络通信:电信、联通、移动、 酒店:万豪酒店、丽思卡尔顿、快捷酒店等 商场:富力广场、SKP购物中心、合生汇 银行:工商银行、建设银行、农业银行、招商银行
-
交通出行问经纪人
附近地铁:7号线化工站 附近公交:四环辅路沿线 开车路线:四环主路出行方便。
朝阳百子湾
建成2017年
周边配套
地址:化二路
- 免费咨询
- 专业服务
- 区域解读
- 户型分析
免责声明:房源信息由网站用户提供,其真实性、合法性由信息提供者负责,最终以政府部门登记备案为准。本网站内容凡涉及面积单位均为建筑面积,本网站不声明或保证内容之正确性和可靠性,租赁该房屋时,请谨慎核查。


