13500
元/月
押一付三
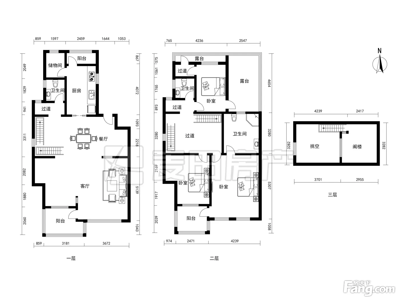
南北通透浉城百丽3室2厅精装修
-
3室2厅2卫
整租
-
196.99㎡
面积
-
顶层/2层
楼层
-
南北
朝向
2025-11-06更新
租房不踩坑
3000+人正在热聊
加入群聊
-
看房
暂无
-
装修
精装修
-
入住
2025-08-08 08:00:00
-
咨询经纪人,了解更多房源信息
问一问
郑重提示:请您在签订合同之前,切勿支付任何形式的费用,以免上当受骗。
费用明细
-
押一付三
付款方式
-
13500
租金(元/月)
-
***
押金
-
***
服务费
- 房租含取暖费吗?
- 房租含物业费吗?
房源描述
-
房源亮点问经纪人
相信为您推荐的这套房子您一定会满意,赶快行动吧,先到先得! 房屋年代∶2002,面积∶196.99平方米,朝向∶南北 1. 小区配备高端物业管理,让你享受宾至如归的服务; 2. 小区人文素质高,是您的居家的绝佳选择; 3. 小区居住安静舒适,让您拥有高品质的生活环境; 4. 小区绿化率高,绿树成荫鸟语花香让您随时呼吸到新鲜空气。
-
小区配套问经纪人
由北京儒林房地产开发有限公司开发,位于北京南五环的北京经济技术开发区,总建筑面积11万平米,共586套,建筑形式为低密度花园社区(双拼、叠拼、联排)开发商聘请著名园林设计公司借鉴高尔夫球声设计理念,将高尔夫景观引入社区园林设计,将整体园林做了缓坡式处理。
周边配套
地址:亦庄经济开发区天宝园二里二区(天宝西路与天宝中街西南方向 )
- 免费咨询
- 专业服务
- 区域解读
- 户型分析
免责声明:房源信息由网站用户提供,其真实性、合法性由信息提供者负责,最终以政府部门登记备案为准。本网站内容凡涉及面积单位均为建筑面积,本网站不声明或保证内容之正确性和可靠性,租赁该房屋时,请谨慎核查。

