30000
元/月
押一付三
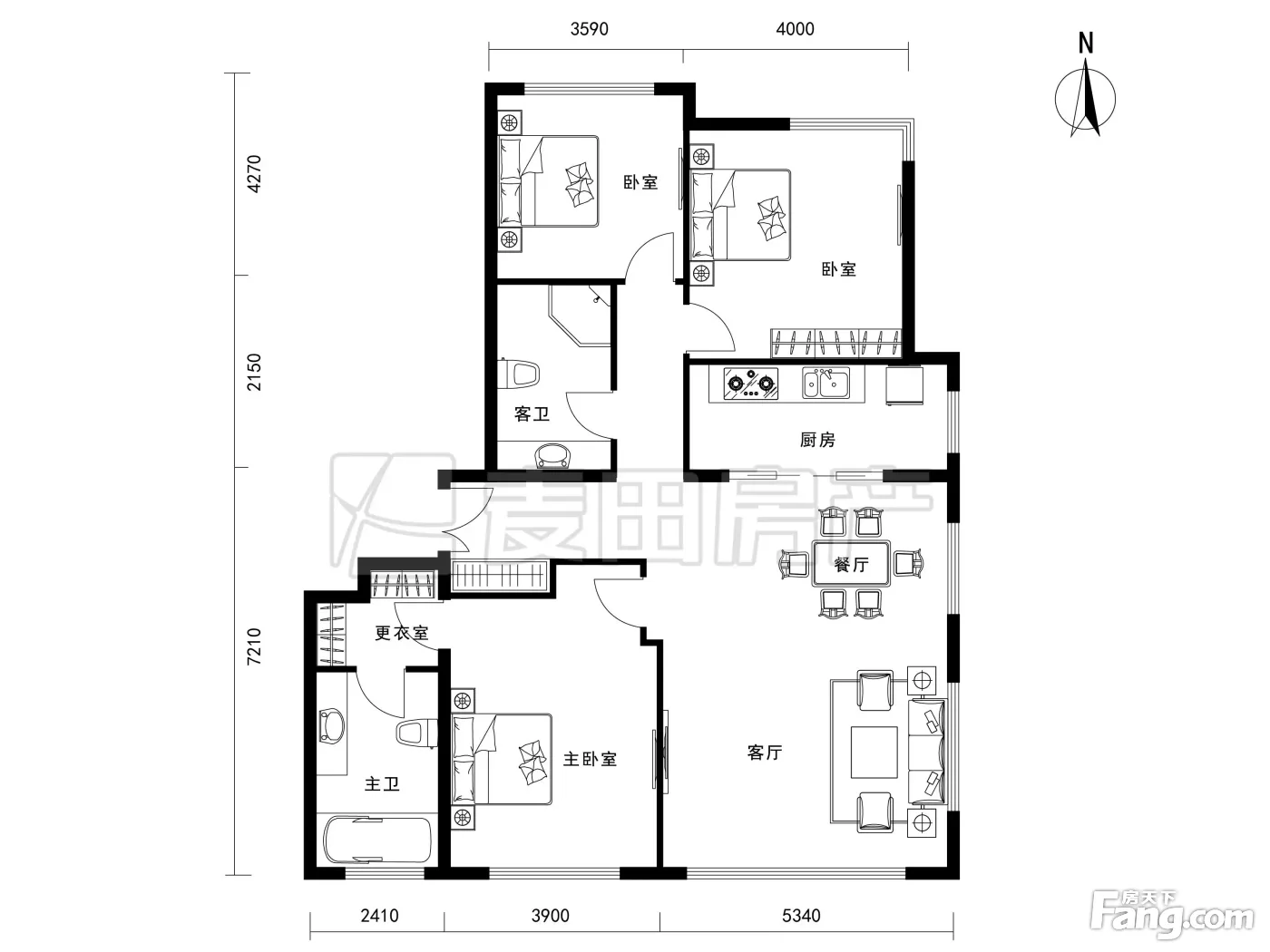
红玺台 3室2厅 精装修
-
3室2厅2卫
整租
-
169㎡
面积
-
低层/29层
楼层
-
东南
朝向
2025-11-01更新
租房不踩坑
3000+人正在热聊
加入群聊
-
看房
暂无
-
装修
精装修
-
入住
2025-08-01 08:00:00
-
咨询经纪人,了解更多房源信息
问一问
郑重提示:请您在签订合同之前,切勿支付任何形式的费用,以免上当受骗。
费用明细
-
押一付三
付款方式
-
30000
租金(元/月)
-
***
押金
-
***
服务费
- 房租含取暖费吗?
- 房租含物业费吗?
房源描述
-
房源亮点问经纪人
相信为您推荐的这套房子您一定会满意,赶快行动吧,先到先得! 房屋面积∶169平方米, 1. 小区配备良好物业管理,让你享受宾至如归的服务; 2. 小区人文素质高,是您的居家的品质选择; 3. 小区环境安静舒适,让您拥有高品质的生活环境; 4. 小区绿化高,绿树成荫鸟语花香让您随时呼吸到新鲜空气。
-
小区配套问经纪人
红玺台位于太阳公元项目的西南角,属于太阳宫板块,在东北三、四环之间。四周被亚奥商圈、东直门商圈、燕莎商圈和望京商圈四大商圈包围。红玺台总占地面积约55000平米;总建筑面积逾13万平米;由7幢高层高端住宅建筑组成;170-300平米大户型,为纯粹的高端社区。红玺台位于朝阳区东北三环太阳宫桥向北大约800米处,结合现代主义建筑,引入东方传统素材。由内到外都有设计感。户型270度三面采光,大尺度开窗设计,大开间小进深。小区于2010年由懋源开发商建设,分三期建成,一共7栋楼, 小户型主打71-86平米开间以及LOFT,大户型以161-310平米
-
服务介绍问经纪人
公司投诉电话:4007061188 公司投诉电话:4007061188
周边配套
地址:太阳宫二街三号院
- 免费咨询
- 专业服务
- 区域解读
- 户型分析
免责声明:房源信息由网站用户提供,其真实性、合法性由信息提供者负责,最终以政府部门登记备案为准。本网站内容凡涉及面积单位均为建筑面积,本网站不声明或保证内容之正确性和可靠性,租赁该房屋时,请谨慎核查。


