团结湖 东大桥工人体育场 三里屯 中国红街 独栋接待会所办公
-
2.88元/平米·天
租金
-
精装修
装修
-
192㎡
建筑面积
租房不踩坑
3000+人正在热聊
-
楼盘名称
三里屯SOHO写字楼
-
区域
朝阳
-
物业费
暂无
-
类型
纯写字楼
-
等级
暂无
-
挂牌时间
2025-11-26
-
支付方式
押一付三
-
入驻时间
2025-11-26
费用明细
-
押一付三
付款方式
-
2.88
租金(元/平米·天)
-
***
押金
-
***
服务费
- 房租含取暖费吗?
- 房租含物业费吗?
房源描述
-
房源亮点问经纪人
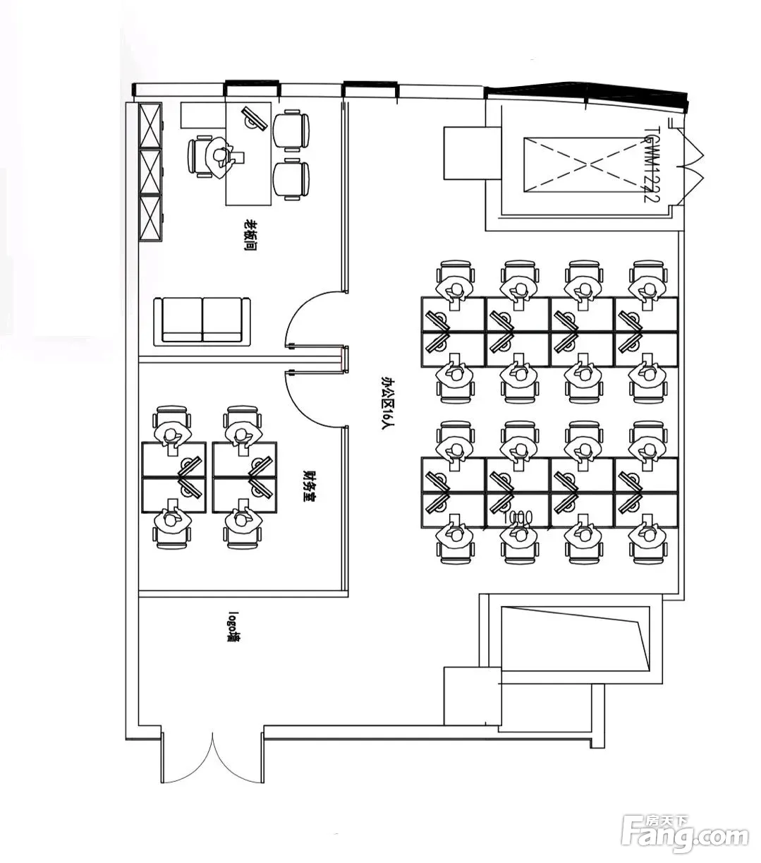
项目名称:三里屯SOHO (随时可看) 租金报价:2.88元/天/平米 出租面积:192平米 房屋:2个 房屋朝向:东向 起租日期:随时 格局:2间到顶(老板间、会议室、财务、洽谈室) 、朝东向、工区可容纳20人左右,茶水台,前厅接待区。 房屋状态:前台与办公区动静分离,现代、简约时尚!精心配备全齐办公家具。在周边同类项目与众不同!以办公为中心,重视客户使用感受及空间呈现效果,分户墙立到棚顶,让功能间真正隔音降噪。大厦的新风系统、房间简洁明亮的落地窗,后续贴心的专属管家服务,将给您带来更优的办公感受。 注册:可以注册
-
服务介绍问经纪人
(一)全程免费看房﹣为您省时、省力! (二)专业团队为您匹配房源﹣让您省心、放心! (三)强大的资源系统让您360度全面了解项目、市场! (四)带看、签约、验房、交接全程参与用无微不至的服务让您满意!
-
周边配套问经纪人
周边项目 兆泰国际:300~5000m2 荷华明城:200~5000m2 中粮广场:300~2500m2 正大中心:100~3000m2 三星大厦:96~6000m2 中国尊大厦:200~7000m2 国贸三期:150-9000m2 1、车位:地上地下车位充足,可年租/月租; 2、酒店:国贸酒店、嘉中酒店、千禧酒店、银泰酒店、索菲亚酒店等; 3、商场:国贸商场、财富购物中心、银泰商城、 SKP 、新世界百货等 4、银行:中国、招商、建设、平安、浦发等银行;
-
交通出行问经纪人
地铁:地铁三号线十七号线工体站 公交:三里屯公交站,工人体育场,朝阳医院站,长虹桥站,幸福三村,3路,4路,34路,43路,113路,6路,24路,110路,32路 等多路公交线路,四通八达
朝阳工体
建成2009年
建筑类型板塔结合
周边配套
- 免费咨询
- 专业服务
- 区域解读
- 户型分析


