百环大厦 精装修带家具可选择面积 乐成中心 首城国际 富力
-
3.99元/平米·天
租金
-
精装修
装修
-
295.7㎡
建筑面积
租房不踩坑
3000+人正在热聊
-
楼盘名称
百环大厦
-
区域
朝阳
-
物业费
暂无
-
类型
纯写字楼
-
等级
暂无
-
挂牌时间
2026-01-28
-
支付方式
面议
-
入驻时间
2026-01-28
费用明细
-
面议
付款方式
-
3.99
租金(元/平米·天)
-
***
押金
-
***
服务费
- 房租含取暖费吗?
- 房租含物业费吗?
房源描述
-
房源亮点问经纪人
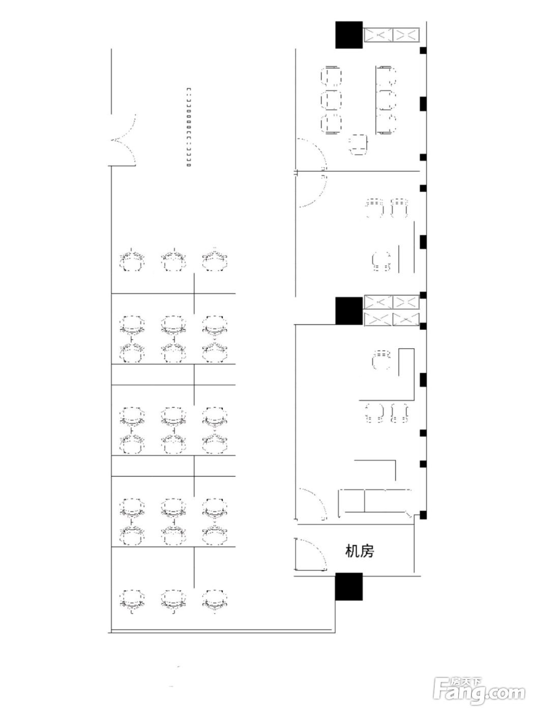
项目名称:百环大厦 (随时可看) 租金报价:5元/天/平米 出租面积:295.70平米 房屋:4个 房屋朝向:东向 起租日期:随时 格局:4间到顶(老板间、会议室、财务、洽谈室) 、朝东向、工区可容纳30人左右,茶水台,前厅接待区。 房屋状态:前台与办公区动静分离,现代、简约时尚!精心配备全齐办公家具。在周边同类项目与众不同!以办公为中心,重视客户使用感受及空间呈现效果,分户墙立到棚顶,让功能间真正隔音降噪。大厦的新风系统、房间简洁明亮的落地窗,后续贴心的专属管家服务,将给您带来更优的办公感受。 注册:可以注册
-
服务介绍问经纪人
(一)全程免费看房﹣为您省时、省力! (二)专业团队为您匹配房源﹣让您省心、放心! (三)强大的资源系统让您360度全面了解项目、市场! (四)带看、签约、验房、交接全程参与用无微不至的服务让您满意!
-
周边配套问经纪人
周边项目 兆泰国际:300~5000m2 荷华明城:200~5000m2 中粮广场:300~2500m2 正大中心:100~3000m2 三星大厦:96~6000m2 中国尊大厦:200~7000m2 国贸三期:150-9000m2 1、车位:地上地下车位充足,可年租/月租; 2、酒店:国贸酒店、嘉中酒店、千禧酒店、银泰酒店、索菲亚酒店等; 3、商场:国贸商场、财富购物中心、银泰商城、 SKP 、新世界百货等 4、银行:中国、招商、建设、平安、浦发等银行;
-
交通出行问经纪人
地铁:9号线,14号线九龙山站均可到达 公交:珠江帝景公交站,合生汇公交站,大郊亭桥东,九龙山路口东,7路,25路,35路,486路,513路,11路,23路,29路,31路,35路,四通八达 员工出行方便,节约时间
朝阳双井
建成2008年
周边配套
- 免费咨询
- 专业服务
- 区域解读
- 户型分析


