东枫德必WE独栋办公238平至6884平米现房出租达美中心
-
4元/平米·天
租金
-
精装修
装修
-
3404㎡
建筑面积
租房不踩坑
3000+人正在热聊
-
楼盘名称
东枫德必WE人工智能创新基地
-
区域
朝阳
-
物业费
24元/平米·月
-
类型
纯写字楼
-
等级
暂无
-
挂牌时间
2024-09-24
-
支付方式
押三付三
-
入驻时间
2022-12-12
费用明细
-
押三付三
付款方式
-
4
租金(元/平米·天)
-
***
押金
-
***
服务费
- 房租含取暖费吗?
- 房租含物业费吗?
房源描述
-
房源亮点问经纪人
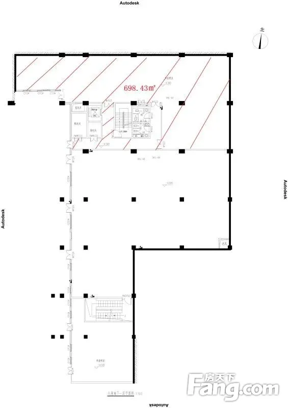
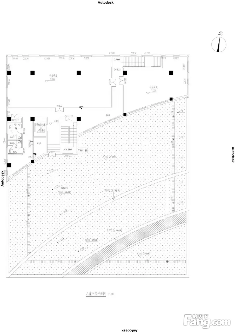
东枫德必WE独栋办公238平至6884平米现房出租达美中心 物业类型:办公、会所 租售形式:出租 占地面积:2.2万平米 总建筑面积:5.8万平米 单栋面积:474平米、1054平米、2460平米、3404平米、6884平米 出租价格:4~5元/天/平米 付款方式:押三付三 签约年限:2~5年 标准层高:3.6米 总层数:地上3层 使用率:80% 装修标准:精装修 总共车位:408个 停车费:800元/月/个,临时停车:8元/ 物业费:24元/月/平米 办公业态:影视传媒办公、设计工作室、影棚、艺术展览、艺术培训、室内运动、轰趴馆、大展厅、私人会所等。 详细信息 东枫德必WE人工智能创新基地总建筑面积58,444.00平方米,容积率0.99。地处北京东四环,朝阳公园、东风公园、798艺术区、东风艺术区等人文景观。风景宜人兼顾深厚的文化底蕴,与周边艺术区形成横跨朝阳区的文化创意产业带。 园区自主研发智能化系统,以用户为中心,打造安全、信任、共享、舒适的线下物理空间和线上网络空间,携手30年服务外资企业的物业服务团队,通过“专业、精细、贴身、高效”的服务宗旨,为入驻商务谷的企业提供全方位的专属品质服务。 园区将屋顶花园、空中花园、下沉花园融合为一,打造立体式“绿色办公”生态体系,绿荫环绕,景观宜人。优雅的办公环境,当然也少不了便捷智能化体验。东枫德必WE人工智能创新基地充分将智能化运用到设施、服务、管理和运营当中,做到全园覆盖。
-
服务介绍问经纪人
本人从事房地产行业多年,涉及北京各区,东城、西城、丰台、昌平、海淀、朝阳,通州、大兴、顺义、亦庄、石景山、门头沟等都有项目,多年的地产经验、已经跟很多业主成为朋友,长期合作,希望能为您提供专业服务。
-
周边配套问经纪人
医疗:北京华信医院(清华大学附属医院),北京和睦家医院,北京爱康国宾酒仙桥门诊部,北京和睦家康复医院,北京市朝阳区东风社区卫生服务中心,北京市朝阳区平房社区卫生服务中心,北京市朝阳区将台社区卫生服务中心,同仁堂药店(酒仙桥南路药店),中国中医科望京医院,爱康国宾(北京丽都体检中心) 教育:北京市电气工程,酒仙桥中心,北京市朝阳区将台洼,阳明教育研究院,北京信息职业技术,酒仙桥中心低部,青苗国际双语(小区),北京翱翔营地,拔萃双语,酒仙桥第二 购物:梵谷水郡,颐堤港购物广场,蓝色港湾国际商区,鑫华哲五金店,华联生活超市(梵谷水郡店),京客隆(驼房营
-
交通出行问经纪人
地 铁:地铁14号线”东风北桥”站约1800米 公 交:494路,401路,413路,445路,973路,991路等
朝阳朝青
建成2006年
周边配套
- 免费咨询
- 专业服务
- 区域解读
- 户型分析


