国企房产 独立门头 可挂logo 精装遗留 有燃气
-
3元/平米·天
租金
-
精装修
装修
-
4000㎡
建筑面积
租房不踩坑
3000+人正在热聊
-
楼盘名称
东枫德必WE
-
区域
朝阳
-
物业费
暂无
-
类型
纯写字楼
-
等级
暂无
-
挂牌时间
2025-12-10
-
支付方式
押三付一
-
入驻时间
暂无
费用明细
-
押三付一
付款方式
-
3
租金(元/平米·天)
-
***
押金
-
***
服务费
- 房租含取暖费吗?
- 房租含物业费吗?
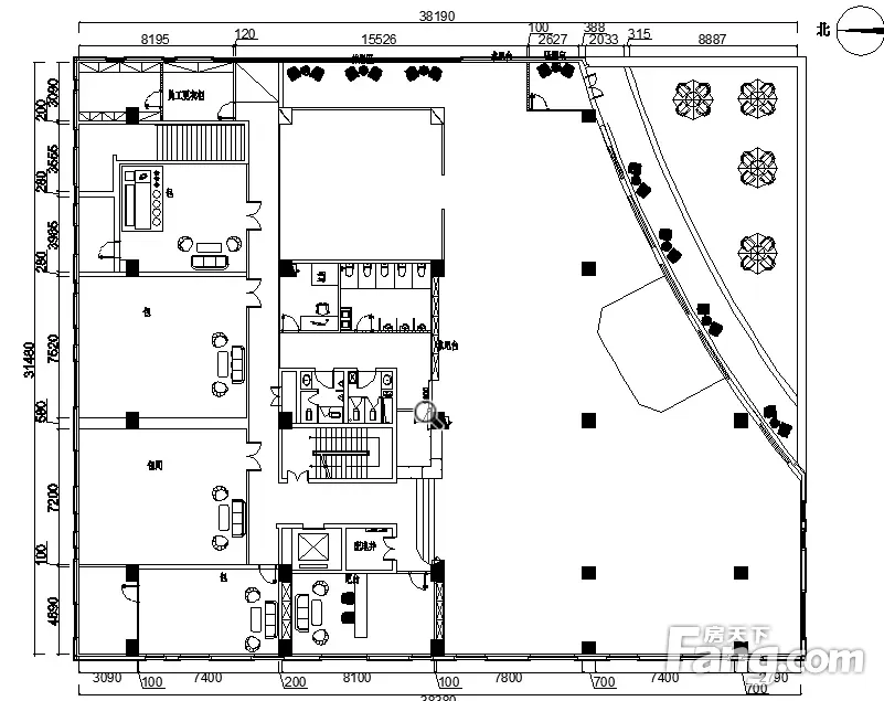
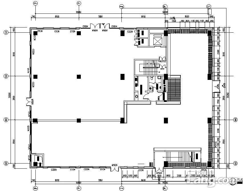
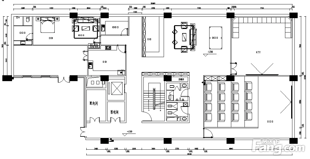
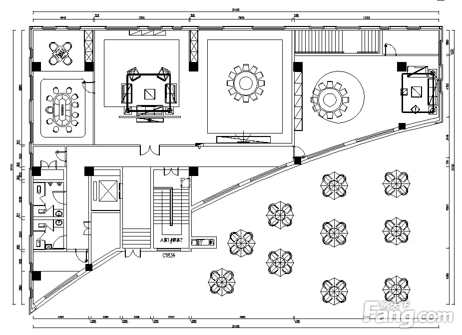
房源描述
-
房源亮点问经纪人
您好,我是千和地产陈俪嘉,您本次选址的专属顾问,您有任何需求可以点击我的头像进行咨询,我将竭诚为您服务,以下是我近期了解的房源信息,为您选址提供参考! ———————————————————————————— 房源描述: 1、项目: 东枫德必 2、面积: 4141.98㎡ 甲方可定制化装修,目前样板间超豪华 3、租金:(现在同意调整价格 降价 可面议)地标项目,整体高规格,企业象征,装修格局:户型方正、布局合理、老板间、隔/断/间、会议室、工位区、定制装修,配上全套家具,随时办公 5、其他:200、400、800、1000m等任意分割组合 6、交通:15号线望京东站,此外还有多条公交线路项目! 7、公司提供一站式服务蕟票事宜,装修方案及施工,家具绿植等,专业铸辉煌 ———————————————————————————— 我的目标不是为了利益而成交,而是竭诚为您服务,解决您遇到的一切问题帮助每一个客户找到合适的房子,成为长久合作关系!我既是一名置业顾问也是一名真诚的朋友,我拥有一个庞大的团队,一个全职团队为您服务! 点击头像查看更多房源信息!
-
服务介绍问经纪人
公司优势服务 1.全程免费看房,为您省时、省力! 2.专业团队为您匹配房源,让您省心、放心! 3.强大的资源系统让您360度全面了解项目、市场! 4.带看、签约、验房、交接全程参与
-
周边配套问经纪人
距离丽枫酒店(北京酒仙桥朝阳高铁站店)182米、距离全季酒店(北京朝阳站酒仙桥路店)497米、距离汉庭优佳酒店(北京酒仙桥朝阳站店)198米、距离星程酒店(酒仙桥朝阳高铁站店)192米、距离898爱尚公寓544米、距离东瑞酒店(北京朝阳高铁站)480米、距离北京朝阳公园东北角小屋540米、距离东风汇四合院5号院695米。 距离Thalia cafe塔丽亚52米、距离大悦榕和(东枫德必WE店)18米、距离luckin coffee瑞幸咖啡(东风南路店)-19米
-
交通出行问经纪人
距离东风南路一号院东侧停车场214米、距离东枫德必WE-地下停车场68米、距离泰华滨河苑-地上停车场884米、距离眉州东坡集团-地上停车场502米、距离东风南路一号院-地上停车场364米、距离898创新空间-地上停车场460米、距离首信小区-地上停车场619米、距离898创新空间-地下停车场412米、距离东风艺术区南区-地上停车场467米、距离永波羽毛球俱乐部-地上停车场143米。
朝阳朝青
建成2006年
周边配套
- 免费咨询
- 专业服务
- 区域解读
- 户型分析

