亦城科技中心5A办公楼274平至1598平米出租大族广场
-
2.6元/平米·天
租金
-
精装修
装修
-
1104.55㎡
建筑面积
租房不踩坑
3000+人正在热聊
-
楼盘名称
亦城科技中心
-
区域
大兴
-
物业费
21元/平米·月
-
类型
纯写字楼
-
等级
暂无
-
挂牌时间
2024-12-04
-
支付方式
押三付三
-
入驻时间
2022-04-05
费用明细
-
押三付三
付款方式
-
2.6
租金(元/平米·天)
-
***
押金
-
***
服务费
- 房租含取暖费吗?
- 房租含物业费吗?
房源描述
-
房源亮点问经纪人
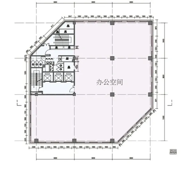
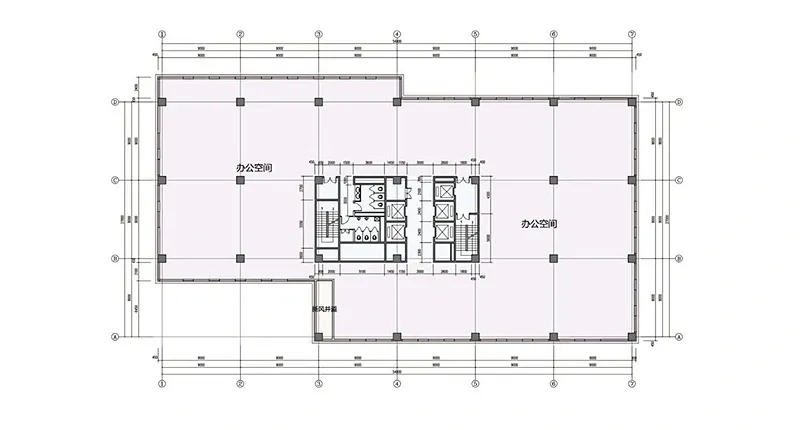
亦城科技中心5A办公楼274平至整层1598平米现房出租 物业类型:写字楼, 商业地产 环线位置:5-6环 租售形式:出租 占地面积:21616平米 总建筑面积:105678平米 标准层面积:889.65平米 开间面积:274平米、345平米、467平米、整层889.65平米等(可分租) 租金报价:2.6元/天/平米 物业管理费:21元/月/平米 基本租期:1~5年 交付标准:遗留装修 标准层高:4米 总层数:14层 使用率:70%以上 绿化率:30% 空调设备:集中式中央空调 保安消防:智能自动火警检测系统、自动喷水灭火系统 电梯品牌:A、B、C座各3部,D座5部 车位数量:地下433个 车位费:350元/月 装修标准:玻璃幕墙、石材幕墙 公共部位精装修 详细信息 亦城科技中心项目定位为总部办公,为企业树立公众品牌提供载体。拥有满足不同类型企业需求的高端写字楼,及完善的商务商业配套功能。 亦城科技中心以亦庄开发区荣华路为中心,整合本项目与周边酒店等公共资源,构建面向亦庄新城的城市空间结构,同时完善城市功能。
-
服务介绍问经纪人
本人从事房地产行业多年,涉及北京各区,东城、西城、丰台、昌平、海淀、朝阳,通州、大兴、顺义、亦庄、石景山、门头沟等都有项目,多年的地产经验、已经跟很多业主成为朋友,长期合作,希望能为您提供专业服务。
-
周边配套问经纪人
周边配套 亦城科技中心地处北京经济技术开发区核心区,周边餐饮、超市、银行、酒店、医院、、康体建身、商场等配套功能完善,有上海沙龙(6万平米商业区包括餐饮、超市、休闲、娱乐、银行等)、华润超市、美超市、工商银行、交通银行、建设银行、农业银行、锦江富园四星级酒店、北京兴基铂尔曼酒店、多伦多国际医院、同仁医院、BDA、亦庄、亦庄、开发区体育中心、高尔夫球场、冰上运动中心等。
-
交通出行问经纪人
地铁线路:亦庄线“荣京东街”或“荣昌东街”站 公交线路:846、运通202、732、453、652、运通115、665、324、976、723、821路、927路、997路、大兴47路、机场巴士9线、599路经过
大兴亦庄
建成2013年
建筑类型板塔结合
周边配套
- 免费咨询
- 专业服务
- 区域解读
- 户型分析


