湘楚名园
9.4分
- 地址
开福区竹山园
购房不踩坑 3000+人正在热聊
- 8673 元/㎡比上月 3%
小区参考价
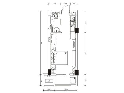
户型齐全,主打户型方正,明卫,明厨,主卧朝南二居
湘楚名园户型主要有64平-110平的户型方正,明卫,明厨,主卧朝南的二居 、101平-140平的明卫,明厨的三居 。
*获取完整户型报告,同时会有免费语音讲解服务
小区行情周报
05月02日-05月08日小区攻略
攻略
小区信息全方位解读
特点全面解析

小区概况
- 建筑年代
2010
- 物业类型
普通住宅
- 房屋总数
642户
- 楼栋总数
8栋
- 绿化率
38%
- 容积率
1.97
- 建筑面积
49332.0㎡
- 供暖
自供暖
- 供电
民用电
- 供水
民用水
- 供气
暂无
- 产权描述
普通住宅产权为70年
- 建筑类型
塔楼
- 物业费
1元/㎡·月
- 区域
开福 四方坪
- 物业公司
湖南佳和物业管理有限公司
- 停车位
120
- 地上车位
245个
- 开发商
湖南湘楚置业有限公司

详情解读
周边配套
地址:开福区竹山园
交通综合评分
查看全部4.0
“一般”
超过长沙27.7%的小区
- 地铁公交10.0

交通解读
- 7646元/㎡
本月挂牌均价
- 2.08%
环比上月
推荐楼盘
9.4
综合测评得分
- 小区品质8.4
- 区位交通10.0
- 教育资源10.0
- 生活服务10.0
免责声明*小区中涉及的价格经由房天下大数据统计分析计算得出,价格统计不能覆盖所有房源,并且有滞后,仅供参考。















