华都美林湾
9.2分
- 地址
锦江区白桦林路29号
购房不踩坑,3000+人正在热聊
- 18459 元/㎡比上月 0.33%
小区参考价
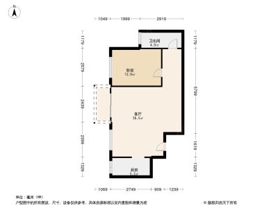
户型齐全,主打户型方正,明厨,客厅朝南,双阳台,双卧朝南三居
华都美林湾户型主要有90平-160平的户型方正,明厨,客厅朝南,双阳台,双卧朝南的三居 、55平-92平的明卫的二居 、36平-68平的户型方正,明卫,明厨,客厅朝南,全明格局的一居 。
*获取完整户型报告,同时会有免费语音讲解服务
小区行情周报
04月25日-05月01日小区攻略
攻略
小区信息全方位解读
特点全面解析

小区概况
- 建筑年代
2012
- 物业类型
普通住宅
- 房屋总数
3600户
- 楼栋总数
16栋
- 绿化率
45%
- 容积率
3.90
- 建筑面积
470000.0㎡
- 供暖
自供暖
- 供电
商用电,民用电
- 供水
商用水,民用水
- 供气
暂无
- 产权描述
普通住宅产权为70年
- 建筑类型
板塔结合
- 物业费
1.5元/㎡·月
- 区域
锦江 三圣乡
- 物业公司
成都合力物业管理有限公司
- 停车位
地面停车位261个;地下停车位1948个;非机动车停车位4896个
- 开发商
华都控股.四川华都置业有限公司

详情解读
周边配套
地址:锦江区白桦林路29号
交通综合评分
查看全部6.2
“较好”
超过成都74.1%的小区
- 地铁公交5.0
- 驾车出行10.0
- 城际交通4.0
- 21002元/㎡
本月挂牌均价
- 0.49%
环比上月
- 推荐经纪人
推荐楼盘
9.2
综合测评得分
- 小区品质8.4
- 户型评分8.9
- 区位交通10.0
- 教育资源9.2
- 生活服务10.0
免责声明*小区中涉及的价格经由房天下大数据统计分析计算得出,价格统计不能覆盖所有房源,并且有滞后,仅供参考。






































