上置绿洲雅宾利花园商铺
- 地址
港华路555号(221终点站)
购房不踩坑,3000+人正在热聊
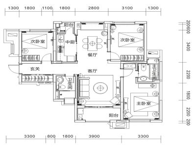
户型齐全,主打户型方正,采光充足三居
上置绿洲雅宾利花园商铺户型主要有72平-111平的户型方正,采光充足的三居 、61平-92平的全明格局,采光充足的二居 、139平-139平的露台,主卧带卫,双阳台,餐客分离的五居 。
*获取完整户型报告,同时会有免费语音讲解服务
小区攻略
攻略
小区信息全方位解读
特点全面解析

小区概况
- 建筑年代
2016
- 物业类型
商铺
- 绿化率
30.3%
- 容积率
2.50
- 建筑面积
暂无
- 建筑类型
暂无
- 物业费
2.1元/㎡·月
- 物业公司
上海上置物业集团有限公司成都分公司
- 停车位
暂无
- 开发商
成都上置置业有限公司

详情解读
周边配套
地址:港华路555号(221终点站)
交通综合评分
查看全部5.0
“一般”
超过成都39.6%的小区
- 地铁公交5.0
- 驾车出行10.0

交通解读
- 8960元/㎡
本月挂牌均价
- 0.69%
环比上月
推荐楼盘
免责声明*小区中涉及的价格经由房天下大数据统计分析计算得出,价格统计不能覆盖所有房源,并且有滞后,仅供参考。
















