南横西街100号
8.4分
- 地址
南横西街100号
购房不踩坑 3000+人正在热聊
- 77019 元/㎡比上月 0.76%
小区参考价
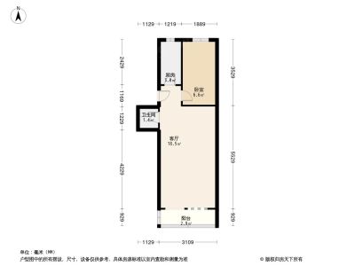
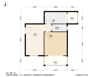
户型齐全,主打户型方正,客厅朝南,双阳台二居
南横西街100号户型主要有51平-68平的户型方正,客厅朝南,双阳台的二居 、41平-57平的户型方正,客厅朝南,双阳台的一居 、68平-68平的户型方正,明厨,客厅朝南,双卧朝南,主卧朝南的三居 。
*获取完整户型报告,同时会有免费语音讲解服务
小区行情周报
01月17日-01月23日小区攻略
攻略
小区信息全方位解读
特点全面解析

小区概况
- 建筑年代
1996
- 物业类型
普通住宅
- 房屋总数
338户
- 楼栋总数
11栋
- 绿化率
25%
- 容积率
3.00
- 建筑面积
暂无
- 供暖
暂无
- 供电
民用电
- 供水
民用水
- 供气
暂无
- 产权描述
普通住宅产权为70年
- 建筑类型
板楼
- 物业费
0.5元/㎡·月
- 区域
西城 牛街
- 物业公司
北京宣房物业管理有限公司
- 停车位
暂无
- 开发商
北京宣兴房地产开发股份有限公司

详情解读
周边配套
地址:南横西街100号
交通综合评分
查看全部8.3
“较好”
超过北京46.2%的小区
- 地铁公交10.0
- 驾车出行10.0
- 城际交通4.5

交通解读

楼栋解读
- 90114元/㎡
本月挂牌均价
- 0.62%
环比上月
推荐楼盘
8.4
综合测评得分
- 小区品质8.0
- 户型评分9.0
免责声明*小区中涉及的价格经由房天下大数据统计分析计算得出,价格统计不能覆盖所有房源,并且有滞后,仅供参考。



















