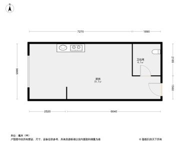
2室1厅2卫1厨
售完A5户型 | 建面:98㎡ | 朝向:
- 所属楼栋
5栋
- 所属楼盘
约6200.00元/平方米算月供
实际价格以售楼处为准,户型图为开发商提供,具体以实际交房标准为准
微信打开
查看完整户型评测10
户型评分
- 基础测评10
户型信息
- 户型方正
- 带露台
1室1厅1卫售完8.1“良好”
价格待定50.90㎡
1室1卫售完8.1“良好”
价格待定98.00㎡
1室1厅1卫售完8.2“良好”
价格待定55.00㎡
1室1厅1卫售完8.3“良好”
价格待定49.55㎡
1室1厅1卫售完7.9“普通”
价格待定50.20㎡
1室1厅1卫售完8.8“良好”
价格待定62.00㎡
1室1厅1卫售完7.9“普通”
价格待定51.44㎡
1室2厅1卫售完8.7“良好”
价格待定78.00㎡
1室1厅1卫售完7“普通”
6200.00元/平方米52.21㎡
1室1厅1卫售完7“普通”
6200.00元/平方米51.47㎡
1室1厅1卫售完7“普通”
6200.00元/平方米44.37㎡
1室1厅1卫售完7“普通”
6200.00元/平方米54.00㎡
1室1厅1卫售完7“普通”
价格待定55.00㎡
对此楼盘感兴趣的人还浏览了
查看全部





































