1室1厅1卫1厨
售完中交·上東国际1居室户型图 | 建面:50.9㎡ | 朝向:朝西
- 所属楼盘
价格待定算月供
实际价格以售楼处为准,户型图为开发商提供,具体以实际交房标准为准
微信打开
查看完整户型评测8.1
户型评分
- 基础测评7
- 空间测评9.3
- 采光通风8.3
户型信息
- 明厨
- 明厨
空间测评优秀9.3空间测评指标


- 面宽

- 进深
*施工有误差,交付时无法与户型图一致,仅供参考,最终以开发商合同为准
| 面积(㎡) | 面宽(m) | 进深(m) | 评价 | |
|---|---|---|---|---|
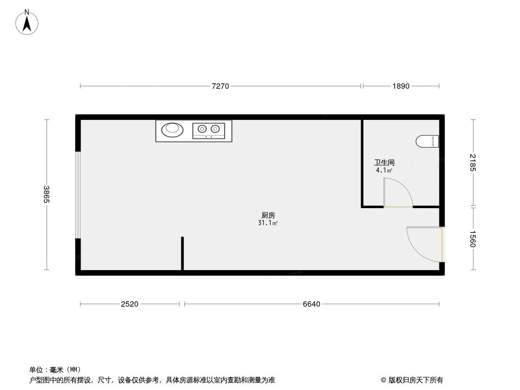
| 厨房 | 31.1 | 9.4 | 4 | 极佳 |
| 卫生间 | 4.1 | 2.1 | 2.3 | 良好 |
*户型数据为人工测量或估算值,可能于实际情况存在误差,仅供参考,实际数据以开发商发布为准。
通风测评良好8.3


- 开窗

- 风向
*施工有误差,交付时无法与户型图一致,仅供参考,最终以开发商合同为准
采光测评良好8.3采光测评的指标
| 采光性 | 评价 | |
|---|---|---|
| 厨房 | 良好 |
*户型数据为人工测量或估算值,可能于实际情况存在误差,仅供参考,实际数据以开发商发布为准。
房屋细节
厨房 31.1㎡ | 面宽9.4m | 进深4m
- 空间较大厨房宽敞明亮,多人协作料理轻松愉快,大型家电如冰箱也有足够的空间放置。
卫生间 4.1㎡ | 面宽2.1m | 进深2.3m
- 空间适中卫生间虽小,但设计精巧,空间布局合理,让您的日常清洁变得更加简单方便。
3室2厅2卫售完9.6“极佳”
价格待定125.58㎡
3室2厅2卫售完9.4“优秀”
价格待定146.00㎡
3室2厅2卫售完9.6“极佳”
价格待定125.00㎡
3室1厅1卫售完8.8“良好”
价格待定63.00㎡
3室2厅1卫售完9.5“极佳”
价格待定114.44㎡
3室2厅1卫售完9.6“极佳”
价格待定116.00㎡
3室2厅1卫售完10“极佳”
价格待定115.00㎡
3室2厅2卫售完10“极佳”
6200.00元/平方米117.25㎡
3室2厅1卫售完10“极佳”
6200.00元/平方米102.93㎡
3室2厅1卫售完9“优秀”
6200.00元/平方米130.19㎡
3室2厅2卫售完10“极佳”
价格待定125.00㎡
3室2厅2卫售完9“优秀”
价格待定146.00㎡
对此楼盘感兴趣的人还浏览了
查看全部









































