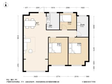
3室2厅1卫1厨
售完海亮·瓏園3居室户型图 | 建面:87.05㎡ | 朝向:朝南
- 所属楼盘
价格待定算月供
实际价格以售楼处为准,户型图为开发商提供,具体以实际交房标准为准
微信打开
查看完整户型评测8.9
户型评分
- 基础测评8.5
- 空间测评8.7
- 采光通风9.7
户型信息
- 1个阳台
- 1个明卫
- 明厨
- 户型方正
- 明厨
- 明卫
- 双卧朝南
空间测评良好8.7空间测评指标


- 面宽

- 进深
*施工有误差,交付时无法与户型图一致,仅供参考,最终以开发商合同为准
| 面积(㎡) | 面宽(m) | 进深(m) | 评价 | |
|---|---|---|---|---|
| 客厅 | 22 | 3.5 | 6.7 | 良好 |
| 卧室A | 11.1 | 3.1 | 4 | 良好 |
| 卧室B | 10.9 | 2.8 | 4 | 良好 |
| 厨房 | 4.6 | 1.9 | 2.6 | 良好 |
| 卫生间 | 4.7 | 1.7 | 3.2 | 良好 |
| 阳台 | 6.1 | 3.5 | 1.9 | 良好 |
| 储物间 | 6.1 | 2.6 | 2.6 | 极佳 |
*户型数据为人工测量或估算值,可能于实际情况存在误差,仅供参考,实际数据以开发商发布为准。
通风测评极佳9.7


- 开窗

- 风向
*施工有误差,交付时无法与户型图一致,仅供参考,最终以开发商合同为准
采光测评极佳9.7采光测评的指标
| 采光性 | 评价 | |
|---|---|---|
| 卧室A | 极佳 | |
| 卧室B | 极佳 | |
| 厨房 | 极佳 | |
| 卫生间 | 极佳 | |
| 阳台 | 极佳 |
*户型数据为人工测量或估算值,可能于实际情况存在误差,仅供参考,实际数据以开发商发布为准。
房屋细节
客厅 22㎡ | 面宽3.5m | 进深6.7m
- 紧凑实用尽管客厅空间不算宽敞,但设计上的小巧精致赢得人们的青睐。紧凑实用的布局让每一处空间都得到了充分利用。这个小空间散发着家的温馨与舒适。
- 有阳台阳台作为客厅的延伸空间,既增加了室内的采光和通风效果,又提升了家居的整体品质。
卧室A 11.1㎡ | 面宽3.1m | 进深4m
空间可容纳
床
1.8m*2m
床头柜X2
0.4m宽
衣柜
0.6m深
- 空间适中卧室A设计得十分精巧,每一寸空间都得到了合理的利用,既实用又美观,让您在有限的空间里享受无限的舒适。
优秀朝南设计的卧室A,光线明亮而宜人,通风流畅,为您的私人空间带来一份自然的惬意与宁静,无论是短暂休息还是深度睡眠,都能享受到阳光的温暖照耀。- 有窗卧室A窗户设计巧妙,将自然光引入室内,营造温馨氛围,让您在此感受家的温暖与舒适。
卧室B 10.9㎡ | 面宽2.8m | 进深4m
空间可容纳
床
1.8m*2m
床头柜X2
0.4m宽
衣柜
0.6m深
- 空间适中卧室B虽小,却精致无比,设计匠心独运,巧妙布局,让每一寸空间都发挥到极致,营造出温馨舒适的休憩氛围。
优秀卧室B朝南,光线充足且宜人,通风条件良好,为您的私密空间打造一处自然舒适的休憩之所,无论是午后放松还是夜晚入眠,都能感受到阳光的温暖守护。
优秀卧室B的落地窗设计,让室内空间更加通透,为您打造一个明亮而舒适的休息空间。- 次卧有阳台阳台与卧室B的完美结合,让您的居住体验更加完美。您可以在这里举办小型聚会,与朋友共度欢乐时光,留下美好的回忆。
厨房 4.6㎡ | 面宽1.9m | 进深2.6m
- 空间适中精心设计的厨房空间,既实用又舒适,让您的烹饪之旅更加轻松愉快。
- 明厨厨房的窗户如同明亮的眼睛,让室内充满自然光,烹饪过程更加轻松,感受家的舒适与惬意。
卫生间 4.7㎡ | 面宽1.7m | 进深3.2m
- 空间适中卫生间设计精致,空间利用得当,让您在有限的空间内享受舒适的洗浴环境。
对此楼盘感兴趣的人还浏览了
中海朝阳府
15000元/平方米
西湖-朝阳新城用户评分9.65分
在售地铁沿线品牌地产改善优选
保利琅悦
16000元/平方米
西湖-朝阳新城用户评分9.62分
在售改善优选装修交付地铁沿线央企开发花园洋房
华侨城万科世纪水岸無山
38000元/平方米
西湖-朝阳新城用户评分9.46分
在售品牌地产特色别墅改善优选低密居所
查看全部





优秀





















