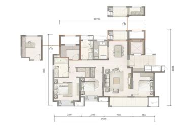
3室2厅2卫1厨
售完万科都心里3居室户型图 | 建面:112㎡ | 朝向:朝南
- 所属楼盘
价格待定算月供
实际价格以售楼处为准,户型图为开发商提供,具体以实际交房标准为准
微信打开
查看完整户型评测9.3
户型评分
- 基础测评9.5
- 空间测评8.7
- 采光通风9.5
户型信息
- 1个阳台
- 2个明卫
- 明厨
- 次卧带卫生间
- 户型方正
- 明卫
- 明厨
- 双卧朝南
空间测评良好8.7空间测评指标


- 面宽

- 进深
*施工有误差,交付时无法与户型图一致,仅供参考,最终以开发商合同为准
| 面积(㎡) | 面宽(m) | 进深(m) | 评价 | |
|---|---|---|---|---|
| 客厅 | 13.5 | 3.6 | 3.8 | 良好 |
| 餐厅 | 12.3 | 4.8 | 4.1 | 良好 |
| 卧室A | 16.2 | 3.4 | 6.5 | 极佳 |
| 卧室B | 14 | 3.1 | 5.2 | 优秀 |
| 卧室C | 7.1 | 2.7 | 2.9 | 良好 |
| 厨房 | 4.9 | 1.9 | 2.9 | 良好 |
| 卫生间A | 3.1 | 2.1 | 1.8 | 良好 |
| 卫生间B | 4 | 2.3 | 1.8 | 良好 |
| 阳台 | 4.8 | 3.6 | 1.6 | 良好 |
*户型数据为人工测量或估算值,可能于实际情况存在误差,仅供参考,实际数据以开发商发布为准。
通风测评极佳9.5


- 开窗

- 风向
*施工有误差,交付时无法与户型图一致,仅供参考,最终以开发商合同为准
采光测评极佳9.5采光测评的指标
| 采光性 | 评价 | |
|---|---|---|
| 餐厅 | 优秀 | |
| 卧室A | 极佳 | |
| 卧室B | 极佳 | |
| 卧室C | 极佳 | |
| 厨房 | 极佳 | |
| 卫生间A | 极佳 | |
| 卫生间B | 良好 | |
| 阳台 | 极佳 |
*户型数据为人工测量或估算值,可能于实际情况存在误差,仅供参考,实际数据以开发商发布为准。
房屋细节
客厅 13.5㎡ | 面宽3.6m | 进深3.8m
- 紧凑实用客厅尽管不大,却散发着精致的气息。设计上紧凑实用,每一处布置都经过精心安排。这个小空间为居住者营造了温馨舒适的家居环境。
- 有阳台阳台作为客厅的一部分,让空间更加通透,也为家居生活带来了一份自然的清新感。
卧室A 16.2㎡ | 面宽3.4m | 进深6.5m
空间可容纳
床
1.8m*2m
床头柜X2
0.4m宽
衣柜
0.6m深
- 空间较大宽敞的卧室A,让您的居住体验更加舒适、自在。
优秀朝南设计的卧室A,光线明亮且宜人,通风效果出色,为您的私人领地营造一份自然的惬意与安逸,无论是短暂休息还是长夜安睡,都能感受到阳光的温暖陪伴。
优秀卧室A的落地窗,不仅让室内光线充足,更让您在享受舒适睡眠的同时,感受自然的魅力。
卧室B 14㎡ | 面宽3.1m | 进深5.2m
空间可容纳
床
1.8m*2m
床头柜X2
0.4m宽
衣柜
0.6m深
- 空间较大宽敞舒适的卧室B,是您享受品质生活的理想选择。
优秀卧室B朝向南方,光线明亮,通风流畅,为您的私密空间增添一份自然的宁静与舒适,无论是短暂休息还是深度睡眠,都能感受到阳光的温馨呵护。
优秀卧室B宽敞舒适,落地窗设计让自然光充分进入,营造明亮舒适的休息环境。- 次卧有阳台卧室B带阳台,让您的生活更加通透。您可以在这里享受阳光的沐浴,感受自然的温暖与关爱,享受生活的舒适与惬意。
卧室C 7.1㎡ | 面宽2.7m | 进深2.9m
空间可容纳
床
1.2m*2m
床头柜X1
0.4m宽
- 空间适中尽管卧室C面积有限,但设计师却巧妙地利用空间,打造出一个精致而舒适的休憩之所,让您感受到家的温馨与惬意。
优秀卧室C的落地窗设计,将室内与室外美景完美融合,为您带来一场视觉的盛宴。
厨房 4.9㎡ | 面宽1.9m | 进深2.9m
- 空间适中精心打造的厨房空间,既实用又美观,让您的烹饪之旅更加精彩纷呈。
- 明厨明亮的窗户为厨房增添了不少生气,让烹饪过程充满阳光与活力,享受家的温馨与快乐。
卫生间A 3.1㎡ | 面宽2.1m | 进深1.8m
- 空间适中卫生间A空间适中,既不过于拥挤也不过于空旷,让您的洗浴体验更加舒适自如。
- 明卫卫生间A的窗户让自然光与新鲜空气得以自由流通,为居住者打造了一个健康舒适的卫浴空间。
卫生间B 4㎡ | 面宽2.3m | 进深1.8m
- 空间适中卫生间B空间适中,既不过于紧凑也不过于空旷,让您的洗浴体验更加舒适自然。
- 明卫卫生间B的窗户设计独特,既保证了通风效果,又让卫浴空间变得更加明亮宽敞。
对此楼盘感兴趣的人还浏览了
查看全部





优秀















