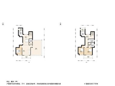
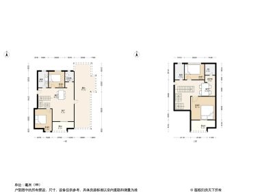
3室2厅1卫1厨
售完光明领御3居室户型图 | 建面:172㎡ | 朝向:朝南
- 所属楼盘
价格待定算月供
实际价格以售楼处为准,户型图为开发商提供,具体以实际交房标准为准
微信打开
查看完整户型评测9.2
户型评分
- 基础测评9.5
- 空间测评8.7
- 采光通风9.3
户型信息
- 4个阳台
- 2个明卫
- 明厨
- 次卧带卫生间
- 户型方正
- 明卫
- 明厨
- 主卧朝南
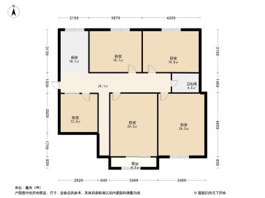
空间测评良好8.7空间测评指标

*施工有误差,交付时无法与户型图一致,仅供参考,最终以开发商合同为准
- 卧室D:优秀
- 阳台D:良好
- 客厅:良好
- 餐厅:极佳
- 卧室A:良好
- 卧室B:良好
- 卧室C:良好
- 厨房:良好
- 卫生间A:良好
- 卫生间B:良好
- 阳台A:良好
- 阳台B:良好
- 阳台C:良好
通风测评优秀9.3


- 开窗

- 风向
*施工有误差,交付时无法与户型图一致,仅供参考,最终以开发商合同为准
采光测评优秀9.3采光测评的指标
| 采光性 | 评价 | |
|---|---|---|
| 卧室D | 极佳 | |
| 卧室A | 极佳 | |
| 卧室B | 极佳 | |
| 卧室C | 极佳 | |
| 厨房 | 普通 | |
| 卫生间A | 极佳 | |
| 卫生间B | 良好 | |
| 阳台A | 极佳 | |
| 阳台B | 极佳 | |
| 阳台C | 极佳 |
*户型数据为人工测量或估算值,可能于实际情况存在误差,仅供参考,实际数据以开发商发布为准。
房屋细节
卧室D
空间可容纳
床
1.8m*2m
床头柜X2
0.4m宽
衣柜
0.6m深
- 空间较大卧室D设计合理,空间足够大,让您轻松打造个性化的居住空间。
优秀卧室D朝南,阳光明媚,空气流通,为您的私密空间营造一份自然的宁静与温馨,无论是短暂休息还是深度睡眠,都能感受到阳光的温暖守护。- 有窗卧室D拥有明亮的窗户,让自然光与新鲜空气自由流淌,为您打造一个健康舒适的生活空间。
客厅
- 紧凑实用这个客厅虽然面积不大,却展现出小巧精致的特点。紧凑而实用的设计风格,使得每一寸空间都得到了合理利用。尽管空间有限,却无损于舒适感。
卧室A
空间可容纳
床
1.2m*2m
床头柜X1
0.4m宽
- 空间适中卧室A设计得十分精巧,每一寸空间都得到了合理的利用,既实用又美观,让您在有限的空间里享受无限的舒适。
- 有窗卧室A窗户明亮通透,将室外的清新空气与阳光引入室内,让您在此享受宁静与舒适的时光。
卧室B
空间可容纳
床
1.2m*2m
床头柜X1
0.4m宽
- 空间适中精致小巧的卧室B,设计精巧,每一寸空间都得到了充分利用,让您在繁忙的生活中拥有一个温馨的休憩角落。
优秀朝南的卧室B,阳光倾洒,通风顺畅,为您打造一处自然舒适的私密空间,无论是短暂休憩还是夜晚入眠,都能享受阳光的温柔照耀。- 有窗卧室B窗户敞亮,将外界的美景引入室内,让您每日清晨都能沐浴在自然的阳光下,感受生活的美好。
卧室C
空间可容纳
床
1.2m*2m
床头柜X1
0.4m宽
- 空间适中卧室C设计得十分精巧,每一寸空间都得到了合理的利用,既实用又美观,让您在有限的空间里享受无限的舒适。
优秀卧室C朝南,光线通透且柔和,通风条件优越,为您的私密空间增添一份自然的舒适与安逸,无论是午后放松还是夜晚安睡,都能感受到阳光的温暖守护。- 有窗卧室C窗户明亮宜人,让您在舒适的床上就能欣赏到窗外的美景,感受生活的美好与宁静。
厨房
- 空间适中厨房面积适中,既方便您的日常操作,又能让厨房保持整洁美观。
- 明厨厨房设计注重通风采光,窗户设计合理,让烹饪时光更加明亮舒适,增添家的幸福感。
卫生间A
- 空间适中卫生间A空间恰到好处,既不拥挤也不空旷,为您打造舒适的洗漱体验。
- 明卫卫生间A的窗户设计,既保证了通风效果,又提升了空间的明亮感,让卫浴更加愉悦。
卫生间B
- 空间适中卫生间B设计精致,空间利用得当,让您在有限的空间内享受舒适的洗浴环境。
- 明卫明亮的光线透过卫生间B的窗户洒落,不仅提升了空间感,还使卫浴体验更加愉悦。
对此楼盘感兴趣的人还浏览了
查看全部





优秀






















