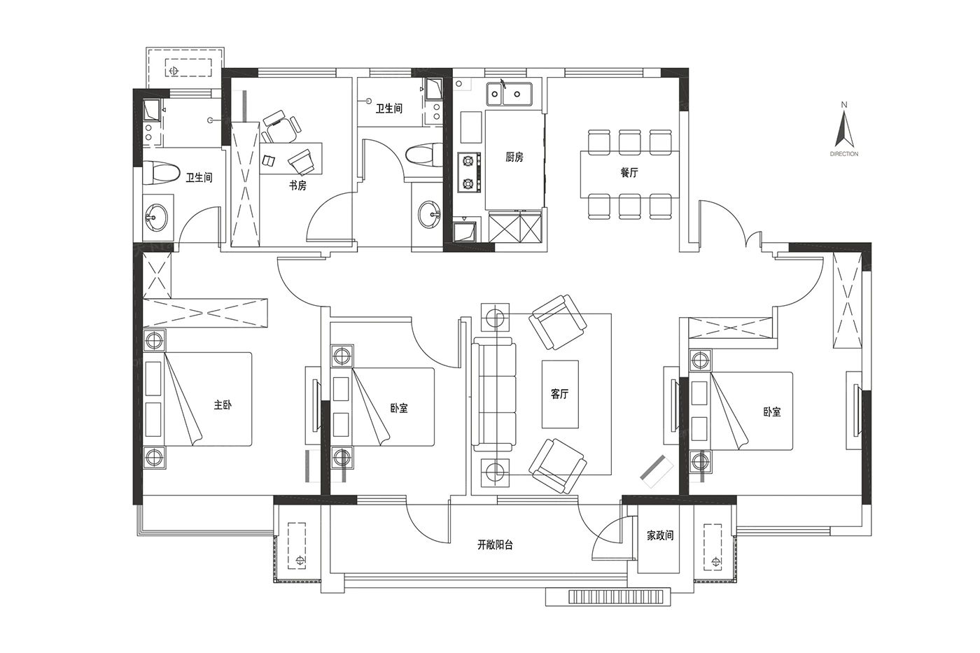
4室2厅2卫1厨
在售B户型 | 建面:143㎡ | 朝向:
- 所属楼盘
约250.25万元/套算月供
实际价格以售楼处为准,户型图为开发商提供,具体以实际交房标准为准
微信打开
查看完整户型评测9.4
户型评分
- 基础测评10
- 空间测评8.6
- 采光通风9.5
户型信息
- 1个阳台
- 2个明卫
- 主卧带卫生间
- 大面宽阳台
- 南北通透
- 采光充足
- 主卧带卫
- 明厨明卫
- 大面宽阳台
空间测评良好8.6空间测评指标

*施工有误差,交付时无法与户型图一致,仅供参考,最终以开发商合同为准
- 开放阳台:良好
- 客厅:优秀
- 餐厅:良好
- 主卧:良好
- 卧室:优秀
- 卧室A:良好
- 书房:良好
- 厨房:良好
- 卫生间:良好
- 卫生间A:良好
通风测评优秀9.5


- 开窗

- 风向
*施工有误差,交付时无法与户型图一致,仅供参考,最终以开发商合同为准
采光测评优秀9.5采光测评的指标
| 采光性 | 评价 | |
|---|---|---|
| 开放阳台 | 极佳 | |
| 客厅 | 普通 | |
| 餐厅 | 极佳 | |
| 主卧 | 极佳 | |
| 卧室 | 极佳 | |
| 卧室A | 良好 | |
| 书房 | 极佳 | |
| 卫生间 | 极佳 | |
| 卫生间A | 极佳 |
*户型数据为人工测量或估算值,可能于实际情况存在误差,仅供参考,实际数据以开发商发布为准。
房屋细节
客厅
- 空间宽敞客厅的空间足够宽敞,无论是家庭聚会还是朋友小聚,都能轻松容纳,让人感受到家的温馨与热闹。
- 舒适客厅空间宽敞,窗户设计精巧别致,自然光透过窗户洒满空间,无论是娱乐休闲还是亲朋聚会,都能在此感受到宁静与温馨。
- 有阳台客厅附带阳台,这一设计不仅让空间更通透,还增添了几分生活的情趣。
主卧
空间可容纳
床
2m*2.4m
床头柜X2
0.6m宽
衣柜
0.6m深
电视柜
0.5m*1.5m
- 紧凑实用这款主卧小巧玲珑,简约而不简单,每一处都透露出精致与实用。
优秀朝南的主卧,让阳光成为最好的伴侣,温暖您的每一个清晨。- 舒适主卧的窗户,是连接室内与自然的桥梁,让您在休息时也能感受到大自然的呼吸与节奏。
- 主卧带卫生间主卧中设有卫浴设施,满足日常需求,提升居住便利性。
- 主卧有阳台主卧带阳台,让您在繁忙的生活中找到一片属于自己的宁静之地,让您在这里享受生活的纯粹与美好。
卧室
空间可容纳
床
1.8m*2m
床头柜X2
0.4m宽
衣柜
0.6m深
- 空间较大卧室空间开阔,无论是休息还是储物,都能满足您的需求。
优秀朝南的卧室,阳光倾洒,通风顺畅,为您打造一处自然舒适的私密空间,无论是短暂休憩还是夜晚入眠,都能享受阳光的温柔照耀。- 有窗卧室的窗户,像一幅流动的画卷,展现着四季的变换,让您在每个清晨与黄昏,都能与自然亲密相拥。
卧室A
空间可容纳
床
1.2m*2m
床头柜X1
0.4m宽
- 空间适中尽管卧室A面积有限,但设计师巧妙地利用每一寸空间,布局合理,使这个小小的角落成为您放松身心的温馨之地。
- 有窗卧室A窗户设计合理,让自然光均匀洒满每个角落,为您打造一个明亮且舒适的休息环境。
- 次卧有阳台卧室A的阳台,是您观赏风景的绝佳之地。您可以在这里欣赏城市美景,感受城市的繁华与喧嚣,享受生活的多彩与丰富。
书房
- 空间适中书房虽小,却精致无比,设计匠心独运,巧妙布局,让每一寸空间都发挥到极致,营造出温馨舒适的休憩氛围。
- 有窗书房拥有明亮的窗户,让您在享受舒适睡眠的同时,也能感受到自然光的温暖与照耀,让您的生活更加美好。
厨房
- 空间适中厨房空间恰到好处,既不会显得拥挤,又能满足您日常烹饪的各种需求。
卫生间
- 空间适中精致小巧的卫生间,空间利用高效,让您的洗浴体验更加轻松愉快。
- 明卫卫生间设有窗户,通风效果更佳,有效减少潮湿,打造健康舒适的卫浴环境。
卫生间A
- 空间适中卫生间A空间适中,既满足您的日常需求,又保持空间的舒适度,让您的洗浴体验更加完美。
- 明卫卫生间A的窗户让自然光与新鲜空气得以自由流通,为居住者打造了一个健康舒适的卫浴空间。
优惠活动
查看更多优惠
置业顾问(7)
- 免费咨询
- 专业服务
- 区域解读
- 户型分析
查看全部
对此楼盘感兴趣的人还浏览了

1917·太白壹号院
16000元/平方米
任城-万达用户评分9.78分
在售改善优选洋房

湖畔华庭
4500元/平方米
金乡用户评分9.25分
在售低密居所

绿郡如园
5500元/平方米
金乡用户评分9.02分
在售
查看全部



优秀








