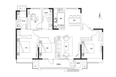
3室2厅2卫1厨
在售A户型 | 建面:127㎡ | 朝向:
- 所属楼盘
约222.25万元/套算月供
实际价格以售楼处为准,户型图为开发商提供,具体以实际交房标准为准
微信打开
查看完整户型评测9.4
户型评分
- 基础测评10
- 空间测评8.5
- 采光通风9.6
户型信息
- 1个阳台
- 2个明卫
- 明厨
- 主卧带卫生间
- 大面宽阳台
- 采光充足
- 主卧带卫
- 明厨明卫
- 大面宽阳台
空间测评良好8.5空间测评指标

*施工有误差,交付时无法与户型图一致,仅供参考,最终以开发商合同为准
- 开放阳台:良好
- 餐厅:良好
- 主卧:良好
- 卧室:良好
- 书房:良好
- 厨房:良好
- 卫生间:良好
- 卫生间A:良好
通风测评极佳9.6


- 开窗

- 风向
*施工有误差,交付时无法与户型图一致,仅供参考,最终以开发商合同为准
采光测评极佳9.6采光测评的指标
| 采光性 | 评价 | |
|---|---|---|
| 开放阳台 | 极佳 | |
| 主卧 | 极佳 | |
| 卧室 | 优秀 | |
| 书房 | 极佳 | |
| 厨房 | 极佳 | |
| 卫生间 | 极佳 | |
| 卫生间A | 极佳 |
*户型数据为人工测量或估算值,可能于实际情况存在误差,仅供参考,实际数据以开发商发布为准。
房屋细节
主卧
空间可容纳
床
1.8m*2m
床头柜X2
0.4m宽
衣柜
0.6m深
电视柜
0.5m*1.5m
- 紧凑实用主卧虽小,但设计感十足,紧凑的空间中充满了生活的温馨与美好。
- 朝东主卧朝东,早晨的阳光透过窗户洒满床榻,为居住者带来一份舒适与惬意,让新的一天充满温馨与甜蜜。
- 舒适主卧窗户通透,让光线与空气自由流通,为您打造一个明亮舒适的休息空间,感受自然的呵护。
- 主卧带卫生间主卧配备独立卫生间,打造私密舒适的居住体验,让您倍感温馨。
卧室
空间可容纳
床
1.8m*2m
床头柜X2
0.4m宽
衣柜
0.6m深
- 空间适中尽管卧室面积有限,但设计师却巧妙地利用空间,打造出一个精致而舒适的休憩之所,让您感受到家的温馨与惬意。
- 有窗卧室窗户设计合理,让自然光均匀洒满每个角落,为您打造一个明亮且舒适的休息环境。
- 次卧有阳台卧室带阳台,让您的生活更加灵动。您可以在这里种植喜爱的花草,感受大自然的生机与活力,享受生活的美好与和谐。
书房
- 空间适中书房虽小,却设计得十分用心,每一寸空间都被充分利用,为您打造出一个既舒适又温馨的休憩角落。
- 有窗书房拥有明亮的窗户,让自然光与新鲜空气自由流淌,为您打造一个健康舒适的生活空间。
厨房
- 空间适中厨房空间宽敞舒适,让您在烹饪时能够尽情发挥,享受美食带来的快乐。
- 明厨厨房窗户宽敞明亮,让阳光洒满整个空间,烹饪时仿佛置身于大自然之中,享受清新自然的味道。
卫生间
- 空间适中精致小巧的卫生间,空间利用高效,让您的洗浴体验更加轻松愉快。
- 明卫有了窗户的卫生间,不仅通风好,还能欣赏到窗外的美景,让卫浴时光更加惬意。
卫生间A
- 空间适中卫生间A空间恰到好处,既实用又美观,为您打造温馨的洗浴空间。
- 明卫卫生间A的窗户让室内光线充足,减少了潮湿和异味,为居住者带来更加健康舒适的卫浴环境。
优惠活动
查看更多优惠
置业顾问(7)
- 免费咨询
- 专业服务
- 区域解读
- 户型分析
查看全部
对此楼盘感兴趣的人还浏览了

睿湖美景
12500元/平方米
高新区-洸府河用户评分9.65分
在售低密居所不限购改善优选洋房

蓼河惠谷
15600元/平方米
高新区-华润万象汇用户评分9.48分
售完低密居所改善优选

鸿顺.御和园
14500元/平方米
太白湖新区-吾悦广场用户评分9.37分
在售低密居所花园洋房改善优选
查看全部













