金地水木海棠
别名:水木海棠
全款96折 分期98折 报价时间:2022年03月02日,价格有效期:30天
订阅消息将通过短信及推送等形式通知您
优惠活动
- 总楼栋:
17栋
- 规划户数:
542户
- 占地面积:
66635.27㎡
- 建筑面积:
79639.56㎡
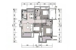
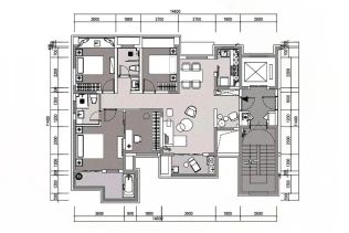
主推户型是 107.00㎡(3室2厅1卫),106.00㎡(3室2厅1卫)看看这几年的城市规划,这个地方肯定能升值。
口碑听说的不多,希望这个小区有个好口碑。产权是70年的小区
打开房天下APP,查看更多内容
立即打开免责声明:本站楼盘信息旨在为用户提供更多信息的无偿服务,信息以政府部门登记备案为准,请谨慎核查。













