- 81㎡
- 129㎡
- 129.21㎡
- 129.08㎡
- 128.56㎡
- 86.75㎡
- 88㎡
- 129㎡
- 129㎡
- 81㎡
- 80.99㎡
- 129㎡
- 78㎡
- 86.95㎡
- 88.53㎡
- 78.38㎡
- 86.9㎡
- 81.05㎡
- 78.34㎡
- 88.73㎡
- 81.75㎡
- 88㎡
- 81.28㎡
- 88.85㎡
- 87.05㎡
- 87㎡
- 81㎡
- 88.76㎡
- 78㎡
- 78.46㎡
- 88.8㎡
- 78㎡
- 86.72㎡
- 81.3㎡
- 81㎡
- 81.57㎡
- 88.6㎡
- 81㎡
- 88.6㎡
- 78㎡
- 81㎡
- 86.71㎡
- 77㎡
- 78.4㎡
- 88㎡
- 129㎡
- 81㎡
- 78.67㎡
- 128.62㎡
- 129㎡
- 80.65㎡
- 81.6㎡
- 129㎡
- 78㎡
- 81㎡
- 88.88㎡
- 88㎡
- 78㎡
- 78.8㎡
- 129㎡
- 86.71㎡
- 79.98㎡
- 81.57㎡
- 89㎡
- 108㎡
- 79㎡
- 88.08㎡
- 129.14㎡
- 88.08㎡
- 77.09㎡
- 81.51㎡
- 88.23㎡
- 129.14㎡
- 88.08㎡
- 77.09㎡
- 81.51㎡
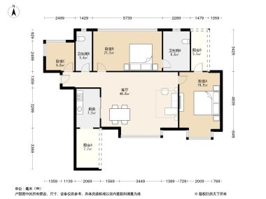
3室1厅2卫1厨
售完千禧河畔国际社区3居室户型图 | 建面:129㎡ | 朝向:朝南
- 所属楼盘
价格待定算月供
实际价格以售楼处为准,户型图为开发商提供,具体以实际交房标准为准
微信打开
查看完整户型评测9.1
户型评分
- 基础测评9.5
- 空间测评8.8
- 采光通风8.8
户型信息
- 3个阳台
- 2个明卫
- 明厨
- 次卧带卫生间
- 大面宽阳台
- 明厨
- 明卫
- 客厅朝南
空间测评良好8.8空间测评指标

*施工有误差,交付时无法与户型图一致,仅供参考,最终以开发商合同为准
- 客厅:极佳
- 卧室A:极佳
- 卧室B:良好
- 卧室C:良好
- 厨房:良好
- 卫生间A:良好
- 卫生间B:良好
- 阳台A:良好
- 阳台B:良好
- 阳台C:良好
- 储物间:良好
通风测评良好8.8


- 开窗

- 风向
*施工有误差,交付时无法与户型图一致,仅供参考,最终以开发商合同为准
采光测评良好8.8采光测评的指标
| 采光性 | 评价 | |
|---|---|---|
| 客厅 | 普通 | |
| 卧室A | 极佳 | |
| 厨房 | 良好 | |
| 卫生间A | 优秀 | |
| 卫生间B | 极佳 | |
| 阳台A | 极佳 |
*户型数据为人工测量或估算值,可能于实际情况存在误差,仅供参考,实际数据以开发商发布为准。
房屋细节
客厅
- 空间豪华豪华客厅,每一处细节都透露出高贵与典雅,让人流连忘返。
优秀落地窗让客厅与大自然紧密相连,无论是清晨的阳光还是傍晚的余晖,都能在此尽情欣赏,感受生活的美好。
卧室A
空间可容纳
床
1.8m*2m
床头柜X2
0.4m宽
衣柜
0.6m深
- 空间较大卧室A空间开阔,无论是休息还是储物,都能满足您的需求。
优秀卧室A与自然融合,落地窗打造通透明亮的空间,让您在这里感受到室内外无缝连接的舒适体验。- 次卧有阳台带有阳台的卧室A,让您的生活更加浪漫。您可以在这里点燃香薰蜡烛,营造浪漫的氛围,享受与伴侣的甜蜜时光。
卧室B
空间可容纳
床
1.2m*2m
床头柜X1
0.4m宽
- 空间适中精致小巧的卧室B,设计得十分精致,每一寸空间都得到了合理的利用,让您在繁忙的生活中拥有一个宁静的休憩之所。
- 次卧有阳台带有阳台的卧室B,让您的生活更加宁静。您可以在这里静心冥想,感受内心的平静与安宁,享受生活的宁静与祥和。
卧室C
- 空间适中尽管卧室C面积有限,但设计师却巧妙地将每一寸空间都利用起来,打造出一个精致而舒适的休憩环境。
厨房
- 空间适中适度的厨房面积,让您的烹饪过程更加得心应手,提升生活品质。
- 明厨厨房的窗户如同明亮的眼睛,让室内充满自然光,烹饪过程更加轻松,感受家的舒适与惬意。
- 厨房带阳台厨房有小阳台,方便储物。
卫生间A
- 空间适中卫生间A空间适中,既不过于紧凑也不过于空旷,让您的洗浴体验更加舒适自然。
- 明卫卫生间A的窗户设计,既保证了通风效果,又提升了空间的明亮感,让卫浴更加愉悦。
卫生间B
- 空间适中卫生间B空间适中,既不过于拥挤也不过于空旷,让您的洗浴体验更加舒适自如。
- 明卫卫生间B的窗户设计,让自然光与新鲜空气自由流通,为居住者带来清新舒适的卫浴体验。
3室1厅1卫售完8.9“良好”
价格待定81.00㎡
3室2厅2卫售完9“优秀”
价格待定86.75㎡
3室2厅2卫售完9“优秀”
价格待定88.00㎡
3室1厅1卫售完8.3“良好”
价格待定80.99㎡
3室1厅1卫售完8.6“良好”
价格待定78.00㎡
3室1厅2卫售完9.1“优秀”
价格待定86.95㎡
3室2厅2卫售完8.9“良好”
价格待定88.53㎡
3室1厅2卫售完9.1“优秀”
价格待定86.90㎡
3室1厅1卫售完8.4“良好”
价格待定81.05㎡
3室1厅1卫售完8.6“良好”
价格待定78.34㎡
3室2厅1卫售完8.2“良好”
价格待定88.73㎡
3室2厅1卫售完8.4“良好”
价格待定81.75㎡
3室2厅2卫售完8.9“良好”
价格待定88.00㎡
3室2厅2卫售完8.9“良好”
价格待定88.85㎡
3室2厅2卫售完8.5“良好”
价格待定87.05㎡
3室2厅2卫售完8.9“良好”
价格待定87.00㎡
3室2厅1卫售完8.2“良好”
价格待定81.00㎡
3室2厅2卫售完8.8“良好”
价格待定88.76㎡
3室1厅1卫售完8.9“良好”
价格待定78.46㎡
3室2厅2卫售完9.2“优秀”
价格待定88.80㎡
3室2厅1卫售完8.8“良好”
价格待定78.00㎡
3室2厅2卫售完9.1“优秀”
价格待定86.72㎡
3室3厅1卫售完8.2“良好”
价格待定81.30㎡
3室2厅1卫售完8.4“良好”
价格待定81.00㎡
3室1厅1卫售完8.7“良好”
价格待定81.57㎡
3室2厅2卫售完9.1“优秀”
价格待定88.60㎡
3室2厅1卫售完8.3“良好”
价格待定81.00㎡
3室2厅1卫售完8.7“良好”
价格待定88.60㎡
3室2厅1卫售完8.9“良好”
价格待定81.00㎡
3室2厅2卫售完9.4“优秀”
价格待定86.71㎡
3室1厅1卫售完8.5“良好”
价格待定77.00㎡
3室2厅2卫售完9“优秀”
价格待定88.00㎡
3室1厅1卫售完8.8“良好”
价格待定81.60㎡
3室1厅1卫售完8.4“良好”
价格待定81.00㎡
3室2厅2卫售完8.7“良好”
价格待定88.88㎡
3室1厅2卫售完8.8“良好”
价格待定88.00㎡
3室2厅2卫售完8.7“良好”
价格待定86.71㎡
3室2厅2卫售完9“优秀”
价格待定89.00㎡
3室2厅2卫售完10“极佳”
价格待定108.00㎡
3室2厅1卫售完8“良好”
价格待定79.00㎡
3室2厅2卫售完9“优秀”
价格待定88.08㎡
3室2厅2卫售完9“优秀”
价格待定88.08㎡
3室2厅1卫售完8“良好”
价格待定77.09㎡
3室2厅1卫售完8“良好”
价格待定81.51㎡
3室2厅2卫售完9“优秀”
价格待定88.23㎡
3室2厅2卫售完9“优秀”
价格待定88.08㎡
3室2厅1卫售完8“良好”
价格待定77.09㎡
3室2厅1卫售完8“良好”
价格待定81.51㎡
对此楼盘感兴趣的人还浏览了
查看全部





优秀









































































