- 81㎡
- 129㎡
- 129.21㎡
- 129.08㎡
- 128.56㎡
- 86.75㎡
- 88㎡
- 129㎡
- 129㎡
- 81㎡
- 80.99㎡
- 129㎡
- 78㎡
- 86.95㎡
- 88.53㎡
- 78.38㎡
- 86.9㎡
- 81.05㎡
- 78.34㎡
- 88.73㎡
- 81.75㎡
- 88㎡
- 81.28㎡
- 88.85㎡
- 87.05㎡
- 87㎡
- 81㎡
- 88.76㎡
- 78㎡
- 78.46㎡
- 88.8㎡
- 78㎡
- 86.72㎡
- 81.3㎡
- 81㎡
- 81.57㎡
- 88.6㎡
- 81㎡
- 88.6㎡
- 78㎡
- 81㎡
- 86.71㎡
- 77㎡
- 78.4㎡
- 88㎡
- 129㎡
- 81㎡
- 78.67㎡
- 128.62㎡
- 129㎡
- 80.65㎡
- 81.6㎡
- 129㎡
- 78㎡
- 81㎡
- 88.88㎡
- 88㎡
- 78㎡
- 78.8㎡
- 129㎡
- 86.71㎡
- 79.98㎡
- 81.57㎡
- 89㎡
- 108㎡
- 79㎡
- 88.08㎡
- 129.14㎡
- 88.08㎡
- 77.09㎡
- 81.51㎡
- 88.23㎡
- 129.14㎡
- 88.08㎡
- 77.09㎡
- 81.51㎡
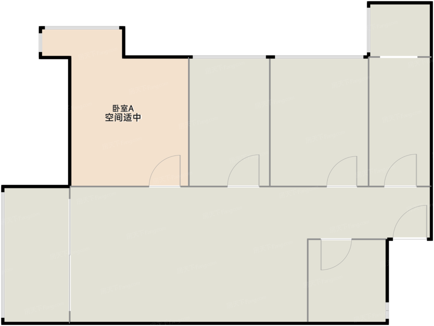
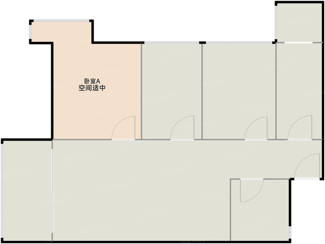
3室1厅1卫1厨
售完千禧河畔国际社区3居室户型图 | 建面:77㎡ | 朝向:东北
- 所属楼盘
价格待定算月供
实际价格以售楼处为准,户型图为开发商提供,具体以实际交房标准为准
微信打开
查看完整户型评测8.5
户型评分
- 基础测评7.8
- 空间测评8.6
- 采光通风9.3
户型信息
- 2个阳台
- 1个明卫
- 明卫
- 双阳台
空间测评良好8.6空间测评指标

*施工有误差,交付时无法与户型图一致,仅供参考,最终以开发商合同为准
- 客厅:良好
- 卧室A:良好
- 卧室B:良好
- 卧室C:良好
- 厨房:良好
- 卫生间:良好
- 阳台A:良好
- 阳台B:优秀
通风测评优秀9.3


- 开窗

- 风向
*施工有误差,交付时无法与户型图一致,仅供参考,最终以开发商合同为准
采光测评优秀9.3采光测评的指标
| 采光性 | 评价 | |
|---|---|---|
| 卧室A | 极佳 | |
| 卧室B | 极佳 | |
| 卧室C | 极佳 | |
| 卫生间 | 普通 | |
| 阳台A | 极佳 | |
| 阳台B | 极佳 |
*户型数据为人工测量或估算值,可能于实际情况存在误差,仅供参考,实际数据以开发商发布为准。
房屋细节
客厅
- 紧凑实用虽然客厅面积有限,但展现出小巧精致的魅力。紧凑而实用的设计风格使得空间得以充分利用。这个小空间充满了家的温暖和舒适。
- 有阳台客厅附带阳台,这一设计不仅让空间更通透,还增添了几分生活的情趣。
卧室A
空间可容纳
床
1.2m*2m
床头柜X1
0.4m宽
- 空间适中尽管卧室A面积有限,但设计师却巧妙地利用空间,打造出一个精致而舒适的休憩之所,让您感受到家的温馨与惬意。
优秀站在卧室A的落地窗前,您可以尽情领略窗外的美景,感受生活的美好与宁静。
卧室B
空间可容纳
床
1.2m*2m
床头柜X1
0.4m宽
- 空间适中虽然卧室B面积不足,但设计却独具匠心,布局合理,让每一寸空间都发挥出其最大的价值,为您带来舒适的休憩体验。
优秀透过卧室B的落地窗,您可以与窗外的美景零距离接触,感受大自然的亲近与和谐。
卧室C
空间可容纳
床
1.8m*2m
床头柜X2
0.4m宽
衣柜
0.6m深
- 空间适中尽管卧室C面积有限,但设计师却巧妙地将每一寸空间都利用起来,打造出一个精致而舒适的休憩环境。
优秀卧室C的落地窗,让自然光与室内空间完美交融,为您打造一个明亮而舒适的居住空间。
厨房
- 空间适中精心打造的厨房空间,既实用又美观,让您的烹饪之旅更加精彩纷呈。
- 厨房带阳台厨房有个小阳台,给杂物一个收纳空间。
卫生间
- 空间适中卫生间空间适中,既满足日常需求,又保持舒适感,让您享受轻松的洗浴时光。
- 明卫卫生间设有窗户,通风采光两不误,为居住者打造了一个健康舒适的卫浴空间。
3室1厅1卫售完8.9“良好”
价格待定81.00㎡
3室2厅2卫售完9“优秀”
价格待定86.75㎡
3室2厅2卫售完9“优秀”
价格待定88.00㎡
3室1厅2卫售完9.1“优秀”
价格待定129.00㎡
3室1厅1卫售完8.3“良好”
价格待定80.99㎡
3室1厅1卫售完8.6“良好”
价格待定78.00㎡
3室1厅2卫售完9.1“优秀”
价格待定86.95㎡
3室2厅2卫售完8.9“良好”
价格待定88.53㎡
3室1厅2卫售完9.1“优秀”
价格待定86.90㎡
3室1厅1卫售完8.4“良好”
价格待定81.05㎡
3室1厅1卫售完8.6“良好”
价格待定78.34㎡
3室2厅1卫售完8.2“良好”
价格待定88.73㎡
3室2厅1卫售完8.4“良好”
价格待定81.75㎡
3室2厅2卫售完8.9“良好”
价格待定88.00㎡
3室2厅2卫售完8.9“良好”
价格待定88.85㎡
3室2厅2卫售完8.5“良好”
价格待定87.05㎡
3室2厅2卫售完8.9“良好”
价格待定87.00㎡
3室2厅1卫售完8.2“良好”
价格待定81.00㎡
3室2厅2卫售完8.8“良好”
价格待定88.76㎡
3室1厅1卫售完8.9“良好”
价格待定78.46㎡
3室2厅2卫售完9.2“优秀”
价格待定88.80㎡
3室2厅1卫售完8.8“良好”
价格待定78.00㎡
3室2厅2卫售完9.1“优秀”
价格待定86.72㎡
3室3厅1卫售完8.2“良好”
价格待定81.30㎡
3室2厅1卫售完8.4“良好”
价格待定81.00㎡
3室1厅1卫售完8.7“良好”
价格待定81.57㎡
3室2厅2卫售完9.1“优秀”
价格待定88.60㎡
3室2厅1卫售完8.3“良好”
价格待定81.00㎡
3室2厅1卫售完8.7“良好”
价格待定88.60㎡
3室2厅1卫售完8.9“良好”
价格待定81.00㎡
3室2厅2卫售完9.4“优秀”
价格待定86.71㎡
3室2厅2卫售完9“优秀”
价格待定88.00㎡
3室1厅1卫售完8.8“良好”
价格待定81.60㎡
3室1厅1卫售完8.4“良好”
价格待定81.00㎡
3室2厅2卫售完8.7“良好”
价格待定88.88㎡
3室1厅2卫售完8.8“良好”
价格待定88.00㎡
3室2厅2卫售完8.7“良好”
价格待定86.71㎡
3室2厅2卫售完9“优秀”
价格待定89.00㎡
3室2厅2卫售完10“极佳”
价格待定108.00㎡
3室2厅1卫售完8“良好”
价格待定79.00㎡
3室2厅2卫售完9“优秀”
价格待定88.08㎡
3室2厅2卫售完9“优秀”
价格待定88.08㎡
3室2厅1卫售完8“良好”
价格待定77.09㎡
3室2厅1卫售完8“良好”
价格待定81.51㎡
3室2厅2卫售完9“优秀”
价格待定88.23㎡
3室2厅2卫售完9“优秀”
价格待定88.08㎡
3室2厅1卫售完8“良好”
价格待定77.09㎡
3室2厅1卫售完8“良好”
价格待定81.51㎡
对此楼盘感兴趣的人还浏览了
查看全部




优秀









































































