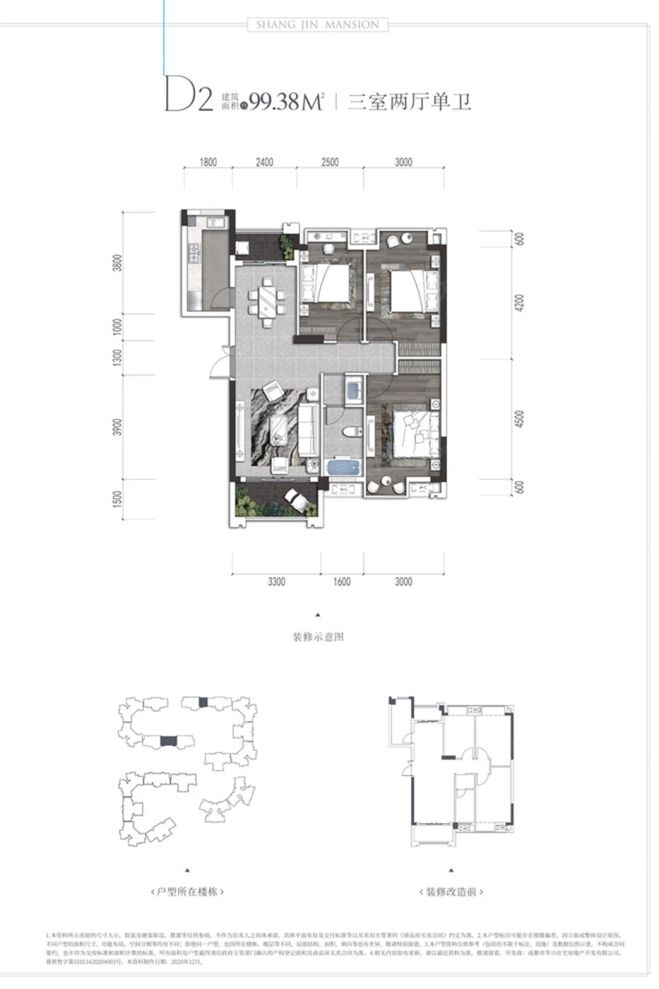
3室2厅1卫1厨
在售D2户型 | 建面:99.38㎡ | 朝向:南北
- 所属楼栋
1栋
- 所属楼盘
约149.07万元/套算月供
实际价格以售楼处为准,户型图为开发商提供,具体以实际交房标准为准
微信打开
查看完整户型评测9
户型评分
- 基础测评9
- 空间测评8.8
- 采光通风9.3
户型信息
- 2个阳台
- 1个明卫
- 明厨
- 全明格局
- 户型方正
空间测评良好8.8空间测评指标


- 面宽

- 进深
*施工有误差,交付时无法与户型图一致,仅供参考,最终以开发商合同为准
| 面积(㎡) | 面宽(m) | 进深(m) | 评价 | |
|---|---|---|---|---|
| 客厅 | 21.6 | 6.4 | 5.1 | 极佳 |
| 餐厅 | 6.9 | 2.5 | 2.7 | 良好 |
| 卧室A | 10.2 | 2.7 | 4.2 | 良好 |
| 卧室B | 12.2 | 2.9 | 4.7 | 良好 |
| 卧室C | 13.5 | 2.9 | 5.5 | 良好 |
| 厨房 | 6.9 | 1.8 | 3.8 | 极佳 |
| 卫生间 | 4.2 | 1.7 | 2.4 | 良好 |
| 阳台 | 3.2 | 2.5 | 1.3 | 良好 |
| 阳台A | 6.7 | 3.5 | 1.9 | 良好 |
*户型数据为人工测量或估算值,可能于实际情况存在误差,仅供参考,实际数据以开发商发布为准。
通风测评优秀9.3


- 开窗

- 风向
*施工有误差,交付时无法与户型图一致,仅供参考,最终以开发商合同为准
采光测评优秀9.3采光测评的指标
| 采光性 | 评价 | |
|---|---|---|
| 卧室A | 优秀 | |
| 卧室B | 良好 | |
| 卧室C | 极佳 | |
| 厨房 | 极佳 | |
| 卫生间 | 极佳 | |
| 阳台 | 极佳 | |
| 阳台A | 极佳 |
*户型数据为人工测量或估算值,可能于实际情况存在误差,仅供参考,实际数据以开发商发布为准。
房屋细节
客厅 21.6㎡ | 面宽6.4m | 进深5.1m
- 空间豪华宽敞豪华的客厅,是家庭聚会的绝佳场所,也是主人展现品味的重要舞台。
- 有阳台客厅附带阳台,这一设计既增加了空间的使用功能,又提升了家居的整体美感。
卧室A 10.2㎡ | 面宽2.7m | 进深4.2m
空间可容纳
床
1.8m*2m
床头柜X2
0.4m宽
衣柜
0.6m深
- 空间适中精致小巧的卧室A,虽然面积不足10平米,但设计巧妙,布局合理,每一寸空间都得到了充分利用,为您打造了一个温馨而舒适的休憩角落
- 有窗卧室A的窗户,如同一扇通往自然的门,让您随时都能感受到室外的美景与气息。
- 次卧有阳台卧室A带阳台,让您的生活更加灵动。您可以在这里种植喜爱的花草,感受大自然的生机与活力,享受生活的美好与和谐。
卧室B 12.2㎡ | 面宽2.9m | 进深4.7m
空间可容纳
床
1.8m*2m
床头柜X2
0.4m宽
衣柜
0.6m深
- 空间适中精致小巧的卧室B,虽然面积不足10平米,但设计巧妙,布局合理,每一寸空间都得到了充分利用,为您打造了一个温馨而舒适的休憩角落
- 有窗卧室B拥有明亮的窗户,让自然光与新鲜空气自由流淌,为您打造一个健康舒适的生活空间。
卧室C 13.5㎡ | 面宽2.9m | 进深5.5m
空间可容纳
床
1.8m*2m
床头柜X2
0.4m宽
衣柜
0.6m深
- 空间适中精致小巧的卧室C,虽然面积不大,但设计却充满巧思,每一处都透露着舒适与温馨,让您感受到家的温暖。
优秀卧室C朝向南方,光线明亮,通风流畅,为您的私密空间增添一份自然的宁静与舒适,无论是短暂休息还是深度睡眠,都能感受到阳光的温馨呵护。- 有窗卧室C窗户设计独特,让室内的光线与室外的景色完美融合,为您营造一个既温馨又舒适的生活氛围。
厨房 6.9㎡ | 面宽1.8m | 进深3.8m
- 空间较大厨房面积宽敞,多人协作料理更加高效,同时满足家电摆放需求,让生活更美好。
- 明厨厨房窗户设计独特,通风采光俱佳,让烹饪过程更加轻松愉悦,感受家的温馨与舒适。
- 厨房带阳台厨房有个小阳台,给杂物一个收纳空间。
卫生间 4.2㎡ | 面宽1.7m | 进深2.4m
- 空间适中卫生间空间适中,既不过于紧凑也不过于空旷,让您的洗浴体验更加舒适自然。
- 明卫透过卫生间的窗户,可以感受到自然的气息,让卫浴时光变得更加轻松愉悦。
优惠活动
查看更多优惠
置业顾问(1)
- 免费咨询
- 专业服务
- 区域解读
- 户型分析
对此楼盘感兴趣的人还浏览了

能建·紫郡公馆
20000元/平方米
金牛-国宾用户评分9.57分
售完改善优选装修交付地铁沿线

盛世名邸
19000元/平方米
天府新区-麓山用户评分9.3分
在售低密居所改善优选装修交付地铁沿线

龙湖观辰
20000元/平方米
郫都-犀浦镇用户评分9.33分
售完地铁沿线改善优选
查看全部






优秀
























