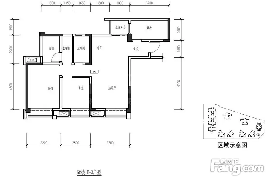
3室2厅1卫1厨
售完6#E3户型 | 建面:89.91㎡ | 朝向:
- 所属楼盘
价格待定算月供
实际价格以售楼处为准,户型图为开发商提供,具体以实际交房标准为准
微信打开
查看完整户型评测8.5
户型评分
- 基础测评8
- 空间测评8.5
- 采光通风9.3
户型信息
- 2个阳台
- 3个飘窗
- 1个明卫
- 独立衣帽间
- 户型方正
- 带衣帽间
空间测评良好8.5空间测评指标


- 面宽

- 进深
*施工有误差,交付时无法与户型图一致,仅供参考,最终以开发商合同为准
| 面积(㎡) | 面宽(m) | 进深(m) | 评价 | |
|---|---|---|---|---|
| 餐厅 | 4.2 | 1.7 | 2.5 | 良好 |
| 卧室A | 13.7 | 3.3 | 4.2 | 良好 |
| 卧室B | 7.4 | 2.6 | 2.9 | 良好 |
| 厨房 | 6.9 | 3.7 | 1.9 | 良好 |
| 卫生间 | 4 | 1.6 | 2.5 | 良好 |
| 阳台 | 2.5 | 1.8 | 1.4 | 良好 |
| 阳台A | 4.8 | 1.9 | 2.5 | 良好 |
*户型数据为人工测量或估算值,可能于实际情况存在误差,仅供参考,实际数据以开发商发布为准。
通风测评优秀9.3


- 开窗

- 风向
*施工有误差,交付时无法与户型图一致,仅供参考,最终以开发商合同为准
采光测评优秀9.3采光测评的指标
| 采光性 | 评价 | |
|---|---|---|
| 卧室A | 极佳 | |
| 卧室B | 极佳 | |
| 卫生间 | 优秀 | |
| 阳台 | 极佳 | |
| 阳台A | 极佳 |
*户型数据为人工测量或估算值,可能于实际情况存在误差,仅供参考,实际数据以开发商发布为准。
房屋细节
卧室A 13.7㎡ | 面宽3.3m | 进深4.2m
空间可容纳
床
1.8m*2m
床头柜X2
0.4m宽
衣柜
0.6m深
- 空间适中卧室A虽小,却设计得精致而舒适,每一寸空间都得到了充分的利用,为您带来一个宁静而温馨的休憩环境。
优秀朝南设计的卧室A,光线明亮且宜人,通风效果出色,为您的私人领地营造一份自然的惬意与安逸,无论是短暂休息还是长夜安睡,都能感受到阳光的温暖陪伴。- 有飘窗卧室A的飘窗设计巧妙,既拓宽视野,又增添室内空间感,让您的居住更加舒适。
- 次卧有阳台卧室A的阳台,是您品味生活的好地方。您可以在这里品茗论道,感受文化的底蕴与内涵,享受生活的精致与高雅。
卧室B 7.4㎡ | 面宽2.6m | 进深2.9m
空间可容纳
床
1.2m*2m
床头柜X1
0.4m宽
- 空间适中尽管卧室B面积有限,但设计师却巧妙地将每一寸空间都利用起来,打造出一个既实用又舒适的休憩之所。
优秀朝南的卧室B采光优良,通风顺畅,为您的私人领地营造一份自然的宁静与温馨,无论是短暂休息还是深度睡眠,都能沐浴在温暖的阳光之中。- 有飘窗拥有飘窗的卧室B,让窗外的风景成为室内的一部分,为您带来一份宁静与惬意。
厨房 6.9㎡ | 面宽3.7m | 进深1.9m
- 空间适中适中的厨房空间,让您的烹饪过程更加轻松愉快,享受美食带来的幸福。
- 厨房带阳台厨房有个小阳台,给杂物一个收纳空间。
卫生间 4㎡ | 面宽1.6m | 进深2.5m
- 空间适中虽面积不大,但卫生间布局合理,空间适中,轻松享受私密舒适的洗漱时光。
- 明卫卫生间的窗户让室内光线充足,减少了潮湿和异味,为居住者带来更加健康舒适的卫浴环境。
4001891623 转 812291
安全通话隐藏真实号码,致电售楼处了解更多优惠信息
对此楼盘感兴趣的人还浏览了

鹭湾锦上映
33000元/平方米
锦江用户评分9.49分
在售国企开发改善优选装修交付地铁沿线

保利新川天珺
37000元/平方米
高新-中和用户评分9.42分
在售改善优选地铁沿线装修交付

金融城8号
70000元/平方米
高新-金融城用户评分8.88分
在售装修交付地铁沿线
查看全部






优秀























