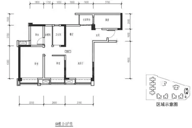
3室2厅1卫1厨
售完3#D4户型 | 建面:95㎡ | 朝向:
- 所属楼栋
3栋
- 所属楼盘
价格待定算月供
实际价格以售楼处为准,户型图为开发商提供,具体以实际交房标准为准
微信打开
查看完整户型评测8.6
户型评分
- 基础测评8
- 空间测评8.6
- 采光通风9.3
户型信息
- 2个阳台
- 1个飘窗
- 1个明卫
- 明厨
- 观景飘窗
- 双阳台
空间测评良好8.6空间测评指标

*施工有误差,交付时无法与户型图一致,仅供参考,最终以开发商合同为准
- 客厅:优秀
- 餐厅:良好
- 主卧:良好
- 卧室:良好
- 卧室A:良好
- 厨房:良好
- 卫生间:良好
- 阳台:良好
- 阳台A:良好
通风测评优秀9.3


- 开窗

- 风向
*施工有误差,交付时无法与户型图一致,仅供参考,最终以开发商合同为准
采光测评优秀9.3采光测评的指标
| 采光性 | 评价 | |
|---|---|---|
| 主卧 | 极佳 | |
| 卧室 | 极佳 | |
| 卧室A | 极佳 | |
| 厨房 | 良好 | |
| 卫生间 | 优秀 | |
| 阳台 | 极佳 | |
| 阳台A | 极佳 |
*户型数据为人工测量或估算值,可能于实际情况存在误差,仅供参考,实际数据以开发商发布为准。
房屋细节
客厅
- 空间宽敞客厅的面积足够大,无论是摆放家具还是布置装饰品,都能展现出主人的品味和风格。
- 有阳台阳台与客厅相连,使得室内空间与室外环境得以完美融合,居住体验更加舒适。
主卧
空间可容纳
床
1.8m*2m
床头柜X2
0.4m宽
衣柜
0.6m深
电视柜
0.5m*1.5m
- 紧凑实用这款主卧虽小,却别有一番风情,精致而又不失实用性。
优秀主卧朝南,温暖如春,尽享阳光沐浴,舒适宜人。- 有飘窗主卧的飘窗设计精致而实用,既增加了空间的通透性,又为您打造了一个宁静的休闲空间。
- 主卧有阳台主卧的阳台设计,将室内与室外完美融合,让您在这个空间里,既能感受家的温馨,又能享受自然的恩赐。
卧室
- 空间适中卧室虽小,却设计得十分精致,每一寸空间都被合理利用,为您营造出一个既舒适又温馨的休憩环境。
- 有窗卧室设有明亮窗户,窗外绿意盎然,让您在休息时刻也能尽享大自然的馈赠,舒缓身心。
卧室A
空间可容纳
床
1.2m*2m
床头柜X1
0.4m宽
- 空间适中尽管卧室A面积有限,但设计师巧妙地利用每一寸空间,布局合理,使这个小小的角落成为您放松身心的温馨之地。
- 有窗卧室A窗户宽敞明亮,让您在繁忙的生活中,也能找到一处宁静的角落,享受片刻的宁静与放松。
厨房
- 空间适中适中的厨房面积,既满足日常烹饪需求,又能让厨房保持整洁有序。
- 明厨宽敞的厨房窗户带来明亮光线,让烹饪环境更加舒适,享受家的温馨与宁静。
- 厨房带阳台厨房有小阳台,方便储物。
卫生间
- 空间适中精致小巧的卫生间,空间布局合理,既实用又美观,营造温馨舒适的洗浴环境。
- 明卫卫生间的窗户设计巧妙,既保证了通风采光,又提升了空间的品质感。
4001891623 转 812291
安全通话隐藏真实号码,致电售楼处了解更多优惠信息
对此楼盘感兴趣的人还浏览了

鹭湾锦上映
33000元/平方米
锦江用户评分9.49分
在售国企开发改善优选装修交付地铁沿线

保利新川天珺
37000元/平方米
高新-中和用户评分9.42分
在售改善优选地铁沿线装修交付

金融城8号
70000元/平方米
高新-金融城用户评分8.88分
在售装修交付地铁沿线
查看全部





优秀























