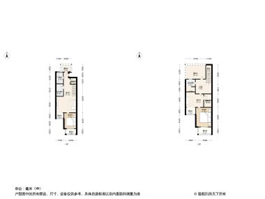
2室1厅1卫1厨
售完南木樨园2居室户型图 | 建面:58.1㎡ | 朝向:南北通透
- 所属楼盘
价格待定算月供
实际价格以售楼处为准,户型图为开发商提供,具体以实际交房标准为准
微信打开
查看完整户型评测9.4
户型评分
- 基础测评10
- 空间测评8.6
- 采光通风9.4
户型信息
- 1个阳台
- 1个明卫
- 明厨
- 户型方正
- 明厨
- 明卫
- 主卧朝南
空间测评良好8.6空间测评指标

*施工有误差,交付时无法与户型图一致,仅供参考,最终以开发商合同为准
- 客厅:良好
- 卧室A:优秀
- 卧室B:良好
- 厨房:良好
- 卫生间:良好
- 阳台:良好
通风测评优秀9.4


- 开窗

- 风向
*施工有误差,交付时无法与户型图一致,仅供参考,最终以开发商合同为准
采光测评优秀9.4采光测评的指标
| 采光性 | 评价 | |
|---|---|---|
| 客厅 | 良好 | |
| 卧室A | 普通 | |
| 卧室B | 极佳 | |
| 厨房 | 极佳 | |
| 卫生间 | 极佳 | |
| 阳台 | 极佳 |
*户型数据为人工测量或估算值,可能于实际情况存在误差,仅供参考,实际数据以开发商发布为准。
房屋细节
客厅
- 紧凑实用尽管客厅面积不宽敞,但设计上的小巧精致令人印象深刻。紧凑而实用的布局充分考虑了空间利用率。这个小空间散发着家的温馨与舒适。
- 舒适客厅通透宽敞,窗户设计别致,自然光透过窗户洒满空间,无论是娱乐休闲还是观赏风景,都能在此感受到生活的惬意与美好。
卧室A
空间可容纳
床
1.8m*2m
床头柜X2
0.4m宽
衣柜
0.6m深
- 空间较大卧室A空间足够大,让您在布置家具时更加随心所欲。
优秀朝南设计的卧室A,光线明亮且宜人,通风效果出色,为您的私人领地营造一份自然的惬意与安逸,无论是短暂休息还是长夜安睡,都能感受到阳光的温暖陪伴。- 有窗卧室A窗户宽敞明亮,让您在繁忙的生活中,也能找到一处宁静的角落,享受片刻的宁静与放松。
- 次卧有阳台阳台与卧室A的完美结合,让您的居住体验更加完美。您可以在这里举办小型聚会,与朋友共度欢乐时光,留下美好的回忆。
卧室B
空间可容纳
床
1.2m*2m
床头柜X1
0.4m宽
- 空间适中卧室B设计得十分精巧,每一寸空间都得到了合理的利用,既实用又美观,让您在有限的空间里享受无限的舒适。
- 有窗卧室B窗户明亮宜人,让您在舒适的床上就能欣赏到窗外的美景,感受生活的美好与宁静。
厨房
- 空间适中适中的厨房空间,让您的烹饪过程更加轻松愉快,享受美食带来的幸福。
- 明厨明亮窗户的厨房设计,让烹饪过程充满阳光与活力,享受家的美好与幸福。
卫生间
- 空间适中卫生间空间适中,既不过于紧凑也不过于空旷,让您的洗浴体验更加舒适自然。
- 明卫窗户的加入让卫生间不再封闭,空气流通更顺畅,居住体验更舒适。
2室2厅1卫售完8.9“良好”
价格待定94.27㎡
2室2厅2卫售完8.7“良好”
价格待定133.25㎡
2室1厅1卫售完9“优秀”
价格待定62.30㎡
2室1厅1卫售完9.1“优秀”
价格待定72.66㎡
2室2厅2卫售完8.9“良好”
价格待定133.00㎡
2室1厅1卫售完8.8“良好”
价格待定61.83㎡
2室1厅1卫售完9.1“优秀”
价格待定67.42㎡
2室1厅1卫售完9.4“优秀”
价格待定57.64㎡
2室1厅1卫售完8.8“良好”
价格待定59.10㎡
2室1厅1卫售完9.3“优秀”
价格待定53.67㎡
2室1厅1卫售完9.2“优秀”
价格待定90.40㎡
2室2厅1卫售完9.2“优秀”
价格待定90.00㎡
2室1厅1卫售完9.3“优秀”
价格待定58.00㎡
2室1厅1卫售完9.4“优秀”
价格待定57.48㎡
2室1厅1卫售完8.8“良好”
价格待定57.02㎡
2室2厅1卫售完8.7“良好”
价格待定90.48㎡
2室1厅1卫售完8.7“良好”
价格待定57.00㎡
2室1厅1卫售完9.1“优秀”
价格待定50.52㎡
2室1厅1卫售完9.4“优秀”
价格待定57.59㎡
2室1厅1卫售完9.4“优秀”
价格待定58.02㎡
2室1厅1卫售完9.1“优秀”
价格待定72.70㎡
2室1厅1卫售完9.1“优秀”
价格待定60.00㎡
2室1厅1卫售完9“优秀”
价格待定47.52㎡
2室1厅1卫售完8.5“良好”
价格待定74.27㎡
2室1卫售完8“良好”
价格待定54.04㎡
2室1厅1卫售完9“优秀”
价格待定61.80㎡
2室1厅1卫售完9.4“优秀”
价格待定69.10㎡
2室1厅1卫售完9.1“优秀”
价格待定53.00㎡
2室1厅1卫售完8.9“良好”
价格待定62.00㎡
对此楼盘感兴趣的人还浏览了
查看全部





优秀














































