- 200.69㎡
- 205.49㎡
- 206㎡
- 195㎡
- 187㎡
- 213.97㎡
- 196.19㎡
- 200㎡
- 181.99㎡
- 215.19㎡
- 216.02㎡
- 272.53㎡
- 215㎡
- 226㎡
- 205.87㎡
- 182.62㎡
- 214㎡
- 213㎡
- 163㎡
- 278㎡
- 157.36㎡
- 157.36㎡
- 110.25㎡
- 136.18㎡
- 158㎡
- 160.35㎡
- 160.35㎡
- 135㎡
- 110.75㎡
- 110.03㎡
- 109.13㎡
- 122.06㎡
- 109.05㎡
- 139.27㎡
- 110㎡
- 110㎡
- 110.18㎡
- 110.18㎡
- 110.65㎡
- 109㎡
- 110.43㎡
- 110.07㎡
- 123.65㎡
- 176.62㎡
- 135㎡
- 122㎡
- 156.1㎡
- 156.1㎡
- 109.92㎡
- 110㎡
- 110㎡
- 110.07㎡
- 92.07㎡
- 110.65㎡
- 110㎡
- 110㎡
- 157.7㎡
- 136.18㎡
- 160.35㎡
- 122㎡
- 122.06㎡
- 109.13㎡
- 175.68㎡
- 109.13㎡
- 109.05㎡
- 139.27㎡
- 108.19㎡
- 148㎡
- 175.1㎡
- 113.1㎡
- 142.11㎡
- 110.18㎡
- 160.81㎡
- 109㎡
- 110.43㎡
- 112.34㎡
- 110.75㎡
- 122.05㎡
- 112.37㎡
- 148.22㎡
- 123.65㎡
- 176.62㎡
- 108.78㎡
- 112㎡
- 135㎡
- 158.16㎡
- 157.36㎡
- 122㎡
- 136㎡
- 112.59㎡
- 160.4㎡
- 181.24㎡
- 110.03㎡
- 109.06㎡
- 109.92㎡
- 110.25㎡
- 74㎡
- 138㎡
- 110㎡
- 135㎡
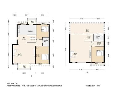
3室1厅2卫1厨
售完金地格林小镇3居室户型图 | 建面:139.27㎡ | 朝向:南北通透
- 所属楼盘
价格待定算月供
实际价格以售楼处为准,户型图为开发商提供,具体以实际交房标准为准
微信打开
查看完整户型评测8.9
户型评分
- 基础测评9
- 空间测评8.6
- 采光通风8.9
户型信息
- 6个阳台
- 2个明卫
- 独立衣帽间
- 大面宽阳台
- 户型方正
- 独立衣帽间
- 明卫
空间测评良好8.6空间测评指标

*施工有误差,交付时无法与户型图一致,仅供参考,最终以开发商合同为准
- 客厅:优秀
- 餐厅:良好
- 卧室A:良好
- 卧室B:良好
- 卧室C:优秀
- 厨房:良好
- 卫生间A:良好
- 卫生间A:良好
- 阳台A:良好
- 阳台B:良好
- 阳台B:良好
通风测评良好8.9


- 开窗

- 风向
*施工有误差,交付时无法与户型图一致,仅供参考,最终以开发商合同为准
采光测评良好8.9采光测评的指标
| 采光性 | 评价 | |
|---|---|---|
| 卧室B | 极佳 | |
| 卫生间A | 优秀 | |
| 卫生间A | 良好 | |
| 阳台A | 极佳 | |
| 阳台B | 极佳 | |
| 阳台B | 极佳 |
*户型数据为人工测量或估算值,可能于实际情况存在误差,仅供参考,实际数据以开发商发布为准。
房屋细节
客厅
- 空间宽敞宽敞明亮的客厅,是家的重要组成部分,让人在其中可以尽情放松身心,享受家的美好时光。
- 有阳台阳台与客厅紧密相连,这一设计既实用又美观,为家居生活增添了不少乐趣。
卧室A
空间可容纳
床
1.8m*2m
床头柜X2
0.4m宽
衣柜
0.6m深
- 空间适中精致小巧的卧室A,设计精巧,每一寸空间都得到了充分利用,让您在繁忙的生活中拥有一个温馨的休憩角落。
卧室B
空间可容纳
床
1.8m*2m
床头柜X2
0.4m宽
衣柜
0.6m深
- 空间适中尽管卧室B面积有限,但设计师巧妙地利用每一寸空间,布局合理,使这个小小的角落成为您放松身心的温馨之地。
优秀朝南的卧室B,阳光倾洒,通风顺畅,为您打造一处自然舒适的私密空间,无论是短暂休憩还是夜晚入眠,都能享受阳光的温柔照耀。- 有窗卧室B拥有明亮的窗户,让自然光与新鲜空气自由流淌,为您打造一个健康舒适的生活空间。
卧室C
空间可容纳
床
1.8m*2m
床头柜X2
0.4m宽
衣柜
0.6m深
- 空间较大卧室C空间足够大,让您在布置家具时更加随心所欲。
厨房
- 空间适中厨房空间宽敞舒适,让您在烹饪时能够尽情发挥,享受美食带来的快乐。
- 厨房带阳台厨房有小阳台,方便储物。
卫生间A
- 空间适中卫生间A空间适中,既满足您的日常需求,又保持空间的舒适度,让您的洗浴体验更加完美。
- 明卫有了窗户的卫生间A,不仅通风好,还能欣赏到窗外的美景,让卫浴时光更加惬意。
卫生间A
- 空间适中虽面积不大,但卫生间A布局合理,空间适中,满足您日常清洁和洗漱的需求。
- 明卫窗户的加入让卫生间A的通风换气更加顺畅,同时提升了卫浴空间的采光效果。
3室1厅2卫售完9.2“优秀”
价格待定200.69㎡
3室3厅2卫售完9.3“优秀”
价格待定196.19㎡
3室2厅2卫售完9.3“优秀”
价格待定200.00㎡
3室2厅3卫售完9.3“优秀”
价格待定215.19㎡
3室3卫售完9.3“优秀”
价格待定215.00㎡
3室1厅3卫售完9.3“优秀”
价格待定226.00㎡
3室1厅2卫售完8.9“良好”
价格待定157.36㎡
3室1厅2卫售完8.9“良好”
价格待定157.36㎡
3室1厅1卫售完8.9“良好”
价格待定136.18㎡
3室1厅2卫售完8.9“良好”
价格待定158.00㎡
3室1厅2卫售完9“优秀”
价格待定160.35㎡
3室1厅2卫售完9“优秀”
价格待定160.35㎡
3室2厅2卫售完8.9“良好”
价格待定135.00㎡
3室1厅2卫售完8.9“良好”
价格待定139.27㎡
3室1厅2卫售完8.6“良好”
价格待定135.00㎡
3室1厅2卫售完9.1“优秀”
价格待定156.10㎡
3室1厅2卫售完9.1“优秀”
价格待定156.10㎡
3室1厅1卫售完8.9“良好”
价格待定110.00㎡
3室1厅2卫售完9“优秀”
价格待定157.70㎡
3室1厅1卫售完8.9“良好”
价格待定136.18㎡
3室1厅2卫售完9“优秀”
价格待定160.35㎡
3室1厅2卫售完8.9“良好”
价格待定148.00㎡
3室2厅2卫售完9.3“优秀”
价格待定142.11㎡
3室1厅2卫售完9.2“优秀”
价格待定122.05㎡
3室1厅2卫售完9“优秀”
价格待定148.22㎡
3室1厅2卫售完8.6“良好”
价格待定135.00㎡
3室2厅2卫售完9.4“优秀”
价格待定158.16㎡
3室1厅2卫售完8.9“良好”
价格待定157.36㎡
3室1厅2卫售完9“优秀”
价格待定160.40㎡
3室2厅2卫售完9.1“优秀”
价格待定138.00㎡
3室2厅2卫售完8.9“良好”
价格待定135.00㎡
对此楼盘感兴趣的人还浏览了
北京润府
59000元/平方米
大兴-亦庄用户评分8.88分
在售五至六环央企开发品牌地产tod项目地铁沿线装修交付
招商玺
77000元/平方米
大兴-亦庄用户评分8.98分
在售五至六环品牌地产改善优选装修交付地铁沿线
合生me悦
62000元/平方米
大兴-亦庄用户评分9.15分
在售五至六环品牌地产花园洋房景观居所宜居生态地产公园地产装修交付地铁沿线
查看全部





优秀

































































































