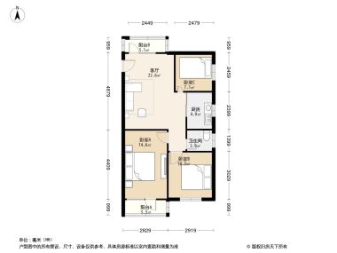
4室1厅1卫1厨
售完八里庄西里4居室户型图 | 建面:73.41㎡ | 朝向:南北通透
- 所属楼盘
价格待定算月供
实际价格以售楼处为准,户型图为开发商提供,具体以实际交房标准为准
微信打开
查看完整户型评测8.5
户型评分
- 基础测评8
- 空间测评8.7
- 采光通风9.1
户型信息
- 明厨
- 户型方正
- 明厨
- 双卧朝南
- 主卧朝南
空间测评良好8.7空间测评指标

*施工有误差,交付时无法与户型图一致,仅供参考,最终以开发商合同为准
- 卧室D:良好
- 客厅:良好
- 卧室A:优秀
- 卧室B:优秀
- 卧室C:良好
- 厨房:良好
- 卫生间:良好
通风测评优秀9.1


- 开窗

- 风向
*施工有误差,交付时无法与户型图一致,仅供参考,最终以开发商合同为准
采光测评优秀9.1采光测评的指标
| 采光性 | 评价 | |
|---|---|---|
| 卧室D | 极佳 | |
| 卧室A | 优秀 | |
| 卧室B | 良好 | |
| 卧室C | 极佳 | |
| 厨房 | 极佳 |
*户型数据为人工测量或估算值,可能于实际情况存在误差,仅供参考,实际数据以开发商发布为准。
房屋细节
卧室D
空间可容纳
床
1.2m*2m
床头柜X1
0.4m宽
- 空间适中卧室D虽小,却设计得十分精致,每一寸空间都被合理利用,为您营造出一个既舒适又温馨的休憩环境。
- 有窗卧室D拥有明亮的窗户,让自然光与新鲜空气自由流淌,为您打造一个健康舒适的生活空间。
客厅
- 紧凑实用客厅尽管面积不大,但展现出小巧而精致的特色。设计上紧凑实用,每一处布置都显得十分恰到好处。这个小空间给人一种舒适宜人的感觉。
卧室A
空间可容纳
床
1.8m*2m
床头柜X2
0.4m宽
衣柜
0.6m深
- 空间较大宽敞舒适的卧室A,面积超过10平米,为您打造一片宁静的私人天地,无论是放置大型家具还是打造多功能空间,都能轻松满足您的需求。
优秀朝南的卧室A光线自然,通风良好,为您的私人空间增添一份自然的舒适与宁静,无论是短暂休息还是夜晚安睡,都能沐浴在温暖的阳光之中。- 有窗卧室A拥有明亮的窗户,让您在享受舒适睡眠的同时,也能感受到自然光的温暖与照耀,让您的生活更加美好。
卧室B
空间可容纳
床
1.8m*2m
床头柜X2
0.4m宽
衣柜
0.6m深
- 空间较大卧室B空间足够大,让您在布置家具时更加灵活自如。
优秀朝南设计的卧室B,光线通透,通风舒畅,为您的私人领地增添一份自然的舒适与惬意,无论是午后放松还是夜晚入眠,都能享受到阳光的温暖陪伴。- 有窗卧室B的窗户,如同一扇通往自然的门,让您随时都能感受到室外的美景与气息。
卧室C
空间可容纳
床
1.2m*2m
床头柜X1
0.4m宽
- 空间适中精致小巧的卧室C,虽然面积不足10平米,但设计巧妙,布局合理,每一寸空间都得到了充分利用,为您打造了一个温馨而舒适的休憩角落
- 有窗卧室C窗户设计合理,让自然光均匀洒满每个角落,为您打造一个明亮且舒适的休息环境。
厨房
- 空间适中厨房空间布局合理,既方便日常烹饪,又能保持空间的整洁与美观。
- 明厨宽敞明亮的厨房窗户,让自然光洒满每个角落,烹饪时心情更加愉悦,享受与家人共度的美好时光。
卫生间
- 空间适中卫生间虽小,却别具一格,空间利用得当,让日常洗漱变得轻松愉快。
对此楼盘感兴趣的人还浏览了
查看全部





优秀



















































