- 264㎡
- 263.65㎡
- 127.34㎡
- 100.74㎡
- 159.12㎡
- 98.89㎡
- 138㎡
- 79.2㎡
- 140.86㎡
- 153.61㎡
- 153.21㎡
- 143㎡
- 79㎡
- 127.34㎡
- 117.05㎡
- 81.67㎡
- 81.67㎡
- 102.59㎡
- 99.42㎡
- 138.53㎡
- 144.79㎡
- 107.27㎡
- 100.74㎡
- 110.9㎡
- 98.89㎡
- 159.12㎡
- 90.21㎡
- 94.76㎡
- 140.85㎡
- 138㎡
- 161.33㎡
- 91.28㎡
- 158.64㎡
- 98.89㎡
- 90.14㎡
- 138.53㎡
- 98㎡
- 114.4㎡
- 144.91㎡
- 120.94㎡
- 103㎡
- 94.69㎡
- 94.69㎡
- 138.53㎡
- 91.35㎡
- 120.94㎡
- 124.87㎡
- 138.7㎡
- 127.23㎡
- 153.8㎡
- 110.26㎡
- 139.92㎡
- 90.21㎡
- 106.69㎡
- 107.27㎡
- 110.99㎡
- 138㎡
- 145.51㎡
- 79.21㎡
- 106.69㎡
- 79.15㎡
- 79.2㎡
- 79.21㎡
- 102㎡
- 155㎡
- 138.64㎡
- 102.28㎡
- 155.22㎡
- 102.6㎡
- 97.94㎡
- 106.69㎡
- 137.81㎡
- 121㎡
- 155.22㎡
- 94.47㎡
- 140.86㎡
- 118.72㎡
- 121.03㎡
- 94.69㎡
- 94.76㎡
- 91.28㎡
- 153.61㎡
- 143.03㎡
- 79.1㎡
- 120.99㎡
- 153.61㎡
- 110.3㎡
- 153.21㎡
- 139㎡
- 143㎡
- 101㎡
- 79㎡
- 103㎡
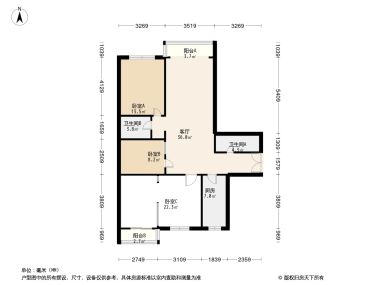
3室1厅1卫1厨
售完北苑家园清友园3居室户型图 | 建面:102.28㎡ | 朝向:西南
- 所属楼盘
价格待定算月供
实际价格以售楼处为准,户型图为开发商提供,具体以实际交房标准为准
微信打开
查看完整户型评测8.6
户型评分
- 基础测评8.3
- 空间测评8.8
- 采光通风8.8
户型信息
- 1个阳台
- 明厨
- 明厨
- 双卧朝南
空间测评良好8.8空间测评指标

*施工有误差,交付时无法与户型图一致,仅供参考,最终以开发商合同为准
- 客厅:极佳
- 卧室A:良好
- 卧室B:良好
- 厨房:良好
- 卫生间:良好
- 阳台:优秀
通风测评良好8.8


- 开窗

- 风向
*施工有误差,交付时无法与户型图一致,仅供参考,最终以开发商合同为准
采光测评良好8.8采光测评的指标
| 采光性 | 评价 | |
|---|---|---|
| 卧室A | 普通 | |
| 卧室B | 极佳 | |
| 厨房 | 优秀 | |
| 阳台 | 极佳 |
*户型数据为人工测量或估算值,可能于实际情况存在误差,仅供参考,实际数据以开发商发布为准。
房屋细节
客厅
- 空间豪华客厅空间宽敞豪华,让人感受到家的温馨与舒适,同时也彰显出主人的尊贵地位。
卧室A
空间可容纳
床
1.8m*2m
床头柜X2
0.4m宽
衣柜
0.6m深
- 空间适中卧室A设计得十分用心,每一寸空间都得到了充分的利用,既精致又实用,为您带来舒适的休憩体验。
优秀朝南设计的卧室A,光线明亮且宜人,通风效果出色,为您的私人领地营造一份自然的惬意与安逸,无论是短暂休息还是长夜安睡,都能感受到阳光的温暖陪伴。- 有窗卧室A窗户设计别致,将自然的美景与室内空间完美融合,为您营造一个既舒适又充满自然气息的生活空间。
- 次卧有阳台阳台与卧室A相连,让您的居住体验更上一层楼。在这里,您可以尽情欣赏四季美景,感受大自然的馈赠,享受生活的无限美好。
卧室B
空间可容纳
床
1.8m*2m
床头柜X2
0.4m宽
衣柜
0.6m深
- 空间适中卧室B虽小,却设计得十分精致,每一寸空间都被合理利用,为您营造出一个既舒适又温馨的休憩环境。
优秀朝南的卧室B采光优良,通风顺畅,为您的私人领地营造一份自然的宁静与温馨,无论是短暂休息还是深度睡眠,都能沐浴在温暖的阳光之中。- 有窗卧室B窗户设计独特,让室内的光线与室外的景色完美融合,为您营造一个既温馨又舒适的生活氛围。
厨房
- 空间适中厨房空间布局合理,既方便日常烹饪,又能保持空间的整洁与美观。
- 明厨透亮的窗户为厨房带来明媚阳光,让烹饪环境更加明亮,享受每一刻与家人共度的温馨时光。
卫生间
- 空间适中卫生间设计精巧,空间利用恰到好处,虽小却五脏俱全,满足日常所需。
对此楼盘感兴趣的人还浏览了
润泽御府
6000万元/套起
朝阳-北苑用户评分9.78分
在售五至六环品牌地产低密居所宜居生态地产改善优选
北京城建·望京国誉府
89000元/平方米
朝阳-北苑用户评分9.09分
在售五至六环品牌地产国企开发低密居所花园洋房纯洋房社区改善优选装修交付
中建宸园
1900万元/套起
朝阳-北苑用户评分9.46分
在售五至六环品牌地产低密居所特色别墅豪华居住区花园洋房改善优选装修交付
查看全部





优秀
























































































