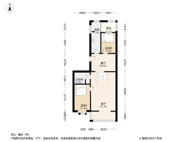
2室2厅1卫1厨
售完季庄小区2居室户型图 | 建面:102.21㎡ | 朝向:南北通透
- 所属楼盘
价格待定算月供
实际价格以售楼处为准,户型图为开发商提供,具体以实际交房标准为准
微信打开
查看完整户型评测9
户型评分
- 基础测评8.5
- 空间测评9.1
- 采光通风9.6
户型信息
- 2个飘窗
- 明厨
- 户型方正
- 明厨
- 客厅朝南
- 主卧朝南
空间测评优秀9.1空间测评指标


- 面宽

- 进深
*施工有误差,交付时无法与户型图一致,仅供参考,最终以开发商合同为准
| 面积(㎡) | 面宽(m) | 进深(m) | 评价 | |
|---|---|---|---|---|
| 客厅 | 37.4 | 4.7 | 11.1 | 极佳 |
| 卧室A | 10.8 | 3.3 | 3.4 | 良好 |
| 卧室B | 14.9 | 3.4 | 5.1 | 极佳 |
| 厨房 | 3.4 | 2.5 | 3.2 | 良好 |
| 卫生间 | 5.8 | 2.3 | 2.6 | 良好 |
*户型数据为人工测量或估算值,可能于实际情况存在误差,仅供参考,实际数据以开发商发布为准。
通风测评极佳9.6


- 开窗

- 风向
*施工有误差,交付时无法与户型图一致,仅供参考,最终以开发商合同为准
采光测评极佳9.6采光测评的指标
| 采光性 | 评价 | |
|---|---|---|
| 客厅 | 极佳 | |
| 卧室A | 极佳 | |
| 卧室B | 极佳 | |
| 厨房 | 极佳 |
*户型数据为人工测量或估算值,可能于实际情况存在误差,仅供参考,实际数据以开发商发布为准。
房屋细节
客厅 37.4㎡ | 面宽4.7m | 进深11.1m
- 空间豪华宽敞豪华的客厅,是家庭聚会的绝佳场所,也是主人展现品味的重要舞台。
优秀朝南的客厅,宽敞通透,阳光自然流淌,为生活增添一份明亮与宁静,是您与家人共度美好时光、享受天伦之乐的温馨之所。
优秀客厅的落地窗设计,让光线自由穿梭,为空间注入生机与活力,营造出一种轻松愉悦的生活氛围。
卧室A 10.8㎡ | 面宽3.3m | 进深3.4m
空间可容纳
床
1.8m*2m
床头柜X2
0.4m宽
衣柜
0.6m深
- 空间适中卧室A虽小,却设计得精致而实用,每一寸空间都得到了合理的利用,为您打造出一个温馨舒适的休憩空间。
- 有飘窗卧室A飘窗设计独特,不仅拓宽了视野,还为您打造一个私密的放松角落,享受片刻宁静。
卧室B 14.9㎡ | 面宽3.4m | 进深5.1m
空间可容纳
床
1.8m*2m
床头柜X2
0.4m宽
衣柜
0.6m深
- 空间较大卧室B面积宽敞,让您在繁忙的生活中,也能拥有安静的私人空间。
优秀卧室B朝向南方,光线明亮,通风流畅,为您的私密空间增添一份自然的宁静与舒适,无论是短暂休息还是深度睡眠,都能感受到阳光的温馨呵护。- 有飘窗卧室B设有飘窗,窗外美景一览无余,让您的视野更为开阔,享受自然与宁静。
厨房 3.4㎡ | 面宽2.5m | 进深3.2m
- 空间适中适中的厨房空间,让您的烹饪过程更加轻松愉快,享受美食带来的幸福。
- 明厨明亮窗户的厨房设计,让自然光照亮每一个角落,烹饪时心情更加舒畅,享受家的温馨与美好。
卫生间 5.8㎡ | 面宽2.3m | 进深2.6m
- 空间适中精致设计的卫生间,空间利用恰到好处,让您的洗浴体验更加舒适愉悦。
对此楼盘感兴趣的人还浏览了
查看全部





优秀












