- 51.18㎡
- 68.99㎡
- 51.18㎡
- 67.14㎡
- 69.39㎡
- 50.84㎡
- 50.84㎡
- 69.34㎡
- 69.5㎡
- 50.81㎡
- 50.81㎡
- 68.14㎡
- 69.14㎡
- 92.04㎡
- 47.64㎡
- 68.96㎡
- 50.26㎡
- 50.26㎡
- 49.68㎡
- 49.68㎡
- 72.18㎡
- 50.81㎡
- 50.81㎡
- 66.3㎡
- 47㎡
- 68.14㎡
- 69㎡
- 51.18㎡
- 51.18㎡
- 71㎡
- 48.56㎡
- 48.56㎡
- 69.87㎡
- 50㎡
- 51㎡
- 51㎡
- 48㎡
- 50㎡
- 66㎡
- 69.54㎡
- 59.42㎡
- 55.8㎡
- 51.18㎡
- 68.99㎡
- 69.39㎡
- 67.14㎡
- 67.56㎡
- 50.84㎡
- 69.34㎡
- 91.45㎡
- 69.5㎡
- 71.18㎡
- 56.08㎡
- 89.54㎡
- 50.81㎡
- 50.59㎡
- 69.87㎡
- 68.21㎡
- 69.14㎡
- 68.14㎡
- 69.21㎡
- 92.04㎡
- 68.85㎡
- 47.64㎡
- 68.96㎡
- 70.83㎡
- 50.26㎡
- 59.42㎡
- 49.68㎡
- 72.61㎡
- 72.97㎡
- 72.18㎡
- 50.81㎡
- 89.54㎡
- 67.25㎡
- 66.3㎡
- 45.67㎡
- 47㎡
- 69.62㎡
- 68.14㎡
- 51.18㎡
- 69㎡
- 71㎡
- 48.56㎡
- 72.97㎡
- 69.15㎡
- 69.87㎡
- 51㎡
- 50㎡
- 48㎡
- 89㎡
- 66㎡
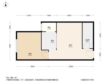
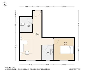
2室1厅1卫1厨
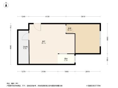
售完金隅丽景园2居室户型图 | 建面:69.5㎡ | 朝向:东北
- 所属楼盘
价格待定算月供
实际价格以售楼处为准,户型图为开发商提供,具体以实际交房标准为准
微信打开
查看完整户型评测8.6
户型评分
- 基础测评8.5
- 空间测评8.6
- 采光通风8.8
户型信息
- 明厨
- 明卫
- 客厅朝南
- 全明格局
空间测评良好8.6空间测评指标

*施工有误差,交付时无法与户型图一致,仅供参考,最终以开发商合同为准
- 客厅:优秀
- 卧室A:良好
- 卧室B:良好
- 厨房:良好
- 卫生间:良好
通风测评良好8.8


- 开窗

- 风向
*施工有误差,交付时无法与户型图一致,仅供参考,最终以开发商合同为准
采光测评良好8.8采光测评的指标
| 采光性 | 评价 | |
|---|---|---|
| 客厅 | 普通 | |
| 卧室A | 优秀 | |
| 卧室B | 极佳 | |
| 厨房 | 普通 | |
| 卫生间 | 优秀 |
*户型数据为人工测量或估算值,可能于实际情况存在误差,仅供参考,实际数据以开发商发布为准。
房屋细节
客厅
- 空间宽敞客厅的面积恰到好处,既不会让人感到局促不安,又能保证足够的活动空间,让生活更加自在舒适。
- 舒适客厅宽敞通透,窗户巧妙布局,让阳光洒满每个角落,无论是品茗论道还是悠闲小憩,都能在此感受自然与宁静的交融。
卧室A
空间可容纳
床
1.2m*2m
床头柜X1
0.4m宽
- 空间适中卧室A设计得十分用心,每一寸空间都得到了充分的利用,既精致又实用,为您带来舒适的休憩体验。
- 朝东卧室A朝东,清晨的阳光照亮整个空间,为您带来新一天的活力与期待,让您在早晨就能感受到生活的美好与希望。
- 有窗卧室A的窗户,像一幅流动的画卷,展现着四季的变换,让您在每个清晨与黄昏,都能与自然亲密相拥。
卧室B
- 空间适中尽管卧室B面积有限,但设计师却巧妙地将每一寸空间都利用起来,打造出一个既实用又舒适的休憩之所。
- 朝东朝东的卧室B拥有明亮的光线,为您营造出一个清新舒适的空间,让您在早晨就能感受到生活的美好与宁静。
- 有窗卧室B的窗户,像一幅流动的画卷,展现着四季的变换,让您在每个清晨与黄昏,都能与自然亲密相拥。
厨房
- 空间适中适度的厨房面积,既满足您的烹饪需求,又让厨房成为家中的一道亮丽风景。
- 明厨厨房的窗户明亮通透,让烹饪时光充满阳光与温暖,享受家的温馨与舒适。
卫生间
- 空间适中精致小巧的卫生间,空间利用得当,既节省空间又满足日常所需,让您的洗浴时光更加愉快。
- 明卫窗户的加入让卫生间的通风效果更佳,同时也为居住者带来了更加舒适的卫浴体验。
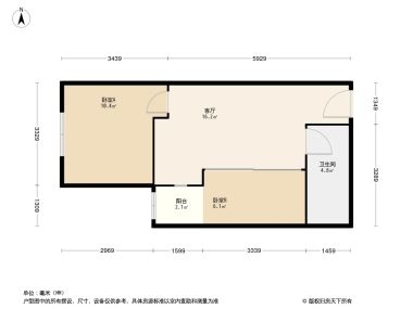
1室1厅1卫售完8.2“良好”
价格待定51.18㎡
1室1厅1卫售完8.2“良好”
价格待定51.18㎡
1室1卫售完8.5“良好”
价格待定50.84㎡
1室1卫售完8.5“良好”
价格待定50.84㎡
1室1厅1卫售完8.1“良好”
价格待定68.14㎡
1室1厅1卫售完8.2“良好”
价格待定47.64㎡
1室1厅1卫售完8.2“良好”
价格待定50.26㎡
1室1厅1卫售完8.2“良好”
价格待定50.26㎡
1室1厅1卫售完7.9“普通”
价格待定49.68㎡
1室1厅1卫售完7.9“普通”
价格待定49.68㎡
1室1厅1卫售完8.2“良好”
价格待定50.81㎡
1室1厅1卫售完8.2“良好”
价格待定50.81㎡
1室1厅1卫售完8.5“良好”
价格待定66.30㎡
1室1厅1卫售完8.3“良好”
价格待定47.00㎡
1室1厅1卫售完8“良好”
价格待定48.56㎡
1室1厅1卫售完8“良好”
价格待定48.56㎡
1室1厅1卫售完8.4“良好”
价格待定50.00㎡
1室1厅1卫售完8.4“良好”
价格待定51.00㎡
1室1厅1卫售完8.4“良好”
价格待定51.00㎡
1室1厅1卫售完8.3“良好”
价格待定48.00㎡
1室1厅1卫售完8.4“良好”
价格待定50.00㎡
1室1厅1卫售完8.7“良好”
价格待定55.80㎡
1室1厅1卫售完8.2“良好”
价格待定51.18㎡
1室1卫售完8.5“良好”
价格待定50.84㎡
1室1厅1卫售完8.7“良好”
价格待定56.08㎡
1室1厅1卫售完8.4“良好”
价格待定50.59㎡
1室1厅1卫售完8.1“良好”
价格待定68.14㎡
1室1厅1卫售完8.2“良好”
价格待定47.64㎡
1室1厅1卫售完8.2“良好”
价格待定50.26㎡
1室1厅1卫售完9“优秀”
价格待定59.42㎡
1室1厅1卫售完7.9“普通”
价格待定49.68㎡
1室1厅1卫售完8.2“良好”
价格待定50.81㎡
1室1厅1卫售完8.8“良好”
价格待定67.25㎡
1室1厅1卫售完8.5“良好”
价格待定66.30㎡
1室1厅1卫售完8.2“良好”
价格待定45.67㎡
1室1厅1卫售完8.3“良好”
价格待定47.00㎡
1室1厅1卫售完8“良好”
价格待定48.56㎡
1室1厅1卫售完8.4“良好”
价格待定51.00㎡
1室1厅1卫售完8.4“良好”
价格待定50.00㎡
1室1厅1卫售完8.3“良好”
价格待定48.00㎡
对此楼盘感兴趣的人还浏览了
玺悦朝阳
83000元/平方米
朝阳-常营用户评分9.69分
在售五至六环豪华居住区花园洋房公园地产国际化社区改善优选装修交付地铁沿线
和光煦境
85000元/平方米
朝阳-常营用户评分9.47分
售完五至六环品牌地产低密居所城市地标豪华居住区城市中心地产改善优选地铁沿线
查看全部






























































































