- 62.46㎡
- 48.07㎡
- 50.57㎡
- 47.88㎡
- 137.63㎡
- 51.01㎡
- 51.01㎡
- 133.71㎡
- 48.05㎡
- 55㎡
- 53.72㎡
- 121㎡
- 53.4㎡
- 51㎡
- 125.12㎡
- 88㎡
- 53.2㎡
- 47.85㎡
- 48.1㎡
- 49.71㎡
- 53.15㎡
- 51.01㎡
- 90.21㎡
- 89.8㎡
- 53.66㎡
- 48.05㎡
- 94.5㎡
- 89.17㎡
- 53.53㎡
- 88.5㎡
- 48㎡
- 170.7㎡
- 56㎡
- 88.63㎡
- 59.1㎡
- 123.97㎡
- 50.67㎡
- 54.86㎡
- 48.07㎡
- 55.16㎡
- 53.37㎡
- 89.89㎡
- 82.95㎡
- 48.15㎡
- 45.3㎡
- 90.09㎡
- 89.89㎡
- 82.5㎡
- 89.44㎡
- 140.44㎡
- 47.83㎡
- 92.81㎡
- 48.09㎡
- 93.39㎡
- 53.23㎡
- 86.6㎡
- 57.6㎡
- 55.16㎡
- 81.6㎡
- 54.34㎡
- 56.7㎡
- 170.7㎡
- 48.15㎡
- 122.81㎡
- 48.88㎡
- 56㎡
- 90㎡
- 90㎡
- 48㎡
- 48㎡
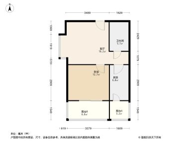
3室1厅2卫1厨
售完周庄嘉园3居室户型图 | 建面:133.71㎡ | 朝向:南北通透
- 所属楼盘
价格待定算月供
实际价格以售楼处为准,户型图为开发商提供,具体以实际交房标准为准
微信打开
查看完整户型评测9.2
户型评分
- 基础测评9.5
- 空间测评9.1
- 采光通风8.8
户型信息
- 1个阳台
- 1个飘窗
- 明厨
- 次卧带卫生间
- 户型方正
- 明厨
- 客厅朝南
空间测评优秀9.1空间测评指标

*施工有误差,交付时无法与户型图一致,仅供参考,最终以开发商合同为准
- 客厅:极佳
- 卧室A:极佳
- 卧室B:良好
- 卧室B:良好
- 厨房:极佳
- 卫生间A:良好
- 卫生间B:良好
- 阳台A:良好
通风测评良好8.8


- 开窗

- 风向
*施工有误差,交付时无法与户型图一致,仅供参考,最终以开发商合同为准
采光测评良好8.8采光测评的指标
| 采光性 | 评价 | |
|---|---|---|
| 客厅 | 普通 | |
| 卧室B | 良好 | |
| 卧室B | 极佳 | |
| 厨房 | 极佳 | |
| 阳台A | 极佳 |
*户型数据为人工测量或估算值,可能于实际情况存在误差,仅供参考,实际数据以开发商发布为准。
房屋细节
客厅
- 空间豪华豪华客厅设计典雅大气,空间感与舒适感并重,让人在其中感受到家的尊贵与温馨。
优秀朝南而建的客厅,宽敞明亮,阳光倾洒,为生活带来无尽的温暖与色彩,是您与家人欢聚、畅谈人生的理想之地。- 带飘窗客厅的飘窗设计独特,让自然光洒满空间,营造出一种悠闲舒适的生活氛围,尽享家的宁静与温暖。
卧室A
空间可容纳
床
1.8m*2m
床头柜X2
0.4m宽
衣柜
0.6m深
- 空间较大卧室A空间开阔,无论是休息还是储物,都能满足您的需求。
- 次卧有阳台卧室A的阳台,是您放松心情的好去处。您可以在这里欣赏美丽的夜景,感受夜晚的宁静与神秘,享受生活的宁静与美好。
卧室B
空间可容纳
床
1.8m*2m
床头柜X2
0.4m宽
衣柜
0.6m深
- 空间适中精致小巧的卧室B,设计得十分精致,每一寸空间都得到了合理的利用,让您在繁忙的生活中拥有一个宁静的休憩之所。
- 有窗卧室B窗户通透,让光线与空气自由流通,为您打造一个明亮舒适的休息空间,感受自然的呵护。
卧室B
空间可容纳
床
1.8m*2m
床头柜X2
0.4m宽
衣柜
0.6m深
- 空间适中尽管卧室B面积有限,但设计师巧妙地利用每一寸空间,布局合理,使这个小小的角落成为您放松身心的温馨之地。
- 有窗卧室B窗户明亮,让阳光洒满整个空间,为您带来满满的能量与活力,让您每天都能充满活力地迎接新的一天。
厨房
- 空间较大厨房宽敞舒适,多人同时烹饪也能保持空间感,同时满足家电摆放需求,让生活更舒适。
卫生间A
- 空间适中精致小巧的卫生间A,空间利用得当,既节省空间又满足日常所需,让您的洗浴时光更加愉快。
卫生间B
- 空间适中卫生间B空间适中,既不过于拥挤也不过于空旷,让您的洗浴体验更加舒适自如。
2室1厅1卫售完9.1“优秀”
价格待定62.46㎡
2室2厅2卫售完9“优秀”
价格待定51.01㎡
2室1厅1卫售完9.2“优秀”
价格待定88.00㎡
2室1厅2卫售完9.1“优秀”
价格待定51.01㎡
2室1厅1卫售完9.3“优秀”
价格待定90.21㎡
2室1厅1卫售完9.2“优秀”
价格待定89.80㎡
2室1厅2卫售完9.3“优秀”
价格待定48.05㎡
2室1厅1卫售完9.2“优秀”
价格待定88.50㎡
2室1厅1卫售完9.2“优秀”
价格待定88.63㎡
2室2厅2卫售完8.7“良好”
价格待定123.97㎡
2室2厅1卫售完9.3“优秀”
价格待定89.89㎡
2室1厅1卫售完8.8“良好”
价格待定82.95㎡
2室1厅1卫售完9.4“优秀”
价格待定82.50㎡
2室1厅1卫售完9.2“优秀”
价格待定89.44㎡
2室1厅1卫售完9.5“极佳”
价格待定92.81㎡
2室1厅1卫售完9.5“极佳”
价格待定93.39㎡
2室1厅1卫售完8.7“良好”
价格待定86.60㎡
2室1厅1卫售完8.7“良好”
价格待定57.60㎡
2室1厅1卫售完9“优秀”
价格待定55.16㎡
2室1厅1卫售完9“优秀”
价格待定81.60㎡
2室2厅1卫售完10“极佳”
0.0090.00㎡
2室1厅1卫售完10“极佳”
0.0090.00㎡
对此楼盘感兴趣的人还浏览了
查看全部





优秀



































































