- 36.89㎡
- 108.33㎡
- 124.93㎡
- 124.93㎡
- 37.32㎡
- 37.32㎡
- 37㎡
- 37㎡
- 110.31㎡
- 64.94㎡
- 37.32㎡
- 55.7㎡
- 37.3㎡
- 40㎡
- 78.26㎡
- 62.5㎡
- 58.24㎡
- 56㎡
- 54.1㎡
- 45.5㎡
- 45.85㎡
- 93.97㎡
- 61.35㎡
- 45.5㎡
- 124.93㎡
- 65.85㎡
- 37.54㎡
- 65.22㎡
- 57.94㎡
- 60.17㎡
- 52.41㎡
- 64.4㎡
- 62.23㎡
- 76.37㎡
- 65.25㎡
- 60.56㎡
- 61.02㎡
- 85.22㎡
- 55.29㎡
- 124.93㎡
- 46.34㎡
- 61.69㎡
- 78.26㎡
- 35.71㎡
- 60㎡
- 44.26㎡
- 64.77㎡
- 78㎡
- 81.12㎡
- 54.9㎡
- 62㎡
- 64.4㎡
- 76.63㎡
- 65.13㎡
- 80.93㎡
- 83.93㎡
- 48.16㎡
- 42.19㎡
- 45㎡
- 54.86㎡
- 83㎡
- 37㎡
- 72㎡
- 46㎡
3室1厅1卫1厨
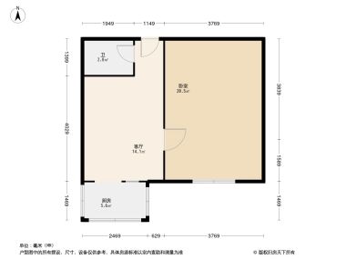
售完农展南里3居室户型图 | 建面:78㎡ | 朝向:南北通透
- 所属楼盘
价格待定算月供
实际价格以售楼处为准,户型图为开发商提供,具体以实际交房标准为准
微信打开
查看完整户型评测8.6
户型评分
- 基础测评8.4
- 空间测评8.7
- 采光通风8.9
户型信息
- 2个阳台
- 户型方正
- 双阳台
空间测评良好8.7空间测评指标

*施工有误差,交付时无法与户型图一致,仅供参考,最终以开发商合同为准
- 卧室A:极佳
- 卧室B:良好
- 卧室C:良好
- 厨房:良好
- 卫生间:良好
- 阳台A:良好
- 阳台C:良好
- 储物间:良好
通风测评良好8.9


- 开窗

- 风向
*施工有误差,交付时无法与户型图一致,仅供参考,最终以开发商合同为准
采光测评良好8.9采光测评的指标
| 采光性 | 评价 | |
|---|---|---|
| 卧室A | 普通 | |
| 卧室B | 极佳 | |
| 卧室C | 普通 | |
| 阳台A | 极佳 | |
| 阳台C | 极佳 |
*户型数据为人工测量或估算值,可能于实际情况存在误差,仅供参考,实际数据以开发商发布为准。
房屋细节
卧室A
空间可容纳
床
1.8m*2m
床头柜X2
0.4m宽
衣柜
0.6m深
- 空间较大卧室A空间宽敞,让您在繁忙的工作之余,享受宁静的私人时光。
- 朝东朝东的卧室A迎接清晨的第一缕阳光,为您开启全新的一天,带来无尽的活力与希望,让您在早晨充满能量。
- 有窗卧室A窗户设计独特,让室内的光线与室外的景色完美融合,为您营造一个既温馨又舒适的生活氛围。
- 次卧有阳台带有阳台的卧室A,让您的生活更加宁静。您可以在这里静心冥想,感受内心的平静与安宁,享受生活的宁静与祥和。
卧室B
空间可容纳
床
1.8m*2m
床头柜X2
0.4m宽
衣柜
0.6m深
- 空间适中虽然卧室B面积不足,但设计却独具匠心,布局合理,让每一寸空间都发挥出其最大的价值,为您带来舒适的休憩体验。
优秀卧室B朝南,光线柔和而通透,通风顺畅,为您的私密空间增添一份自然的舒适与宁静,无论是午后小憩还是夜晚安睡,都能享受到阳光的温馨照耀。- 有窗卧室B的窗户设计独具匠心,既保证了室内的采光与通风,又让窗外的美景尽收眼底。
卧室C
空间可容纳
床
1.2m*2m
床头柜X1
0.4m宽
- 空间适中尽管卧室C面积有限,但设计师却巧妙地利用空间,打造出一个精致而舒适的休憩之所,让您感受到家的温馨与惬意。
- 有窗卧室C的窗户,如同自然的画布,随着季节的变换而展现出不同的风景,让您在此享受大自然的馈赠与恩赐。
- 次卧有阳台卧室C的阳台,是您放松身心的好去处。您可以在这里摆放绿植,感受自然的气息,让身心得到彻底的放松与舒缓。
厨房
- 空间适中精心设计的厨房空间,既实用又舒适,让您的烹饪之旅更加轻松愉快。
- 厨房带阳台厨房有小阳台,方便储物。
卫生间
- 空间适中卫生间空间恰到好处,既不拥挤也不空旷,为您打造舒适的洗漱体验。
1室1厅1卫售完8.2“良好”
价格待定36.89㎡
1室1厅1卫售完8.5“良好”
价格待定37.32㎡
1室1厅1卫售完8.5“良好”
价格待定37.32㎡
1室1厅1卫售完8.7“良好”
价格待定37.00㎡
1室1厅1卫售完8.7“良好”
价格待定37.00㎡
1室1厅1卫售完8.5“良好”
价格待定37.32㎡
1室1厅1卫售完8.7“良好”
价格待定37.30㎡
1室1厅1卫售完8.8“良好”
价格待定40.00㎡
1室1卫售完8.4“良好”
价格待定45.50㎡
1室1厅1卫售完8.5“良好”
价格待定45.85㎡
1室1厅1卫售完8.5“良好”
价格待定45.50㎡
1室1厅1卫售完8.5“良好”
价格待定37.54㎡
1室1厅1卫售完8.3“良好”
价格待定46.34㎡
1室1厅1卫售完8.6“良好”
价格待定35.71㎡
1室1厅1卫售完8.9“良好”
价格待定44.26㎡
1室1厅1卫售完8.5“良好”
价格待定48.16㎡
1室1厅1卫售完8.6“良好”
价格待定42.19㎡
1室1厅1卫售完8.8“良好”
价格待定45.00㎡
1室1厅1卫售完8.7“良好”
价格待定37.00㎡
1室1厅1卫售完8.6“良好”
价格待定46.00㎡
对此楼盘感兴趣的人还浏览了
融创壹号院
3000万元/套起
朝阳-朝阳公园用户评分9.69分
在售四至五环品牌地产公园地产科技住宅改善优选装修交付大平层地铁沿线
京土储挂(朝)[2023]001号
价格待定
朝阳-朝阳公园用户评分0.0分
待售四至五环地铁沿线
融创ONE9
价格待定
朝阳-朝阳公园用户评分9.47分
在售四至五环洋房
查看全部





优秀





























































