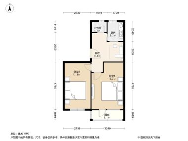
2室1厅1卫1厨
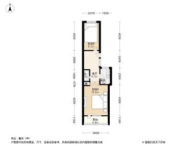
售完垡头北里2居室户型图 | 建面:60.28㎡ | 朝向:朝南
- 所属楼盘
价格待定算月供
实际价格以售楼处为准,户型图为开发商提供,具体以实际交房标准为准
微信打开
查看完整户型评测9.1
户型评分
- 基础测评9.5
- 空间测评8.9
- 采光通风8.8
户型信息
- 2个阳台
- 大面宽阳台
- 双阳台
空间测评良好8.9空间测评指标

*施工有误差,交付时无法与户型图一致,仅供参考,最终以开发商合同为准
- 客厅:良好
- 卧室A:极佳
- 卧室B:极佳
- 厨房:良好
- 卫生间:良好
- 阳台A:良好
- 阳台B:良好
通风测评良好8.8


- 开窗

- 风向
*施工有误差,交付时无法与户型图一致,仅供参考,最终以开发商合同为准
采光测评良好8.8采光测评的指标
| 采光性 | 评价 | |
|---|---|---|
| 卧室A | 普通 | |
| 卧室B | 良好 | |
| 卫生间 | 优秀 | |
| 阳台A | 极佳 | |
| 阳台B | 极佳 |
*户型数据为人工测量或估算值,可能于实际情况存在误差,仅供参考,实际数据以开发商发布为准。
房屋细节
客厅
- 紧凑实用客厅尽管不算宽敞,但彰显出小而精致的特质。设计上紧凑实用,每个角落都经过精心打理。这个小空间为家人提供了温馨舒适的居住环境。
卧室A
空间可容纳
床
1.8m*2m
床头柜X2
0.4m宽
衣柜
0.6m深
- 空间较大宽敞的卧室A,是您放松身心、恢复精力的好去处。
- 有窗卧室A拥有明亮的窗户,让自然光与新鲜空气自由流淌,为您打造一个健康舒适的生活空间。
- 次卧有阳台带有阳台的卧室A,让您的生活更加多彩。您可以在这里欣赏日出日落,感受大自然的魅力,享受生活的每一刻精彩。
卧室B
空间可容纳
床
1.8m*2m
床头柜X2
0.4m宽
衣柜
0.6m深
- 空间较大卧室B面积大,采光充足,为您打造明亮舒适的居住空间。
- 有窗卧室B窗户通透,让光线与空气自由流通,为您打造一个明亮舒适的休息空间,感受自然的呵护。
- 次卧有阳台卧室B的阳台,是您观赏风景的绝佳之地。您可以在这里欣赏城市美景,感受城市的繁华与喧嚣,享受生活的多彩与丰富。
厨房
- 空间适中厨房空间布局合理,既实用又舒适,让您的烹饪生活更加丰富多彩。
- 厨房带阳台厨房有小阳台,方便储物。
卫生间
- 空间适中卫生间虽小,但空间布局合理,实用性强,为您打造便捷的洗漱空间。
- 明卫卫生间的窗户让光线与空气自然流动,为卫浴空间增添一份明亮与舒适。
2室1厅1卫售完9.3“优秀”
价格待定57.66㎡
2室1厅1卫售完9.4“优秀”
价格待定57.75㎡
2室1厅1卫售完9.2“优秀”
价格待定58.03㎡
2室1厅1卫售完9.3“优秀”
价格待定66.08㎡
2室1厅1卫售完9“优秀”
价格待定57.24㎡
2室1厅1卫售完9.4“优秀”
价格待定57.32㎡
2室1厅1卫售完8.7“良好”
价格待定55.00㎡
2室1厅1卫售完9.3“优秀”
价格待定53.19㎡
2室1厅1卫售完9.4“优秀”
价格待定51.60㎡
2室1厅1卫售完9.3“优秀”
价格待定69.92㎡
2室1厅1卫售完9.3“优秀”
价格待定60.17㎡
2室1卫售完9.4“优秀”
价格待定53.99㎡
2室1厅1卫售完9.1“优秀”
价格待定72.10㎡
2室1厅1卫售完8.8“良好”
价格待定50.70㎡
2室1厅1卫售完8.8“良好”
价格待定49.92㎡
2室1厅1卫售完9.1“优秀”
价格待定56.24㎡
2室1厅1卫售完8.7“良好”
价格待定60.40㎡
2室1厅1卫售完8.9“良好”
价格待定57.20㎡
2室1厅1卫售完8.8“良好”
价格待定60.39㎡
2室1厅1卫售完9.4“优秀”
价格待定57.30㎡
2室1厅1卫售完9.3“优秀”
价格待定57.35㎡
2室1厅1卫售完9.3“优秀”
价格待定53.21㎡
2室1厅1卫售完9.2“优秀”
价格待定50.47㎡
2室1厅1卫售完9.4“优秀”
价格待定55.13㎡
2室1厅1卫售完9.3“优秀”
价格待定60.00㎡
2室1厅1卫售完8.9“良好”
价格待定56.61㎡
2室1厅1卫售完9.2“优秀”
价格待定67.89㎡
2室1厅1卫售完9.3“优秀”
价格待定57.63㎡
2室1厅1卫售完9.4“优秀”
价格待定57.50㎡
2室1厅1卫售完9.3“优秀”
价格待定61.00㎡
2室1厅1卫售完9“优秀”
价格待定57.00㎡
对此楼盘感兴趣的人还浏览了
金隅昆泰云筑
75000元/平方米
朝阳-垡头用户评分9.35分
在售四至五环国际化社区豪华居住区景观居所宜居生态地产公园地产装修交付地铁沿线
朝阳壹号
59000元/平方米
朝阳-垡头用户评分9.32分
在售四至五环品牌地产国际化社区景观居所城市中心地产改善优选装修交付地铁沿线
保利·锦上
71000元/平方米
朝阳-垡头用户评分9.31分
售完四至五环品牌地产国际化社区豪华居住区景观居所公园地产改善优选装修交付地铁沿线
查看全部













































