- 181㎡
- 213.9㎡
- 105.34㎡
- 83㎡
- 193.21㎡
- 179.1㎡
- 101㎡
- 132㎡
- 177㎡
- 100.19㎡
- 102.09㎡
- 182.87㎡
- 135㎡
- 101㎡
- 172.46㎡
- 187.21㎡
- 130.09㎡
- 85.42㎡
- 110.27㎡
- 51.08㎡
- 132㎡
- 115.5㎡
- 93.11㎡
- 85.6㎡
- 55.33㎡
- 51.09㎡
- 178.01㎡
- 60.1㎡
- 45.73㎡
- 179.1㎡
- 33.96㎡
- 52.11㎡
- 168.88㎡
- 154.61㎡
- 64.45㎡
- 107.44㎡
- 76.15㎡
- 52.3㎡
- 158.36㎡
- 105.69㎡
- 178.51㎡
- 189㎡
- 100.19㎡
- 180.61㎡
- 99.82㎡
- 103.91㎡
- 91.84㎡
- 83.71㎡
- 81.7㎡
- 112.3㎡
- 116.64㎡
- 109.25㎡
- 163.77㎡
- 55.99㎡
- 173.9㎡
- 109.7㎡
- 200.22㎡
- 67.81㎡
- 52.33㎡
- 132.2㎡
- 63.12㎡
- 165.38㎡
- 178㎡
- 145㎡
- 180㎡
- 60㎡
- 142㎡
- 177㎡
- 60㎡
- 116㎡
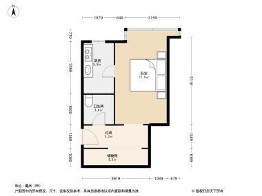
1室1厅1卫1厨
售完北京印象1居室户型图 | 建面:60㎡ | 朝向:朝北
- 所属楼盘
价格待定算月供
实际价格以售楼处为准,户型图为开发商提供,具体以实际交房标准为准
微信打开
查看完整户型评测8.4
户型评分
- 基础测评7
- 空间测评9.2
- 采光通风9.3
户型信息
- 明厨
- 明厨
空间测评优秀9.2空间测评指标

*施工有误差,交付时无法与户型图一致,仅供参考,最终以开发商合同为准
- 卧室:极佳
- 厨房:优秀
- 卫生间:良好
通风测评优秀9.3


- 开窗

- 风向
*施工有误差,交付时无法与户型图一致,仅供参考,最终以开发商合同为准
采光测评优秀9.3采光测评的指标
| 采光性 | 评价 | |
|---|---|---|
| 卧室 | 极佳 | |
| 厨房 | 极佳 |
*户型数据为人工测量或估算值,可能于实际情况存在误差,仅供参考,实际数据以开发商发布为准。
房屋细节
卧室
空间可容纳
床
1.8m*2m
床头柜X2
0.4m宽
衣柜
0.6m深
- 空间较大卧室面积大,采光充足,为您打造明亮舒适的居住空间。
- 有窗卧室窗户设计合理,让自然光均匀洒满每个角落,为您打造一个明亮且舒适的休息环境。
厨房
- 空间较大宽敞的厨房空间,让多人协作料理更加轻松,同时容纳冰箱等家电,满足生活所需。
- 明厨厨房设计注重通风采光,窗户设计合理,让烹饪时光更加明亮舒适,增添家的幸福感。
卫生间
- 空间适中卫生间设计精巧,空间利用恰到好处,虽小却五脏俱全,满足日常所需。
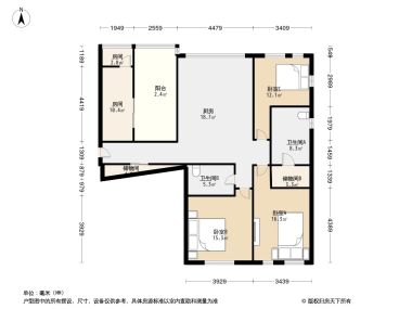
3室2厅1卫售完9.4“优秀”
价格待定181.00㎡
3室2厅2卫售完9.4“优秀”
价格待定213.90㎡
3室2厅2卫售完9.1“优秀”
价格待定193.21㎡
3室2厅2卫售完9“优秀”
价格待定179.10㎡
3室1厅2卫售完9“优秀”
价格待定132.00㎡
3室2厅2卫售完8.8“良好”
价格待定177.00㎡
3室2厅2卫售完9.1“优秀”
价格待定182.87㎡
3室1厅2卫售完9.1“优秀”
价格待定135.00㎡
3室1厅2卫售完8.8“良好”
价格待定172.46㎡
3室1厅2卫售完9.1“优秀”
价格待定187.21㎡
3室1厅2卫售完9.1“优秀”
价格待定130.09㎡
3室1厅2卫售完9“优秀”
价格待定132.00㎡
3室1厅2卫售完9“优秀”
价格待定178.01㎡
3室2厅2卫售完9“优秀”
价格待定179.10㎡
3室1厅2卫售完8.8“良好”
价格待定168.88㎡
3室2厅2卫售完9.1“优秀”
价格待定154.61㎡
3室2厅2卫售完9“优秀”
价格待定178.51㎡
3室1厅2卫售完9.3“优秀”
价格待定189.00㎡
3室2厅2卫售完9“优秀”
价格待定180.61㎡
3室2厅2卫售完8.6“良好”
价格待定163.77㎡
3室1厅2卫售完9.2“优秀”
价格待定173.90㎡
3室1厅2卫售完9.1“优秀”
价格待定132.20㎡
3室1厅2卫售完9.2“优秀”
价格待定165.38㎡
3室1厅1卫售完8.8“良好”
价格待定178.00㎡
3室1厅2卫售完8.8“良好”
价格待定145.00㎡
3室2厅2卫售完9.2“优秀”
价格待定180.00㎡
3室2厅2卫售完8.8“良好”
价格待定177.00㎡
对此楼盘感兴趣的人还浏览了
查看全部









































































