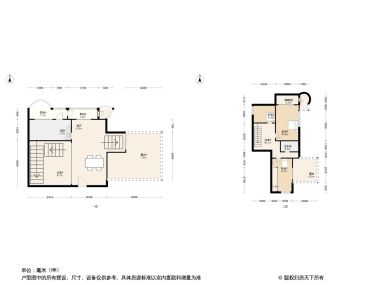
2室1厅1卫1厨
售完莲花小区2居室户型图 | 建面:91.92㎡ | 朝向:东南
- 所属楼盘
价格待定算月供
实际价格以售楼处为准,户型图为开发商提供,具体以实际交房标准为准
微信打开
查看完整户型评测9
户型评分
- 基础测评9.3
- 空间测评8.8
- 采光通风9
户型信息
- 1个阳台
- 明厨
- 户型方正
- 明厨
- 客厅朝南
空间测评良好8.8空间测评指标

*施工有误差,交付时无法与户型图一致,仅供参考,最终以开发商合同为准
- 客厅:极佳
- 卧室A:良好
- 卧室B:良好
- 厨房:良好
- 卫生间:良好
- 阳台:良好
通风测评优秀9


- 开窗

- 风向
*施工有误差,交付时无法与户型图一致,仅供参考,最终以开发商合同为准
采光测评优秀9采光测评的指标
| 采光性 | 评价 | |
|---|---|---|
| 客厅 | 普通 | |
| 卧室B | 极佳 | |
| 厨房 | 极佳 | |
| 阳台 | 极佳 |
*户型数据为人工测量或估算值,可能于实际情况存在误差,仅供参考,实际数据以开发商发布为准。
房屋细节
客厅
- 空间豪华客厅空间宽敞明亮,豪华感扑面而来,彰显出居住者的非凡品味。
- 朝东朝东的客厅在晴朗的早晨总能迎来温暖的阳光,让人感受到家的温馨与舒适。
- 舒适客厅宽敞通透,窗户设计独特,自然光自由流淌,无论是阅读学习还是休闲放松,都能在此感受到生活的宁静与美好。
卧室A
空间可容纳
床
1.8m*2m
床头柜X2
0.4m宽
衣柜
0.6m深
- 空间适中卧室A设计得十分精巧,每一寸空间都得到了合理的利用,既实用又美观,让您在有限的空间里享受无限的舒适。
- 次卧有阳台卧室A拥有私享阳台,宽敞又舒适,为您的生活增添一份惬意。在这里,您可以尽情享受与大自然的亲密拥抱,感受自然的温馨与美好。
卧室B
空间可容纳
床
1.2m*2m
床头柜X1
0.4m宽
- 空间适中卧室B虽小,却精致无比,设计匠心独运,巧妙布局,让每一寸空间都发挥到极致,营造出温馨舒适的休憩氛围。
- 有窗卧室B设有明亮窗户,窗外绿意盎然,让您在休息时刻也能尽享大自然的馈赠,舒缓身心。
- 次卧有阳台阳台为卧室B增添了一份惬意与悠闲。您可以在这里摆放一张小茶几,与家人共度闲暇时光,享受天伦之乐的美好与温馨。
厨房
- 空间适中精心设计的厨房空间,既实用又舒适,让您的烹饪之旅更加轻松愉快。
- 明厨厨房的窗户如同明亮的眼睛,让室内充满自然光,烹饪过程更加轻松,感受家的舒适与惬意。
卫生间
- 空间适中精致小巧的卫生间,空间利用高效,让您的洗浴体验更加轻松愉快。
3室1厅2卫售完9.2“优秀”
价格待定133.00㎡
3室1厅1卫售完9.3“优秀”
价格待定134.81㎡
3室1厅2卫售完9.2“优秀”
价格待定137.57㎡
3室1厅2卫售完9.1“优秀”
价格待定134.81㎡
3室1厅2卫售完8.7“良好”
价格待定143.00㎡
3室1厅2卫售完8.9“良好”
价格待定128.53㎡
3室1厅1卫售完8.7“良好”
价格待定150.04㎡
3室1厅2卫售完8.9“良好”
价格待定112.00㎡
3室1厅2卫售完9.3“优秀”
价格待定120.58㎡
3室1厅2卫售完8.9“良好”
价格待定118.97㎡
3室2厅2卫售完9.3“优秀”
价格待定162.00㎡
3室1厅1卫售完9.4“优秀”
价格待定150.00㎡
3室1厅2卫售完10“极佳”
价格待定163.00㎡
3室2厅3卫售完7“普通”
价格待定149.00㎡
3室1厅2卫售完9“优秀”
价格待定144.00㎡
对此楼盘感兴趣的人还浏览了
查看全部











































