省体旁 南北双阳台 楼层好 满五唯一 带地下室
-
55万
总价
-
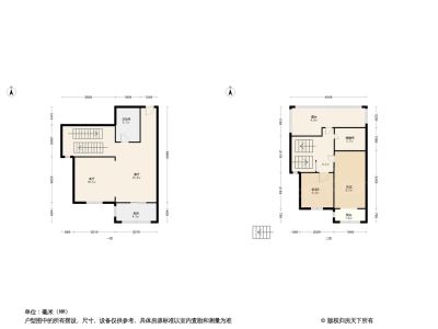
2室2厅
户型
-
81.58㎡
建筑面积
买房加房产交流群,省钱不踩雷
3000+人正在热聊
加入群聊
-
单价
6742元/平米
- 挂牌价格解析
-
楼层
中楼层/6层
- 咨询楼层
-
套内
72.78㎡
- 咨询套内使用面积
-
楼型
板楼
-
朝向
南北
-
装修
其他
-
供暖
自供暖
-
发布
2025-03-21
-
地铁
距3号线省体育中心站约869米
-
咨询总首付
首付约13.7万
首付税费及佣金情况 -
深度测评
小区冠军花园(金水-索凌路北段)
-
更多
楼户比、楼层高度、交易历史、抵押信息
周边配套
地址:郑州市惠济区三全路与金杯路交汇处向北300米路东
交通综合评分
查看全部8.2
“较好”
超过郑州82.2%的小区
-
地铁公交
10.0
-
驾车出行
10.0
-
城际交通
4.0
本月均价 5997元/m²
环比上月 上涨 2.88%
同比去年 下跌 20.13%
猜你喜欢
同小区其它房源
户型齐全,主打户型方正,明卫,明厨,客厅朝南三居
冠军花园户型主要有90平-148平的户型方正,明卫,明厨,客厅朝南的三居 、81平-99平的户型方正,明厨,双阳台的二居 、45平-45平的明厨的一居 。
*获取完整户型报告,同时会有免费语音讲解服务
-
9699元/㎡
本月挂牌均价
-
0.72%
环比上月
买房加房产交流群,省钱不踩雷
3000+人正在热聊
加入群聊
免责声明:房源信息由网站用户提供,其真实性、合法性由信息提供者负责,最终以政府部门登记备案为准。本网站不声明或保证内容之正确性和可靠性,购买该房屋时,请谨慎核查。入学情况仅凭历史经验总结,在此不承诺升学事宜。请您在签订合同之前,切勿支付任何形式的费用,以免上当受骗。



