金水 龙凤苑住宅小区 2室2厅
-
90万元
总价
-
2室2厅1卫
户型
-
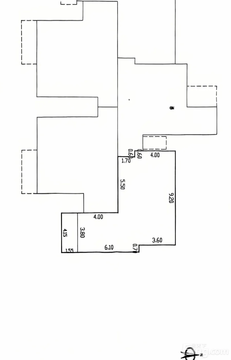
94.01㎡
建筑面积
买房加房产交流群,省钱不踩雷
3000+人正在热聊
加入群聊
-
单价
9573元/平米
- 挂牌价格解析
-
楼层
中层/26层
- 咨询楼层
-
套内
暂无数据
- 咨询套内使用面积
-
朝向
东
-
年代
2013
-
发布
2024-12-30
-
地铁
距3号线博览中心站约941米
-
咨询总首付
首付约27.9万
首付税费及佣金情况 -
深度测评
小区龙凤苑住宅小区(金水-东建材)
-
更多
楼户比、楼层高度、交易历史、抵押信息
业主自评
-
相见欢
加入房天下491天
接电时间:09:00-22:00
周边配套
地址:陇海路未来路交叉口东400米路南
交通综合评分
查看全部8.3
“较好”
超过郑州56.5%的小区
-
地铁公交
10.0
-
驾车出行
10.0
-
城际交通
4.5
本月均价 8105元/m²
环比上月 下跌 9.3%
同比去年 下跌 15.57%
猜你喜欢
同小区其它房源
户型齐全,主打明厨,明卫,双卧朝南,主卧朝南二居
龙凤苑住宅小区户型主要有93平-96平的明厨,明卫,双卧朝南,主卧朝南的二居 、126平-140平的明卫,明厨,客厅朝南的三居 、282平-282平的明卫,明厨,主卧朝南的其他居 。
*获取完整户型报告,同时会有免费语音讲解服务
-
9629元/㎡
本月挂牌均价
-
0.11%
环比上月
买房加房产交流群,省钱不踩雷
3000+人正在热聊
加入群聊
联系业主
免责声明:房源信息由网站用户提供,其真实性、合法性由信息提供者负责,最终以政府部门登记备案为准。本网站不声明或保证内容之正确性和可靠性,购买该房屋时,请谨慎核查。入学情况仅凭历史经验总结,在此不承诺升学事宜。请您在签订合同之前,切勿支付任何形式的费用,以免上当受骗。

