建国小区 地铁口 好楼层 妇幼旁 采光好 交通方便
-
140万
总价
-
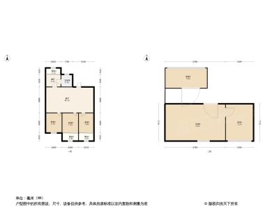
4室2厅
户型
-
150.19㎡
建筑面积
-
单价
9322元/平米
- 挂牌价格解析
-
楼层
中楼层/8层
- 咨询楼层
-
套内
暂无数据
- 咨询套内使用面积
-
楼型
板塔结合
-
朝向
南
-
装修
其他
-
供暖
暂无数据
-
发布
2025-07-12
-
地铁
距2号线户部山站约333米
-
深度测评
小区建国小区(云龙-沃尔玛)
-
更多
楼户比、楼层高度、交易历史、抵押信息
周边配套
地址:解放东路与解放南路交叉口附近
交通综合评分
查看全部5.5
“一般”
超过徐州66.3%的小区
-
地铁公交
10.0
-
城际交通
5.0
本月均价 6178元/m²
环比上月 上涨 0.42%
同比去年 下跌 12.9%
猜你喜欢
同小区其它房源
户型齐全,主打明厨,客厅朝南二居
建国小区户型主要有43平-90平的明厨,客厅朝南的二居 、30平-46平的户型方正,明卫,明厨,主卧朝南的一居 、63平-126平的户型方正,明厨,主卧朝南的三居 。
*获取完整户型报告,同时会有免费语音讲解服务
免责声明:房源信息由网站用户提供,其真实性、合法性由信息提供者负责,最终以政府部门登记备案为准。本网站不声明或保证内容之正确性和可靠性,购买该房屋时,请谨慎核查。入学情况仅凭历史经验总结,在此不承诺升学事宜。请您在签订合同之前,切勿支付任何形式的费用,以免上当受骗。



