德润品质 五星物业 洋房社区 毛坯 劳斯莱斯户型
-
160万
总价
-
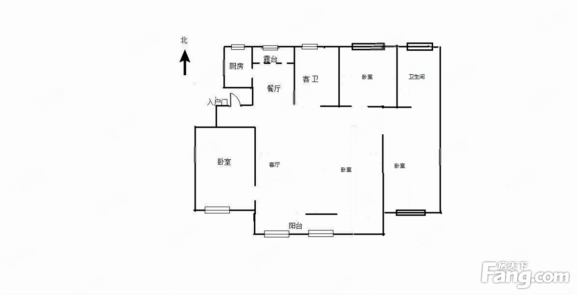
4室2厅
户型
-
148.68㎡
建筑面积
-
单价
10762元/平米
- 挂牌价格解析
-
楼层
低楼层/11层
- 咨询楼层
-
套内
暂无数据
- 咨询套内使用面积
-
楼型
板楼
-
朝向
南北
-
装修
毛坯
-
供暖
集中供暖
-
发布
2025-12-01
-
地铁
暂无数据
-
深度测评
小区德润天宸(奎文-北王)
-
更多
楼户比、楼层高度、交易历史、抵押信息
房源描述(2)
-
核心卖点问经纪人
房东诚心出售,看房方便;宽敞明亮,居住舒服;小区周边交通便利,生活配套设施齐全,生活 便利 1.房子是君小洋房的1楼带大院子带负一层 2.房子看房方便有钥匙 3.房子是149平的大四室,H户型 4.楼座位置好
-
业主心态问经纪人
业主换房,诚意出售,欢迎咨询
-
小区配套问经纪人
位置:小区地理位置佳,绿化率高,居民素质高 配套:有健身器材,小型篮球场,可供小区居民使用 车位:停车位充足,建有地上停车场和地下车库 保安:小区内24保安巡逻
-
服务介绍问经纪人
本人从事房地产多年,公司有大量好房源,欢迎进入我的店铺查看,欢迎随时电话咨询,相信我的专业,为您置业安家保驾护航。
-
税费分析房贷计算
关于税费信息,详情可电话咨询同号
-
核心卖点问经纪人
房源亮点 【房屋简介】2022年建,大平层设计,南北通透,利用空间大。餐厅客厅可分离,正规三居布局,朝向良好,采光充足。清水房,直接装修,节省费用。产权合理,实拍视频和全景展示,购入年限不满二不,物业类型为住宅,售价168万。步梯房,小区环境优雅,绿化丰富,休闲设施完善,居住舒适度高。
-
业主心态问经纪人
房主诚意出售,手续完备,随时可配合看房。我与房主关系密切,房主信任我,愿意协助买卖双方友好沟通。房主有议价空间,急售心态,随时欢迎看房。
-
小区配套问经纪人
小区地理位置佳,绿化率高,环境整洁,居民素质高。 .
-
服务介绍问经纪人
公司有大量好房源,欢迎进入我的店铺查看,随时电话咨询,相信我的专业,为您置业安家保驾护航。
-
税费分析房贷计算
关于本房税费分析详情,请电话联系我,我将提供详细的税费情况。 .
周边配套
本月均价 9367元/m²
环比上月 下跌 0.96%
同比去年 下跌 10.57%
猜你喜欢
同小区其它房源
-
5905元/㎡
本月挂牌均价
-
持平
环比上月
- 免费咨询
- 专业服务
- 区域解读
- 户型分析



