首付一万,火车站近 3室南北通透电梯房104平拿5000主
-
28.5万
总价
-
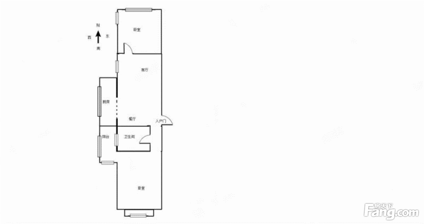
3室1厅1卫
户型
-
105㎡
建筑面积
-
单价
2714元/平米
- 挂牌价格解析
-
楼层
中层/22层
- 咨询楼层
-
套内
暂无数据
- 咨询套内使用面积
-
楼型
板楼
-
朝向
南北
-
装修
精装修
-
年代
2013
-
发布
2026-04-07
-
深度测评
小区万锦国际广场(潍城-火车站)
-
更多
楼户比、楼层高度、交易历史、抵押信息
房源描述(1)
-
核心卖点问经纪人
一、房源优势正规户型,日照充足,空气流畅 二、房屋介绍 格局合理,利用空间大,是 的好户型 三、社区配套 1、环境优雅,低密度社区 2、小区绿化高 四、周边配套 地理位置得天独厚,出行方便! 五、推荐理由 让您体验惬意的生活,充分享受生活的美!
-
业主心态问经纪人
房东着急回款, 出售,随时看房,随时恭候 房主因工作调动出售此房,不管户型还是位置,楼层都很好,很不舍得出售此房。房主诚意出售,随时可以谈价。
-
小区配套问经纪人
位置:小区地理位置佳,绿化率高,居民素质高 配套:有健身器材,小型篮球场,可供小区居民使用 车位:停车位充足,建有地上停车场和地下车库 保安:小区内24保安巡逻
-
服务介绍问经纪人
本人从事房地产多年,公司有大量好房源,欢迎进入我的店铺查看,欢迎随时电话咨询,相信我的专业,为您置业安家保驾护航。
周边配套
交通综合评分
查看全部超过潍坊25.6%的小区
-
地铁公交
10.0
-
城际交通
4.0
本月均价 3775元/m²
环比上月 下跌 1.46%
同比去年 下跌 12.17%
猜你喜欢
同小区其它房源
户型齐全,主打户型方正,明厨一居
万锦国际广场户型主要有50平-69平的户型方正,明厨的一居 、94平-104平的户型方正,明厨,明卫,客厅朝南,全明格局,双卧朝南的二居 。
*获取完整户型报告,同时会有免费语音讲解服务
-
5041元/㎡
本月挂牌均价
-
持平
环比上月
- 免费咨询
- 专业服务
- 区域解读
- 户型分析


