豪华设计 中间楼层采光好 带电梯 南北通透
-
298万
总价
-
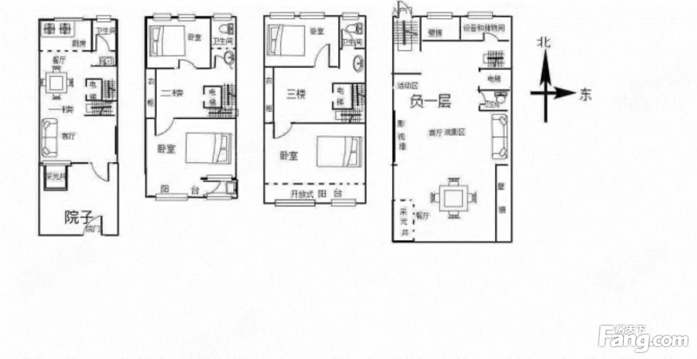
4室4厅4卫
户型
-
198㎡
建筑面积
-
单价
15051元/平米
- 挂牌价格解析
-
楼层
1层
- 咨询楼层
-
套内
暂无数据
- 咨询套内使用面积
-
楼型
独栋
-
朝向
东
-
装修
豪华装修
-
年代
2015
-
发布
2026-03-12
-
深度测评
小区圣菲漫步别墅(潍城-奥体中心)
-
更多
楼户比、楼层高度、交易历史、抵押信息
房源描述(1)
周边配套
地址:北宫街与长松路交叉口西666米路北
猜你喜欢
同小区其它房源
-
5579元/㎡
本月挂牌均价
-
持平
环比上月
- 免费咨询
- 专业服务
- 区域解读
- 户型分析
免责声明:房源信息由网站用户提供,其真实性、合法性由信息提供者负责,最终以政府部门登记备案为准。本网站不声明或保证内容之正确性和可靠性,购买该房屋时,请谨慎核查。入学情况仅凭历史经验总结,在此不承诺升学事宜。请您在签订合同之前,切勿支付任何形式的费用,以免上当受骗。


