高新南 单价3000多 带地下室大H全明户型 房主急售
-
43.8万
总价
-
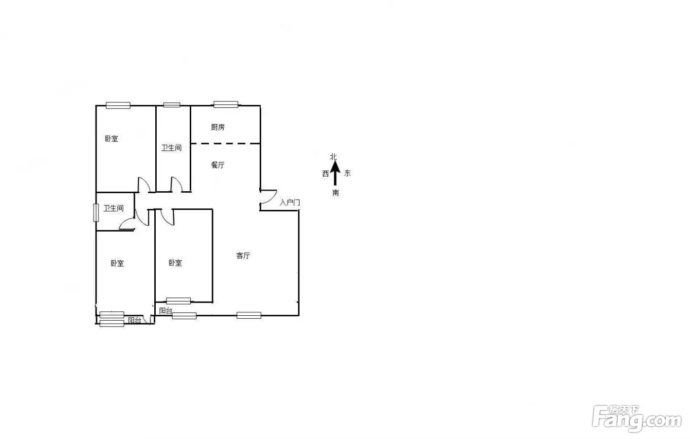
3室2厅2卫
户型
-
128㎡
建筑面积
-
单价
3422元/平米
- 挂牌价格解析
-
楼层
顶层/6层
- 咨询楼层
-
套内
暂无数据
- 咨询套内使用面积
-
楼型
板楼
-
朝向
南北
-
装修
精装修
-
年代
2010
-
发布
2026-01-22
-
地铁
暂无数据
-
深度测评
小区凤凰太阳城(坊子-坊子新区)
-
更多
楼户比、楼层高度、交易历史、抵押信息
房源描述(1)
-
核心卖点问经纪人
郑重承诺,所有房源,真实图片,真实价格! , 【位置】:北海路,潍县中路, 近奎文, 近高新, 【户型】:电梯大H, 3室2厅, 南北通透,全年采光。 【小区】:成熟社区,紧邻佳乐家,泰华城,紧邻虞河,供暖好, 物业好, 绿化率高, 入住率高, 【卖点】:采光棒,近公园,交通非常便利 ,商业配套齐全, 房主因置换诚心出售,价格低于市场价
-
业主心态问经纪人
1.盛世虞河湾 91平3室 精装未住 53.8万 2.龙凤花园 90平 多层1楼 3室 39万 3.龙玺台7楼 100平 大H户型 更名 53万 4.理想小镇5楼 139平 毛坯6 带地下室 110万 5.双羊新城 93平 精装3室 42万 6.博裕学院1楼带院 121平H户型 62万 7.中海世家 128平大H 精装未住 83万
-
小区配套问经纪人
小区地理位置佳,绿化率高,环境整洁,居民素质高。 . 交通出行: 公交:22路/k22路、81路(凤凰太阳城)、72路/k72路、82路/k82路(龙泉街朝凤路口) 交通出行: 公交:22路/k22路、81路(凤凰太阳城)、72路/k72路、82路/k82路(龙泉街朝凤路口) 交通出行: 公交:22路/k22路、81路(凤凰太阳城)、72路/k72路、82路/k82路(龙泉街朝凤路口) 交通出行: 公交:22路/k22路、81路(凤凰太阳城)、72路/k72路、82路/k82路(龙泉街朝凤路口) 交通出行:
-
服务介绍问经纪人
【本人介绍】:恒信房产 任风霞 从事房屋销售行业多年,承诺所有房源真实有效。 免费咨询房屋买卖、、过户、公积金过户流程 所有房产问题,免费咨询!
-
税费分析房贷计算
关于本房税费分析详情,请电话联系我,我将提供详细的税费情况。 .
-
交通出行问经纪人
公交:22路/k22路、81路(凤凰太阳城)、72路/k72路、82路/k82路(龙泉街朝凤路口)
周边配套
交通综合评分
查看全部超过潍坊84.3%的小区
-
地铁公交
10.0
-
驾车出行
9.0
-
城际交通
5.0
本月均价 5680元/m²
环比上月 上涨 0.75%
同比去年 下跌 10.06%
猜你喜欢
同小区其它房源
户型齐全,主打户型方正,明卫,明厨,客厅朝南三居
凤凰太阳城户型主要有94平-150平的户型方正,明卫,明厨,客厅朝南的三居 、82平-236平的户型方正,明卫,主卧朝南的二居 。
*获取完整户型报告,同时会有免费语音讲解服务
-
5405元/㎡
本月挂牌均价
-
持平
环比上月
- 免费咨询
- 专业服务
- 区域解读
- 户型分析


