带车位 四室好楼层 熙湖名筑 新华路环球 市府广场未来之城近
-
166万
总价
-
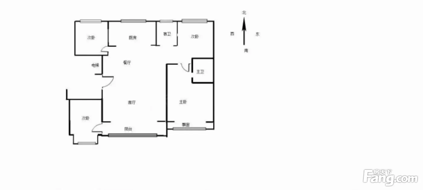
4室2厅2卫
户型
-
166.79㎡
建筑面积
-
单价
9953元/平米
- 挂牌价格解析
-
楼层
低层/17层
- 咨询楼层
-
套内
暂无数据
- 咨询套内使用面积
-
楼型
板楼
-
朝向
南
-
装修
毛坯
-
年代
2021
-
发布
2025-12-19
-
深度测评
小区恒信熙湖名筑(奎文-新华路佳乐家)
-
更多
楼户比、楼层高度、交易历史、抵押信息
房源描述(1)
-
核心卖点问经纪人
小区介绍:小区环境优美,周边配套齐全,交通便利,出行非常方便 房屋介绍: 1、 房屋年代:2021年 2、 房屋正气,性价比高 3、 朝向:南 4、 房屋优点:采光充足,视野宽阔
-
业主心态问经纪人
业主很信任我,我能了解业主卖房新的动态。目前市场 ,政策已经基本稳定,是 入手的好时候。请不要错过性价比高的好房。
-
小区配套问经纪人
位置:小区地理位置佳,绿化率高,居民素质高 配套:有健身器材,小型篮球场,可供小区居民使用 车位:停车位充足,建有地上停车场和地下车库 保安:小区内24保安巡逻
-
服务介绍问经纪人
本人从事房地产多年,公司有大量好房源,欢迎进入我的店铺查看,欢迎随时电话咨询,相信我的专业,为您置业安家保驾护航。
周边配套
本月均价 10756元/m²
环比上月 下跌 3.14%
同比去年 下跌 11.11%
猜你喜欢
同小区其它房源
户型齐全,主打南北通透,全明格局,户型方正,动静分离,采光充足四居
恒信熙湖名筑户型主要有142平-286平的南北通透,全明格局,户型方正,动静分离,采光充足的四居 。
*获取完整户型报告,同时会有免费语音讲解服务
-
7023元/㎡
本月挂牌均价
-
持平
环比上月
- 免费咨询
- 专业服务
- 区域解读
- 户型分析


