南北通透泰和东郡5室2厅精装修
-
200万
总价
-
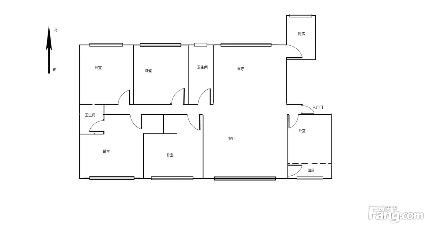
5室2厅2卫
户型
-
190.3㎡
建筑面积
-
单价
10510元/平米
- 挂牌价格解析
-
楼层
高层/18层
- 咨询楼层
-
套内
暂无数据
- 咨询套内使用面积
-
楼型
板楼
-
朝向
南北
-
装修
精装修
-
年代
2022
-
发布
2025-07-15
-
地铁
暂无数据
-
深度测评
小区泰和东郡(高新-清池)
-
更多
楼户比、楼层高度、交易历史、抵押信息
房源描述(1)
-
核心卖点问经纪人
相信为您推荐的这套房子您一定会满意,赶快行动吧,先到先得! 房屋年代∶2022,面积∶190.3平方米,朝向∶南北 1. 小区配备高端物业管理,让你享受宾至如归的服务; 2. 小区人文素质高,是您的居家的绝佳选择; 3. 小区居住安静舒适,让您拥有高品质的生活环境; 4. 小区绿化率高,绿树成荫鸟语花香让您随时呼吸到新鲜空气。
周边配套
地址:健康街与潍安路交汇处东南角
交通综合评分
查看全部6.7
“较好”
超过潍坊29.3%的小区
-
地铁公交
10.0
-
驾车出行
9.0
本月均价 8917元/m²
环比上月 下跌 2.85%
同比去年 下跌 0.55%
猜你喜欢
同小区其它房源
户型齐全,主打明卫,明厨,客厅朝南,主卧朝南三居
泰和东郡户型主要有104平-143平的明卫,明厨,客厅朝南,主卧朝南的三居 、138平-270平的全明格局,卧室朝南,主卧朝南的四居 、235平-322平的全明格局,卧室朝南的五居 。
*获取完整户型报告,同时会有免费语音讲解服务
- 免费咨询
- 专业服务
- 区域解读
- 户型分析
免责声明:房源信息由网站用户提供,其真实性、合法性由信息提供者负责,最终以政府部门登记备案为准。本网站不声明或保证内容之正确性和可靠性,购买该房屋时,请谨慎核查。入学情况仅凭历史经验总结,在此不承诺升学事宜。请您在签订合同之前,切勿支付任何形式的费用,以免上当受骗。

