必看好房,电梯房,看房随时,送家具,价格可议,房东直卖
-
46万元
总价
-
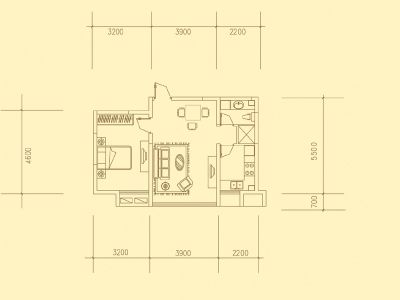
1室1厅1卫
户型
-
65.69㎡
建筑面积
-
单价
7003元/平米
- 挂牌价格解析
-
楼层
低层/27层
- 咨询楼层
-
套内
暂无数据
- 咨询套内使用面积
-
朝向
南北
-
年代
2012
-
发布
2025-03-18
-
地铁
暂无数据
-
深度测评
小区翰林新城(高新-潍坊学院)
-
更多
楼户比、楼层高度、交易历史、抵押信息
业主自评
-
十里清阴柳影斜976
加入房天下423天
接电时间:09:00-22:00
翰林新城状元府,位于城市繁华地段,其1室1厅1卫的精装修普通住宅,面积达65.69平方米,布局合理,功能齐全。该房源位于7层,采光极佳,南向阳光充足,四季如春。电梯便捷,出行无忧。离高新双语近,离北海学校近。
翰林新城状元府,位于城市繁华地段,其1室1厅1卫的精装修普通住宅,面积达65.69平方米,布局合理,功能齐全。该房源位于7层,采光极佳,南向阳光充足,四季如春。电梯便捷,出行无忧。离高新双语近,离北海学校近。
周边配套
地址:东风东街与潍县中路交叉口西南角(潍坊学院东院对面)
交通综合评分
查看全部6.7
“较好”
超过潍坊76.2%的小区
-
地铁公交
10.0
-
驾车出行
9.0
本月均价 7659元/m²
环比上月 下跌 0.23%
同比去年 下跌 3.8%
猜你喜欢
同小区其它房源
户型齐全,主打户型方正,明厨,明卫,客厅朝南,全明格局,主卧朝南二居
翰林新城户型主要有92平-127平的户型方正,明厨,明卫,客厅朝南,全明格局,主卧朝南的二居 、117平-148平的户型方正,明厨,明卫,主卧朝南的三居 、63平-65平的明厨,主卧朝南的一居 。
*获取完整户型报告,同时会有免费语音讲解服务
-
7657元/㎡
本月挂牌均价
-
持平
环比上月
联系业主
免责声明:房源信息由网站用户提供,其真实性、合法性由信息提供者负责,最终以政府部门登记备案为准。本网站不声明或保证内容之正确性和可靠性,购买该房屋时,请谨慎核查。入学情况仅凭历史经验总结,在此不承诺升学事宜。请您在签订合同之前,切勿支付任何形式的费用,以免上当受骗。

