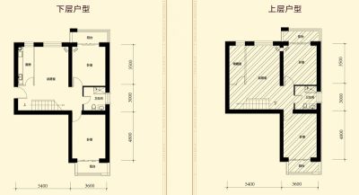
精装修,跃层,楼上楼下户型一样
-
148万
总价
-
4室2厅
户型
-
107.8㎡
建筑面积
买房加房产交流群,省钱不踩雷
3000+人正在热聊
加入群聊
-
单价
13730元/平米
- 挂牌价格解析
-
楼层
低楼层/29层
- 咨询楼层
-
套内
暂无数据
- 咨询套内使用面积
-
楼型
板楼
-
朝向
南北
-
装修
其他
-
供暖
集中供暖
-
发布
2023-04-19
-
地铁
暂无数据
-
深度测评
小区嘉美广场(路北-远洋城)
-
更多
楼户比、楼层高度、交易历史、抵押信息
周边配套
地址:长宁道与龙泽路交叉口西南侧
交通综合评分
查看全部4.0
“一般”
超过唐山64.6%的小区
-
地铁公交
10.0
本月均价 7600元/m²
环比上月 下跌 1.38%
同比去年 下跌 9.88%
猜你喜欢
同小区其它房源
户型齐全,主打明厨,客厅朝南二居
嘉美广场户型主要有76平-125平的明厨,客厅朝南的二居 、42平-65平的户型方正,明厨,主卧朝南的一居 、84平-113平的主卧朝南的四居 。
*获取完整户型报告,同时会有免费语音讲解服务
-
9110元/㎡
本月挂牌均价
-
0.44%
环比上月
买房加房产交流群,省钱不踩雷
3000+人正在热聊
加入群聊
免责声明:房源信息由网站用户提供,其真实性、合法性由信息提供者负责,最终以政府部门登记备案为准。本网站不声明或保证内容之正确性和可靠性,购买该房屋时,请谨慎核查。入学情况仅凭历史经验总结,在此不承诺升学事宜。请您在签订合同之前,切勿支付任何形式的费用,以免上当受骗。



